查看完整案例


收藏

下载
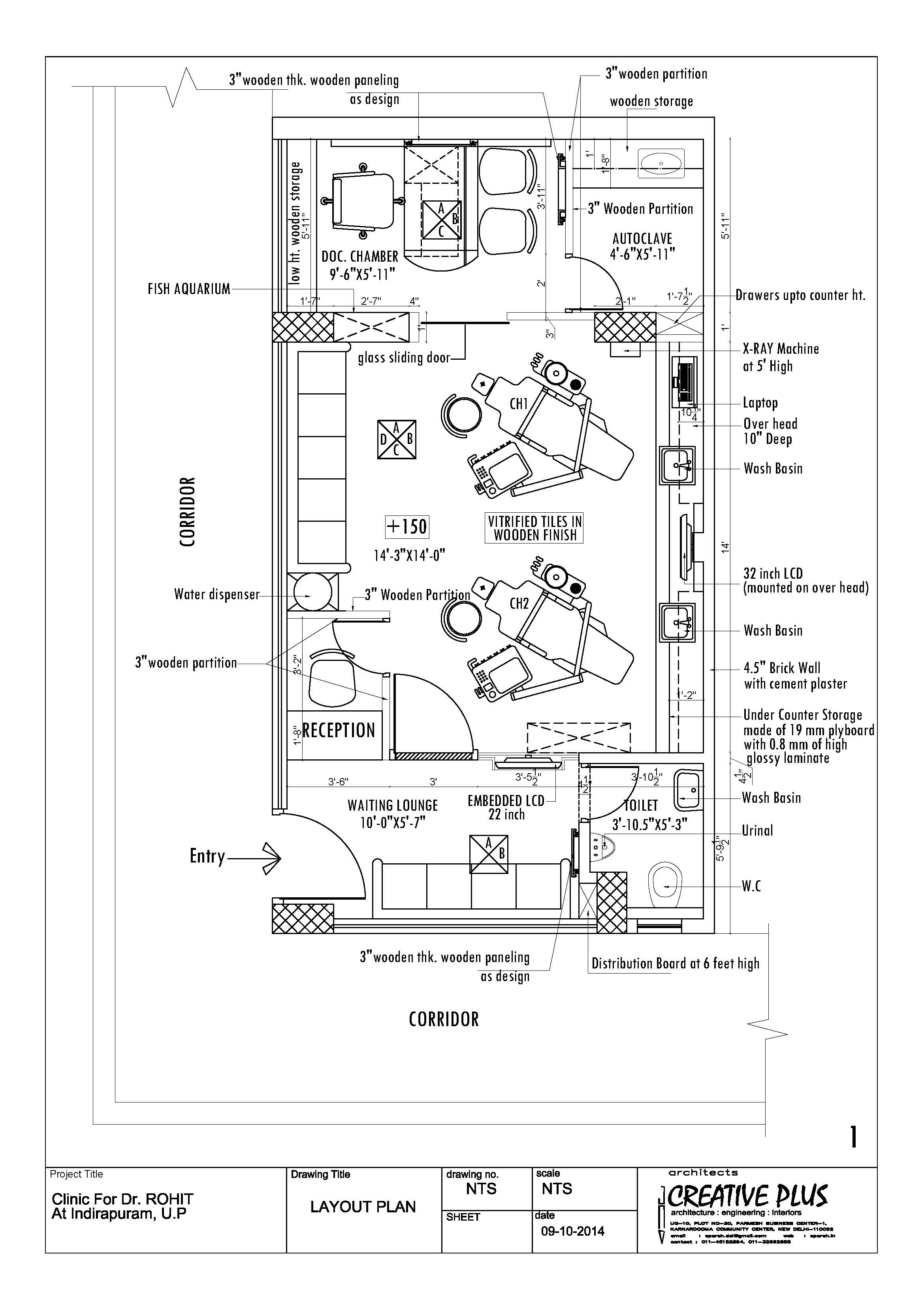
这个小型诊所。450平方英尺设计在双层白铅色系统上。
Firm Creative Plus
Type Government + Health › Medical Facility
STATUS Built
YEAR 2014
SIZE 0 sqft - 1000 sqft
BUDGET $0 - 10K
keywords:architecture, architecture news, interiors, interior design, portfolio, spec, brands, marketplace, products Dental Clinic
关键词:建筑,建筑新闻,室内设计,产品组合,规格,品牌,市场,牙科诊所
客服
消息
收藏
下载
最近
















