查看完整案例


收藏

下载
协作者,合作者,勾结者( collaborator的名词复数 ):拱门。西拉·吉里夫蒂诺格鲁 拱门。哈拉尔德·科弗勒
室内设计:罗兰·巴尔迪建筑师 格鲁皮肠 海克·林斯特
在博赞市的壁炉里,在一座18世纪的建筑里,第一家国际品牌的意大利餐厅、市场和酒庄。
Roland Baldi Architects的办公室已被委托的结构和创意的公司理念的实施,代表自然,真实,意大利优质食品,是根据小生产者生产的古老传统。
修复工程覆盖了整个建筑:历史的外墙已经修复。装饰和装饰保持,而在底层,玻璃表面是统一和扩大,以提供更好的亮度,内部和行人街道更大的沟通。
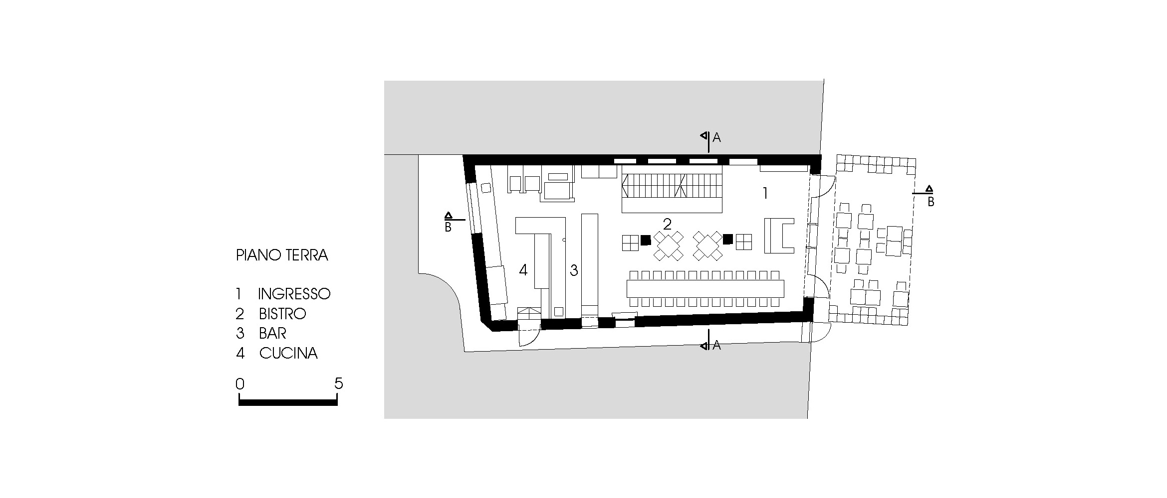
旗舰店分为5层,每个楼层都有不同的氛围,不同的功能融合和溶解,让顾客有独特的发现、购物和美食体验。其结果是一个开放的,欢迎的地方,把每一次访问都转化为一种多感官体验。
在一楼,客人受到休闲环境的欢迎,其特点是一张长长的共享桌和一个露天的宝丽乐(Pergola),在那里展示购物设施,让人想起广场和市场的理念。
楼层按功能划分:底层是酒吧比萨饼店,地下室是市场和酒窖,上层是餐厅,更非正式的是意大利面,精致的是肉和鱼。
连接五层楼的大楼梯给环境带来了一种统一的感觉,并被解释为一个单一的大架子,其中展示了烹饪产品、烹饪书籍、设计物品和好奇心。
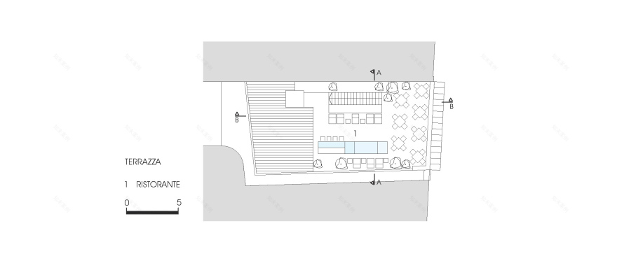
在第三层,游客们发现了代表着地中海花园的露台,它位于Bozen屋顶之上,以玻璃喷泉为特征,地板上有一个切口,向餐厅顶楼注入大量光线。
在室内和风景设计,由罗兰巴尔迪与通讯工作室Gruppe古特和海克林斯特合作开发,一个现代家具,工艺和意大利本土名言的混合物。
这个场景是受邪教电影“厨师,小偷,他的妻子”的启发。
材料和家具遵循当代语言,但有丰富的引用意大利文化。因此,厨房用漆包板覆盖,在树脂地板上插上彩色水泥砖,选用的材料是天然木材、黄铜和铁,而大红烷形式的灯具则清楚地参照了国内流行的“Belpaese”肖像。
Firm Roland Baldi architects
Type Commercial › Supermarket Hospitality + Sport › Bar/Nightclub Restaurant
STATUS Built
YEAR 2017
Photos T. Sorvillo / L. Guadagnini, Roland Baldi architects
keywordsarchitecture, architecture news, interiors, interior design, portfolio, spec, brands, marketplace, products ITALIA&AMORE RESTAURANT MARKET WINE SHOP
关键词建筑,建筑新闻,室内设计,组合,规格,品牌,市场,意大利产品
客服
消息
收藏
下载
最近


































