查看完整案例


收藏

下载
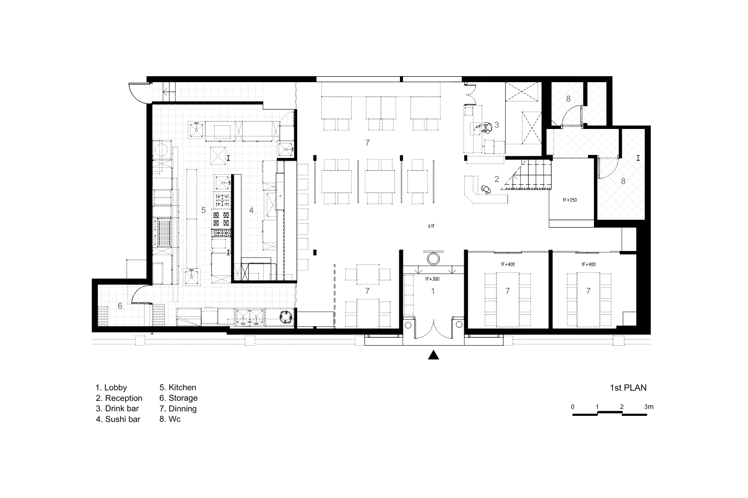
在这个项目中,我们翻修了一座2层的钢结构建筑,改造成一家位于河内的日本餐馆Makoto。该项目与越南国家历史博物馆位于同一区域-这是一座历史建筑,设计采用河内的法国殖民风格建筑。这个分局充满了许多古老的绿色植物。
我们的设计方法是将环境中美丽的景观带入室内,营造一个温暖、舒适的餐饮空间,使之与这一区域相协调。我们重新打开窗户,将室内与外部景观连接起来,这是一种传统的景观设计技术,它指的是“夏克奇”,意为“借来的风景”。
整个二楼都设计成私人餐厅。博物馆一侧的墙壁尽可能开放,而对面的墙壁被填满,并安装了一系列内置的灯具。第二层的天花板是用编织的竹子板完成的,这些竹板是沿着花园的方向布置的,给人的感觉是内部空间不断地向外流动。在二楼的大房间可以灵活地分为1,2或3私人餐厅,根据客人的数量,按可移动的分区。走廊上的隔墙和木制百叶窗使餐厅足够私密,而不靠近外部空间。
照片:Hirohioki
Firm NH VILLAGE Architects
Type Hospitality + Sport › Restaurant
STATUS Built
YEAR 2016
SIZE 0 sqft - 1000 sqft
BUDGET $10K - 50K
Photos Viet Anh NGUYEN
keywordsarchitecture, architecture news, interiors, interior design, portfolio, spec, brands, marketplace, products MAKOTO RESTAURANT
关键词建筑,建筑新闻,室内设计,组合,规格,品牌,市场,产品Makoto餐厅
客服
消息
收藏
下载
最近




















