查看完整案例


收藏

下载

翻译
SHOWROOM AND OFFICES DFG-pavestone.
Luxury is space.
To build in an industrial estate is to build without references or interference. A flat surface, a marked sunlight and an office-showroom program.
The exceptional is the client. The Galician granite multinational, DFG-pavestone, has quarries all over the world and cutting-edge technology for cutting and optimizing stone.
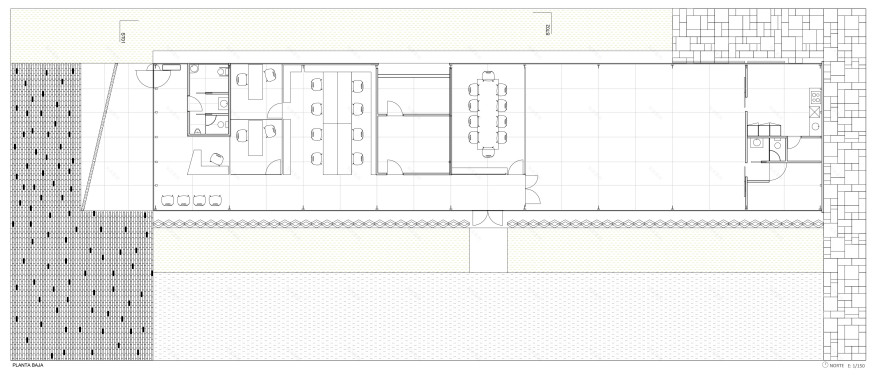
The building is born of the optimized construction system and without rhetoric. It is conceived as a clean and simple ship. Inside this envelope are the offices and warehouses with elementary construction of glass, polycarbonate and metal. The container escapes the constructive complexity, focuses on generating a clear and white atmosphere.
The building is the frame and support for the granite. The interior spaces are covered with different types of stone and finishes, with the facade concentrating the greatest formal load. The direct north-south orientation is key to its design. The blue platinum granite lattices overlap the container.
The volume opens directly to the north and closes to the east. The lattice to the west is vertical and rotated 45º maximizing the dimensions of the pieces. To the south the effort is concentrated. A granite basket has been built, a fabric of equal pieces. The rotation of this piece allows the setting of the fabric, the light is filtered and the incidence of the sun is avoided.
Space and construction at the service of the stone.
[ES] El lujo es el espacio.
Construir en un polígono industrial es construir sin referencias ni interferencias. Una superficie plana, un soleamiento acusado y un programa de oficinas-showroom.
Lo excepcional es el cliente. La multinacional del granito Gallega, DFG-pavestone, cuenta con canteras por todo el mundo y tecnología puntera para el corte y optimización de la piedra.
El edificio nace del sistema constructivo optimizado y sin retórica. Se concibe como una nave limpia y sencilla. Dentro de esta envolvente se insertan las oficinas y almacenes con construcción elemental de vidrio, policarbonato y metal. El contenedor escapa de la complejidad constructiva, se centra en generar una atmosfera nítida y blanca.
El edificio es el marco y soporte para el granito. Los espacios interiores se revisten de diferentes tipos de piedra y acabados siendo la fachada la que concentra la mayor carga formal. La orientación directa norte-sur es clave para su diseño. Las celosías de granito azul platino se superponen al contenedor.
El volumen se abre directamente a norte y se cierra al este. La celosía a oeste es vertical y girada 45º llevando al máximo las dimensiones de las piezas. A sur se concentra el esfuerzo. Se ha construido un cesto de granito, un tejido de piezas iguales. El giro de esta pieza permite el calado del tejido, la luz se filtra y se evita la incidencia del sol.
Espacio y construcción al servicio de la piedra.
Credits:
Architects: OLAestudio. OscarLópezAlba. Collaborators: Joao Aldeia, Lucía Fernández, Fátima Nieves, Enrique Ramos, Ezequiel Fernández. Location: Monçao. Portugal. Client: DFG-Pavestone. End date: Septiembre 2018. Material execution budget: 460.000 Photography: Imagen Subliminal (Miguel de Guzmán y Rocío Romero)
客服
消息
收藏
下载
最近



















































