查看完整案例


收藏

下载
“SYUNKATO SOBA”在胡志明市中心的乐成顿街开了,这条街很受日本居民的欢迎。
“SYUNKATO SOBA” opened along Le Thanh Ton Street in the center of Ho Chi Minh City, which is popular for Japanese residents.
© Hiroyuki Oki
(C)小平之(Hirouki Oki)
该网站位于一个杂乱无章的城镇,交通繁忙,周围挤满了人、车和自行车。进入餐厅后,远离城市的喧嚣,一个安静舒适的空间迎接客人,仿佛进入了一个不同的世界。我们的意图是创造一个空间,让人们通过吃苏巴大师做的苏巴料理来感受“日本”。
The site is located in a cluttered town with busy traffic, surrounded by overflowing people, cars, and bikes. Upon entering the restaurant, away from such bustle of the city, a quiet and comfortable space welcomes the guests as if entering a different world. Our intention was the creation of a space for people to feel “Japan” by eating soba cuisine prepared by a soba master.
© Hiroyuki Oki
(C)小平之(Hirouki Oki)
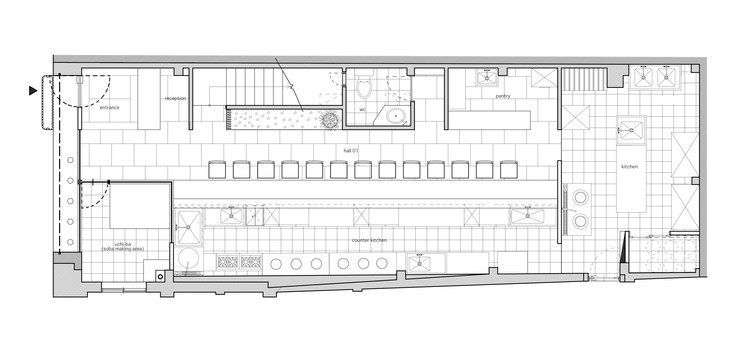
现有建筑形状狭窄,宽度约5米,深度约25米。
The existing building has a narrow shape with about 5m width and 25m depth.
一楼由一个10米长的柜台组成,柜台由非洲的实木制成,周围环绕着面向主要街道的玻璃墙,后面的厨房和与之相连的柜台厨房。
The first floor consists of the bar with a 10m counter made of solid wood from Africa, the soba making area surrounded by glass walls that faces the main street, the kitchen at the back and the counter kitchen connected to it.
© Hiroyuki Oki
(C)小平之(Hirouki Oki)
为了给就餐提供放松的气氛,天花板的高度从原来的3.6米降到了2.4米。柜台上方的透明木制吊架确保了空间的开放性,同时适当地划分了客人的桌子和厨房。古老的木材,像夯土的粉刷墙和石砌的墙壁创造了一种日本的气氛。
In order to provide a relaxing atmosphere for dining, the ceiling height was lowered from the previous 3.6m to 2.4m. The see-through, wooden hanging frame above the counter ensures the openness of the space, while properly dividing the guest tables and the kitchen. The vintage lumber, the painted walls resembling rammed earth, and stone masonry walls create a Japanese atmosphere.
© Hiroyuki Oki
(C)小平之(Hirouki Oki)
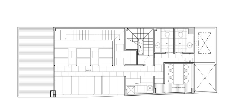
二楼由桌子和私人餐厅组成。
The second floor consists of the tables and private dining room.
为了有效地把桌子放置在一个5米宽的商店,毫米尺度的精细调整是必要的,以妥协的大小,如桌子和岛的宽度。桌子的排列和划分是最重要的,因为间隔直接关系到舒适性。
In order to efficiently place tables in a 5m wide shop, millimeter-scale fine adjustment is necessary for compromising sizes such as the tables and isle width. Arrangement of the tables and dividing them are of the utmost importance since spacing is directly linked to comfortability.
© Hiroyuki Oki
(C)小平之(Hirouki Oki)
为了避免跨越顾客之间的视线或过度的围护感,采用各种形状和饰面的透明木制隔板,以确保舒适。唯一的私人餐厅位于商店最后面的位置,动态地被大型实木板和花岗岩包围,创造了餐厅的独特性。
In order to avoid crossing the lines of vision between customers or an excessive feeling of enclosure, the see-through wooden partitions with various shapes and finishes are used to ensure comfort. The only private dining room is located at the backmost location of the shop, dynamically surrounded by large solid wood boards and granite, creating a uniqueness in the restaurant.
© Hiroyuki Oki
(C)小平之(Hirouki Oki)
Architects Design & Creative Associates
Location District 1, Ho Chi Minh, Vietnam
Category Restaurant
Architect in Charge Atsushi Kawaguchi
Area 170.0 sqm
Project Year 2015
Photographs Hiroyuki Oki
Manufacturers Loading...
客服
消息
收藏
下载
最近




























