查看完整案例


收藏

下载
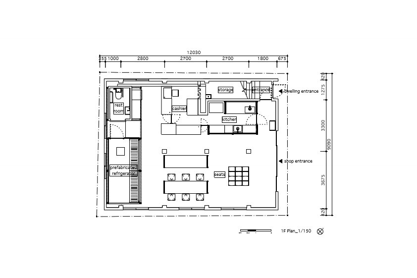
后街有一栋房子,离樱田-多里只有一个街区的距离,步行5分钟就能到达Gotanda车站,那里住着一个13口之家,包括一位曾祖母、两位祖父、他们的儿子和各自的家庭。这栋房子的一楼曾是一家酒类商店的储藏室,这家商店以前是由这家人经营的。这一次,我们将一楼改造成“kakuuchi”(顾客在酒类商店购买饮料,并在店内的一个站立吧台喝饮料)风格的“izakaya”(日式酒吧)。家庭成员参与了从设计到建造的整个过程。
Kuwahara Shoten在这条街和Sakurada-dori的拐角处拥有一栋大楼,他们在这里经营一家酒类商店,为社区服务了很长时间。随着时代的变迁,他们改变了自己的店铺风格(把它变成了便利店),并一直维持着他们的酒类生意直到今天。
他们在这个空间里暂时经营着kakuuchi风格的“仓库转型居酒屋”有一段时间了。但这家人决定要创造一个愉快的工作环境,让全家人都能快乐地工作,而不是继续以低价传统的kakuuchi,于是他们来找我们讨论这件事。
事实上,我们发现“仓库改造的居酒屋”的氛围非常清新,并决定在充分利用现有空间特征的同时,通过清除过去的残留物和有点阴郁的空气,来点亮和更新空间。我们保留了现有的货架、店面的窗框、地板、墙壁和天花板,尽可能多地散布新的元素,让人们觉得,“它看起来不一样!”这里发生了什么?”结果,“storage-turned-izakaya”恢复本身而开始周围的空气流通,因此后街内衬停车场和存储,曾被用作一种“后院”这附近很长一段时间,开始看起来像一个街头,有趣的事情正在发生。顾客可以用啤酒箱坐在其中的几个上面,或者把它们堆在一起,根据自己的饮酒风格,在合适的高度搭起一张临时桌子。该系统具有灵活性,可满足本店的各种需求。
客服
消息
收藏
下载
最近



























