查看完整案例


收藏

下载
客厅: 扶手椅“巴西”花盆“KUG”,其他 Archpole。
建筑师康斯坦丁·拉古丁(Konstantin Lagutin)
这个公寓的项目是在#Myflat概念的框架内开发的,我们正在2013年进行开发。 它的主要思想是使用最可用的材料和简单的设计解决方案来帮助每个人创建理想的内饰。 #Myflat是灵感的来源:任何人都可以拿出一个创意,甚至整个项目,并在没有建筑师帮助的情况下在自己的空间中实施。
椅子“巴西”,桌子“巨兽”,椅子“海鸥”,其他 Archpole.
蜡烛,AN.KHA。 烛台 “管”,Archpole。
陶瓷杯,Archpole。
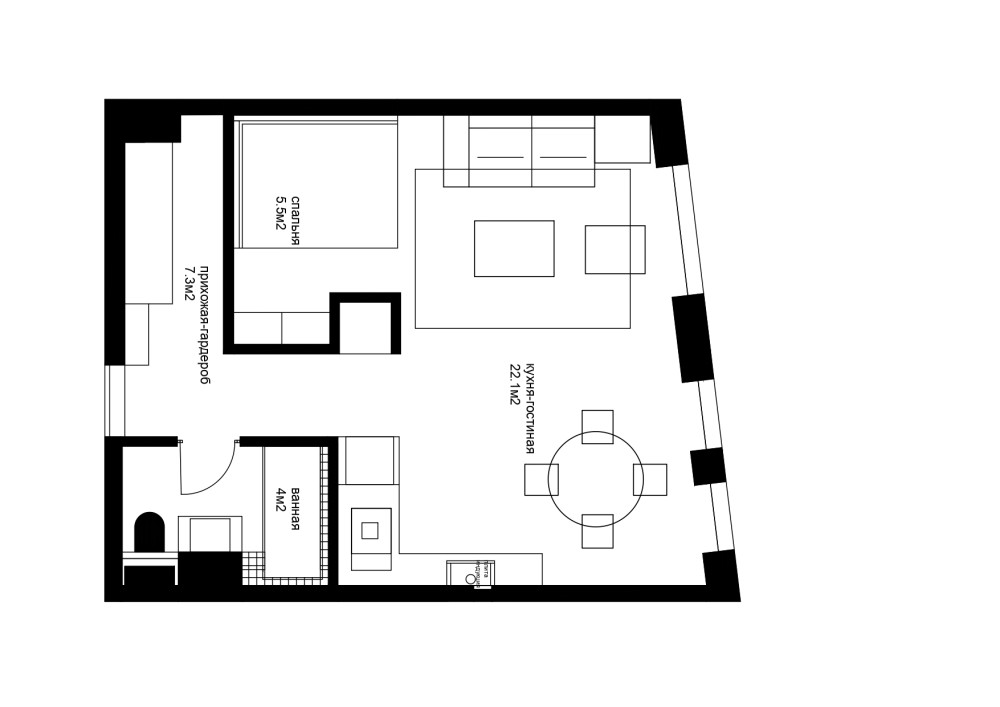
因此,在名为Kostyaflat的“实验”过程中,我们设计了一个小单间公寓,非常适合学生或没有孩子的年轻夫妇。 在41平方米的面积上,我们设法放置了完整的厨房,客厅,卧室,浴室和用作更衣室的走廊。 开放的平面图和不延伸至天花板的隔板有助于保持宽敞感。 窗户周围的塔架可以打破标准面板房的标准窗户感。
厨房金属架,厨柜,Archpole。
Begemot咖啡桌和Kostyaflat桌子,Archpole。 地毯,Belkin.home。
金属字母,Archpole。
衣架模特“小奥利维亚”,Archpole。
装饰用的材料可以在任何五金店找到。 例如,地板是由松木板制成的,而天花板和部分墙壁则是简单的上光漆。 裸露的混凝土价格低廉,外观时尚且价格昂贵,因此我们决定对此进行清晰展示。 所有家具也都由简单的材料制成,并具有简洁的设计。
金属框床,Fullmoon时钟,定制门,其他-Archpole。
三角镜,Kostyaflat衣柜,衣架,相框,模特,珠宝架,一切都来自Archpole。
Kostyaflat的内部缺少规则和模板。 任何人都可以将这套公寓租一天,住在这里,并为自己未来的梦想内饰尝试所有解决方案。
Kostyaflat浴室柜和Plyedge镜子,其他Archpole。
上面为平面图
语言:俄语
客服
消息
收藏
下载
最近















