查看完整案例


收藏

下载

翻译
A stunning new 210,000 sq ft gateway development has been completed on the world-renowned Cambridge Science Park. The building was designed by global architectural practice Scott Brownrigg and developed by property consultants Bidwells on behalf of Trinity College and TUS Park.
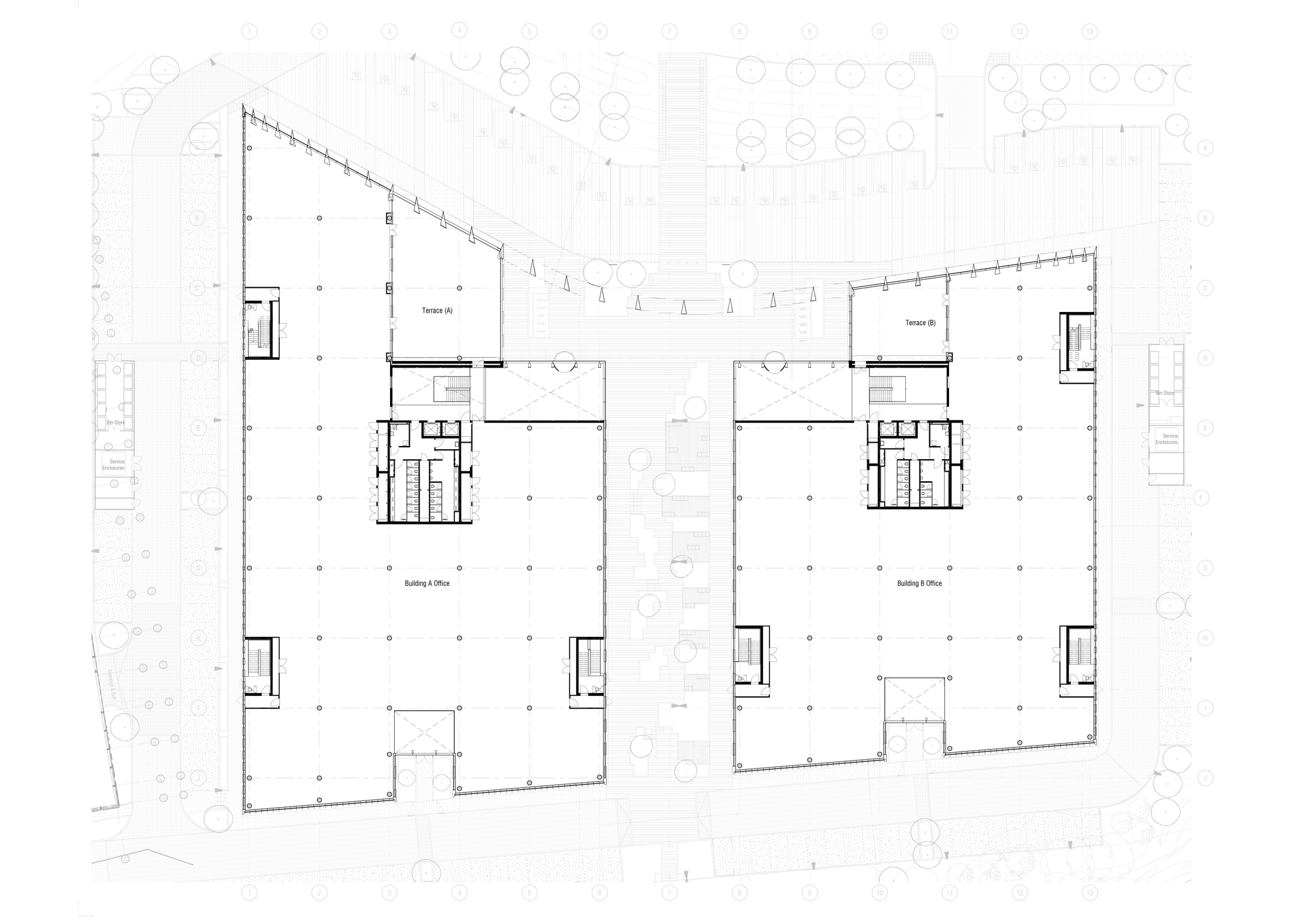
Known as Building 1&2, the development is the final stage of a five-building scheme completed by TusPark and Trinity, the founders of Cambridge Science Park. The scheme comprises a total of 380,000 sq ft of commercial space designed to facilitate and encourage the growth of high-tech and life science companies.
The objective was to replace some of the existing buildings which date back to the 1970s with a series of exceptional quality buildings that would transform the entrance to the Park. Acting as development managers, Bidwells helped bring the two partners together as well as overseeing the construction process and fully letting all five buildings.
The two-building design creates a flexible option for either single or multi-tenant occupancy – featuring a colonnade that sweeps across the front reflecting the curve of the adjacent road. The column spacing guides occupiers and visitors to the entrance, with wider spaced columns emphasising the entrance area and denser columns protecting office space.
The entrance colonnade fins lay flat against the side elevations, creating a rhythmical façade system. These vary across the width of each building to provide office spaces with ample daylight without exceeding solar gain. As well as creating a new area of the public realm between the two buildings, the design gives transparency to the buildings. It also supports the Park’s sustainability agenda having achieved a BREEAM Excellent rating, is superbly flexible and is 90% efficient (NIA/GIA).
Building 1&2 is the largest development on the Cambridge Science Park and follows the successful completion of three other new buildings designed by Scott Brownrigg including a state-of-the-art Bio-Innovation Centre which was completed in 2019. Maintaining a rhythm of verticality that mirrors the parkland surroundings, the group of buildings holds a common language of elegant simplicity in a beautifully landscaped public realm where innovators and entrepreneurs can collaborate in a relaxed setting.
客服
消息
收藏
下载
最近




















