查看完整案例


收藏

下载
SOHO生活办公打破传统办公模式,更具有弹性随心掌控,代表着新潮的生产力,活跃的新经济,更注重自由·时尚·个性·休闲·元素得融合,我们希望能更好的表达年轻人的审美标准以及办公习惯。 SOHO life office breaks the traditional office mode and is more flexible. It represents the trendy productivity and active new economy. It pays more attention to the integration of freedom, fashion, personality, leisure and elements. We hope to better express the aesthetic standards and office habits of young people.
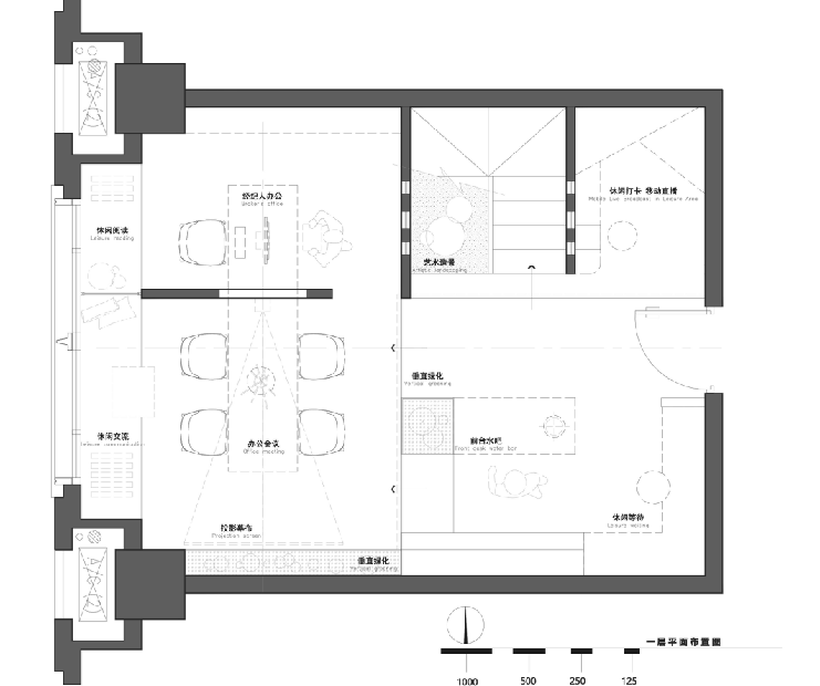
一层平面 First floor plan
二层平面 Second floor plan
客服
消息
收藏
下载
最近


















