查看完整案例


收藏

下载
架构师提供的文本描述。加拿大时尚和负担得起的服装和配饰品牌乔·雷沃(Joe RESTERY)最近在纽约历史悠久的“水晶灯笼”银行分行开设了一家1.4万s.f.旗舰店,分店由斯基莫尔、奥温斯和美林组成,这是一个里程碑式的现代杰作。在第五大道和第四十三街的拐角处,这座建筑被27英尺高的玻璃窗包裹着,这些玻璃窗向上展示室内和通道的视野,朝向漂浮的白色水磨石阁楼和一个发光的天花板,营造出失重建筑的感觉。这些元素由最初的70‘长镀金屏幕和古怪的悬挂’云‘移动装饰,由现代主义雕塑家和家具设计师,哈里伯托亚和室内设计由Burdifilek。
Text description provided by the architects. Joe Fresh, Canada’s stylish and affordable brand of clothing and accessories has recently opened a 14,000 s.f.flagshipstore in New York’s historic “Crystal Lantern” bank branch by Skidmore, Owings and Merrill—a landmark and a modernistmasterpiece. At the corner of 5th Avenue and 43rd Street, the building is wrapped with 27-foot high glass windows thatshowcase the interior and channel views upwards towards a floating, white terrazzo mezzanine and a glowing ceiling thatcreate the impression of weightless architecture. These elements are embellished by an original 70’ long gilded screen andwhimsical hanging ‘cloud’ mobile, both by modernist sculptor and furniture designer, Harry Bertoia and interior design byBurdifilek.
© Ben Rahn A-Frame
C.Ben Rahn A帧
与其他大众市场时尚零售商的概念不同的是,商店内部包含着建筑骨骼,并对周围环境开放。据室内设计师和Burdifilek创意合作伙伴迭戈·博迪(Diego Burdi)介绍,自该品牌五年前推出以来,他和他的合作伙伴保罗·菲拉克(Paul Filek)一直在设计乔·“我们让商店对壮观的景色保持开放,我们认为这是纽约市令人感动的壁纸。这家商店空气通透,色彩绚丽,都市化,而且不断变化,掩盖了乔·新鲜活的本来面目。“
In contrast with other mass-market fashion retailer concepts, the store interior embraces its architectural bones and opens to its surroundings. According to Interior Designer and Burdifilek Creative Partner, Diego Burdi (who with his partner Paul Filekhas designed Joe Fresh stores since the brand was launched five years ago.) “We kept the store open to the spectacular viewswhich we regard as a moving wallpaper of New York City. The store is airy, colourful, urban and ever changing, underscoringwhat Joe Fresh is all about.”
© Ben Rahn A-Frame
C.Ben Rahn A帧
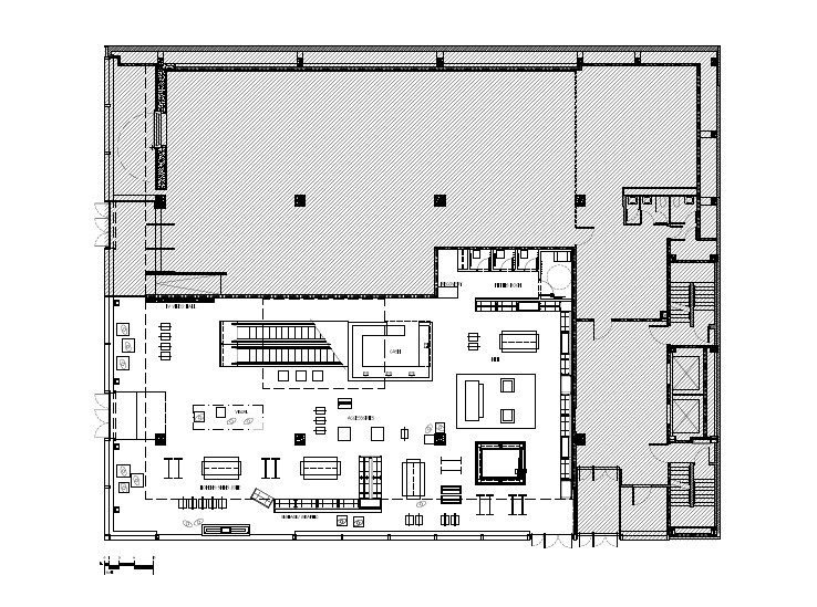
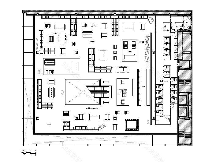
为了保护建筑物的历史特色,商店的任何配件都没有钻到地板、墙壁或天花板上。相反,自由浮动,雕塑商品系统补充了主人的建筑的轻盈。这些定制的设计侏儒可以很容易地安排和重新配置,由乔新的销售团队成小插曲,以分离收藏品和细分空间,根据需要。每一个小插曲都有一个不同的“色彩故事”,讲述乔·斯特林的服装和配饰。这些衣柜是用白色的粉末涂层金属和喷砂的雷克萨斯面板制作而成,以传递光线。它们配有无缝监视器、镜子或背光广告牌,光彩照人,充满活力,加上乔·雷奇标志性的橙色和视频屏幕上的几个发光灯箱,展示着当代艺术视频或时装秀,它们为商店的活力做出了贡献,并帮助商品焕发光彩。
To protect the historic features of the building, none of the shop fittings were drilled into the floor, walls or ceiling. Instead,free-floating, sculptural merchandising systems compliment the lightness of the host building. These custom-designedwardrobes can be easily arranged and reconfigured by Joe Fresh’s merchandising team into vignettes to separate collectionsand to break down the space as desired. Each vignette composes a different ‘colour story’ of Joe Fresh’s clothing andaccessories. The wardrobes are crafted from white, powder-coated metal with sandblasted Lexan panels to transmit light.Incorporating seamless monitors, mirrors or backlit billboards, they are radiant and dynamic, and along with a few selectnumber of glowing light boxes in Joe Fresh’s signature orange and video screens displaying contemporary art videos or runway shows, they contribute to the liveliness of the store and help the merchandise to glow.
© Ben Rahn A-Frame
C.Ben Rahn A帧
与乔·雷夫的时尚风格相呼应的是,伯迪费雷克非常注重细节和比例,从简单而高贵的材料中精心制作出时装配件-但始终带有当代特色。例如,展示台是粉末铝制的“帕森斯桌”和“长凳”,白色聚碳酸酯商品立方体是从木模中倒出来的,使它们具有木纹的质地和瓷器的外观。根据伯迪的说法,“乔·雷沃是一位骄傲的加拿大人,这反映了我们的设计是自信的,但却被低估了。”如果你仔细观察,你会发现微妙但复杂的细微差别,这些细微的细微差别创造了人们的兴趣,并区分了乔的新美学。“
Echoing Joe Fresh’s approach to fashion, Burdifilek paid careful attention to detailing and proportion, crafting the shopfittings from simple yet noble materials—but always with a contemporary twist. For example, the display tables are powdercoatedaluminum ‘Parsons tables’ with ‘benches’ and white polycarbonate merchandising cubes are poured from woodmolds so that they have the texture of wood grain and the appearance of porcelain. According to Burdi, “Joe Fresh is proudlyCanadian, and reflecting that our design is confident yet understated. If you look closely, you’ll find subtle but sophisticatednuances that create interest and distinguish the Joe Fresh aesthetic.”
Courtesy of Burdifilek
由Burdifilek提供
客服
消息
收藏
下载
最近





















