查看完整案例


收藏

下载
架构师提供的文本描述。迈阿密达德学院学术支持中心将学习和管理功能无缝地结合在一起。135,000 SF大楼位于校园的东部入口走廊。它将为12万多名学生集中所有学生服务部门。该项目包括21个典型的930个SF教室,一个资源和测试中心,并徘徊在一个招生办公室的基地。
Text description provided by the architects. The Miami Dade College Academic Support Center seamlessly unites both learning and administrative functions into a cohesive whole. The 135,000 SF building is located on the eastern entry corridor of the campus. It will centralize all Student Services departments for the more than 120,000 students. The project includes 21 prototypical 930 SF classrooms, a Resource and Testing Center and hovers over a base of admission offices.
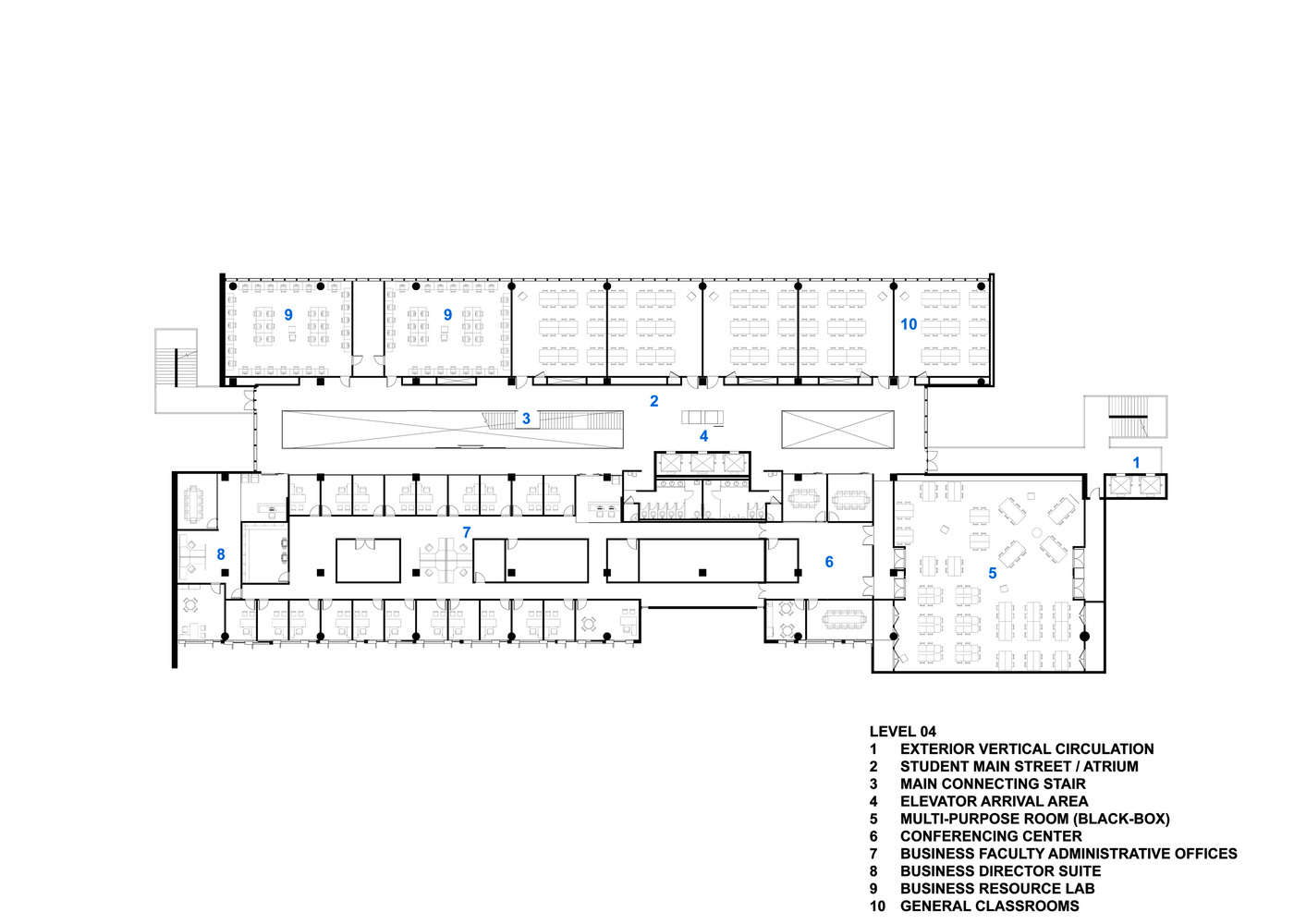
Level 2 Plan
2级计划
为了配合迈阿密达德学院把学生放在第一位的优先考虑,中心的中庭空间让给了学生团体。该空间丰富了校园现有的学生生活,包括中庭内的所有休闲、学习和校园信息项目。
In keeping with Miami Dade College’s priority of putting students first, the central atrium space is given over to the student body. The space enriches the existing student life on campus by con- taining all lounging, study and campus information programs within the atrium.
© Robin Hill
(罗宾·希尔)
© Robin Hill
(罗宾·希尔)
该项目本身就是一个学习工具,帮助学院实现其10项学习成果。其中之一是描述自然系统是如何运作的,并认识到人类对环境的影响。该项目包括两个室外学习空间。其中一个空间围绕着一个“雨钟”,它是一个干燥的保持结构,季节性地调节到空间上登记的暴雨水。一个开放的网格铺路系统隐藏了一个浅的定制雨水蓄水池的主要入口,美丽的说明屋顶雨水收集。
The project is itself a learning tool help- ing the college achieve its 10 Learning Outcomes. Among which is to describe how natural systems function and recognize the impact humans make on the environment. The project includes two outdoor learning spaces. One of the spaces surrounds a ‘rain clock’ which is a dry retention structure that adjusts seasonally to spatially register storm- water. An open grid paving system conceals a shallow custom rain water cistern by the main entry, beautifully illustrating roof rain-water harvesting.
© Robin Hill
(罗宾·希尔)
© Robin Hill
(罗宾·希尔)
Architects Perkins+Will
Location SW 100th St, Miami, FL 33176, United States
Category Other Facilities
Area 135000.0 ft2
Project Year 2012
Photographs Robin Hill
Manufacturers Loading...
客服
消息
收藏
下载
最近



















































