查看完整案例


收藏

下载
采购产品承包商Clune业主代表4M工程肯特工程大厦管理JLL制造商装货.多规格少规格
Contractor Clune Owner Rep 4M Engineering Kent Engineering Building Management JLL Manufacturers Loading... More Specs Less Specs
© Hedrich Blessing Photographers
Hedrich祝福摄影师
架构师提供的文本描述。先见之明是一家领先的全球风险管理公司,为公司、个人和政府提供安全、情报和技术解决方案。当这家公司考虑将总部从弗吉尼亚州麦克莱恩迁往美国时,它正在寻找一个拥有庞大商业影响力的城市,以及一个反映其致力于协作、多功能性和透明度的办公室设计。先见之明还想要一个反映其新品牌的办公室-技术和人类分析的结合,提供简单、可操作的情报,为明智的决策提供信息。
Text description provided by the architects. When Prescient, a leading global risk management firm that provides security, intelligence and technology solutions to companies, individuals and governments, was considering relocating its headquarters from McLean, Va., it was looking for a city with a large commercial presence and an office design that reflected its commitment to collaboration, versatility and transparency. Prescient also wanted an office that reflects its new branding – the marriage of technology and human analysis to deliver simple, actionable intelligence that inform smart decisions.
© Hedrich Blessing Photographers
Hedrich祝福摄影师
先见之明选择芝加哥作为其总部,并在早期的会议上讨论新办公室的设计团队从芝加哥办公室的珀金斯威尔,主题,如工业,艺术,强大和自然上升到顶端。新开张的23,600平方米。英国“金融时报”。在标志性的保诚1大厦的办公室提供了一个很好的例子,如何设计支持文化和战略。先见之明的首席执行官大卫·沃尔什(DavidWalsh)说:“我们使用优雅的技术部署和人工分析来识别和管理客户面临的威胁。”“我们对办公室的愿景是能够站在任何地方,衡量一家适应能力强、以团队为导向的公司在太空中的活力,从而促进协作和透明度。”
Prescient selected Chicago for its HQ, and, in early meetings to discuss the new offices with the design team from the Chicago office of Perkins+Will, themes such as industrial, artistic, strong and natural rose to the top. The newly-opened 23,600 sq. ft. offices in the iconic Prudential 1 Tower offer a terrific example of how design supports culture and strategy. “We use elegant technology deployments coupled with human analysis to identify and manage threats for our clients,” says Prescient CEO David Walsh. “Our vision for the office was to be able to stand anywhere and take measure of the energy of an adaptable, team-oriented company in space that fosters collaboration and transparency.”
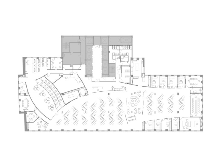
Floor Plan
这个设计团队的灵感来自这个客户所提供的技术、大数据和监控策略的整合。这导致了一种设计,在概念上以“信息在整个空间中移动”为特征,通过相互缠绕的灯光装置来引导你穿过。这些特征与地毯和家具中的有机形式并列在一起,它们代表着地形和景观。(鼓掌)
The design team was inspired by the integration of technology, big data and surveillance tactics that this client offered. This led to a design that conceptually featured “information moving throughout the space” via intertwining light fixtures used as wayfinding to lead you through. Those features are juxtaposed by organic forms in the carpet and furniture which represent topography and landscape.
© Hedrich Blessing Photographers
Hedrich祝福摄影师
空间中的关键材料包括钢铁,以代表力量和安全;木材,为空间增添一种自然的感觉。调色板中的蓝色和绿色代表陆地和海洋,并根据首席执行官的要求添加一种“艺术”感觉。
Key materials in the space include steel, to represent strength and security; wood, to add a natural feel to the space. Blues and greens in the color palette represent land and sea, and add an “artistic” feel as requested by the CEO.
© Hedrich Blessing Photographers
Hedrich祝福摄影师
Architects Perkins+Will
Location One Prudential Plaza, 130 E Randolph St, Chicago, IL 60601, USA
Category Offices Interiors
Area 23600.0 ft2
Project Year 2015
Photographs Hedrich Blessing Photographers
Manufacturers Loading...
客服
消息
收藏
下载
最近


















