查看完整案例


收藏

下载
© Tiago Casanova
c.蒂亚戈·卡萨诺瓦
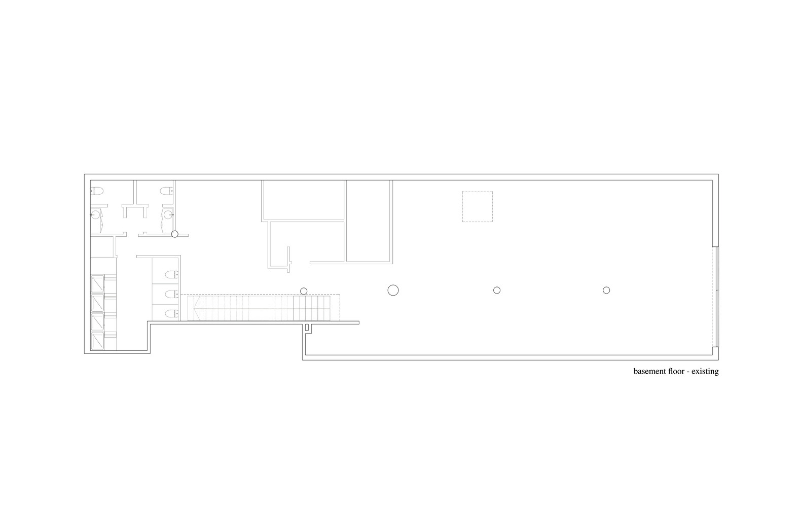
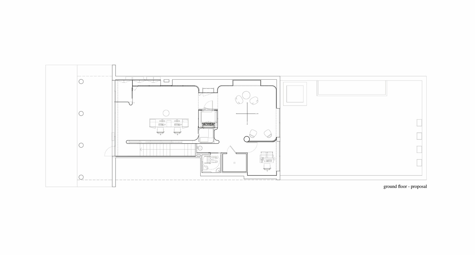
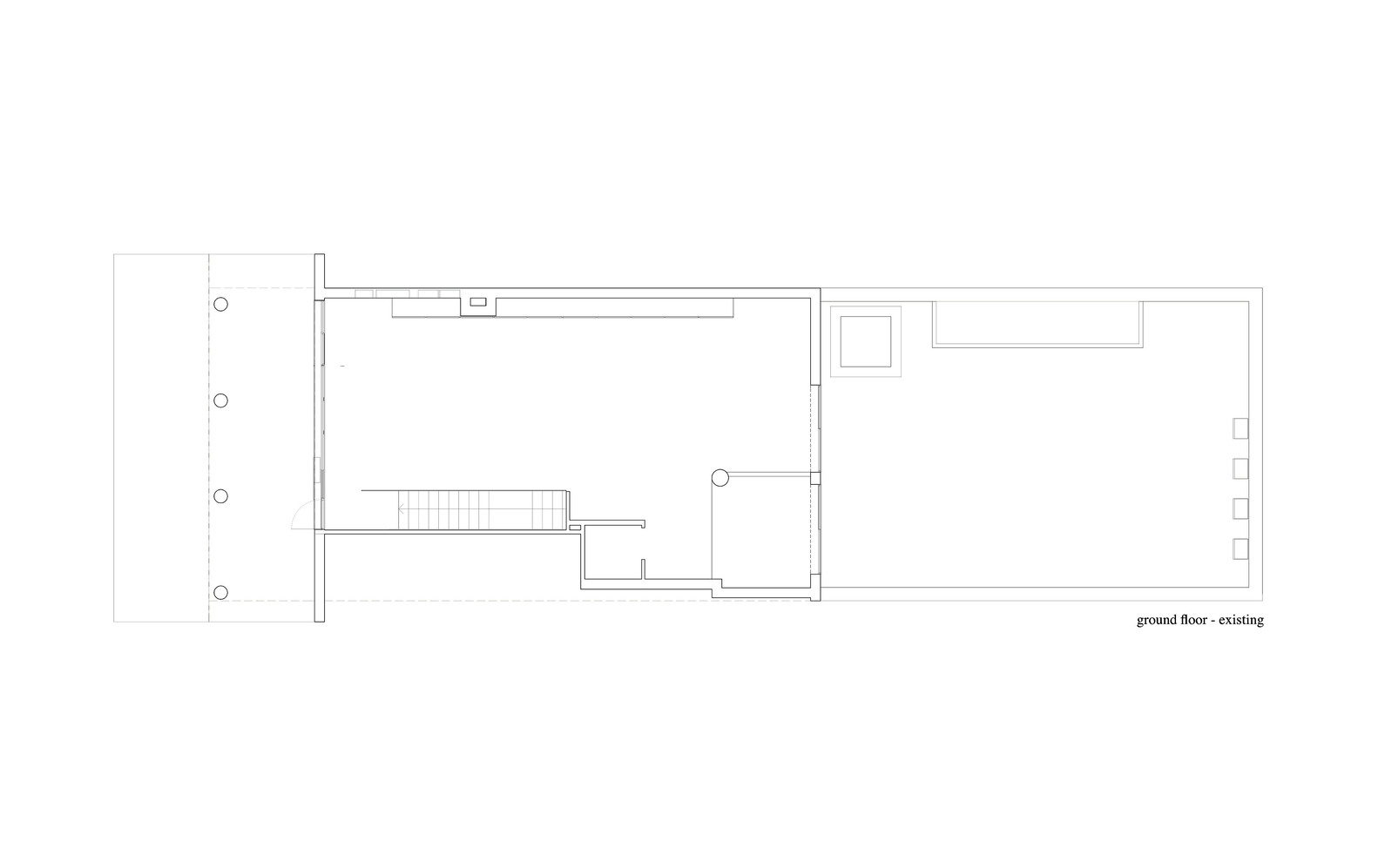
架构师提供的文本描述。一家银行将被改造成牙科诊所;给定的程序表明需要划分空间,只处理周围的墙壁和建筑物的结构。
Text description provided by the architects. A bank to be transformed into a dental clinic; the given program suggested the need of compartmentalize the space, dealing only with the perimeter walls and the building's structure.
© Tiago Casanova
c.蒂亚戈·卡萨诺瓦
每个人都是不同的,但在生物学上是相似的。按照病人的设想,在这个诊所里,每个人都应该有一个独特的、个性化的治疗,但是每个医生的办公室都应该有类似的条件来实现这一点。相似性使得唯一性可以被框架化。同样的诊所,同样的医生每天都应该创造出许多独特的治疗方法。
Every man is different but biologically similar. Following the client's vision, in this clinic each man should have an unique and personalized treatment, but every doctor's office should have similar conditions for this to happen. The similarity allows the uniqueness to be framed. The same clinic, the same doctors should create many unique treatments every day.
Axonometric
关于这一点,主要要求是在5个医生办公室的每个办公室都有自然光。但并不是每个办公室都能直接面对外部正面的空间宽度。在成瘾方面,医生提醒我们注意人们在接受治疗时的幽闭恐惧症现象。回想起维德勒关于幽闭恐惧症和恐惧症诊断在现代运动出现中的重要性的文章,出现了一个问题:他们的前提是死了吗?
Regarding this, the main request was the presence of natural light in each of the 5 doctor's offices. But not every office could face directly an exterior facade regarding the space width. In addiction, the doctors alerted us about claustrophobia phenomenon when people are being treated. Remembering Vidler's texts on the importance of claustrophobia and agoraphobia diagnosis in the modern movement advent, a question arises: are their premisses dead?
© Tiago Casanova
c.蒂亚戈·卡萨诺瓦
客户认为,空间的划分是一种明确的需要,随着视觉的连续性和光的传播需要。三种类型的垂直表面被用来设计建造的质量:不透明的墙壁(地毯覆层,抹灰和铝),玻璃墙和窗帘。大部分的建筑质量是由玻璃墙的设计,分割和连接,塑造的时间,倍增的空间和它的现实。
According to the client, division of space was a clear need, along with the need of visual continuity and light spread. Three types of vertical surfaces were used to design the built mass: opaque walls (carpet cladding, plastered, and aluminium), glass walls and curtains. The majority of the built mass is formed of a glass walls' design, dividing and linking, moulding the time, multiplying the space and its realities.
© Tiago Casanova
c.蒂亚戈·卡萨诺瓦
玻璃的使用-“这种绝缘体,这种止住液体的奇迹”、“这种无色、无味、无法降解”(Baudrillard,1969)、“道德与卫生”(Teyssot,2010)材料,由于非常平淡的原因,变成了一个项目约束-而且它的末端是圆形的,使得医疗手推车成为了非常常见的交通工具,轮椅等等,更流畅更容易。让它平淡无奇。
The use of glass -”this insulator, this miracle of a stopped fluid”, “this colorless, odorless, non-degradable”( Baudrillard, 1969), “moral and hygienic” (Teyssot, 2010) material, - was turned into a project constraint for very prosaic reasons – and its ends are rounded, making the very common transit of medical trolleys, wheelchairs and so one, smoother and easier. To keep it prosaic.
© Tiago Casanova
c.蒂亚戈·卡萨诺瓦
Architects atelierdacosta
Location 4400 Canidelo, Portugal
Category Interiors Architecture
Architect in Charge Hugo Barros
Design Team José Pedro Matos, João Borges
Area 380.0 sqm
Project Year 2015
Photographs Tiago Casanova
客服
消息
收藏
下载
最近




































