查看完整案例


收藏

下载
Courtesy of Synecdoche Design
由Synecdoche设计公司提供
架构师提供的文本描述。这家日益壮大的寿司餐厅扩展到邻近的租户空间,从1000 SF扩展到2800 SF。
Text description provided by the architects. The growing sushi restaurant expanded to the neighboring tenant space from a small 1,000 sf to 2,800 sf.
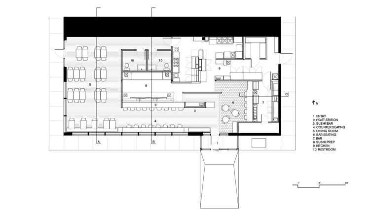
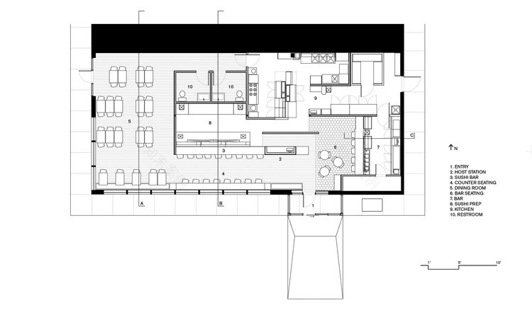
Floor Plan
全新的布局提供了新的用餐体验,通过扩大寿司柜台,增加一个酒吧和柜台座位可以看到大画窗墙。
The entirely new layout provides new dining experiences through an expanded sushi counter, the addition of a bar and counter seating looking out along the large picture window wall.
Courtesy of Synecdoche Design
由Synecdoche设计公司提供
粉刷的松木板被用作日本木材处理的倒转解释,寿司禁令。深烧焦木材纹理的寿司禁令处理反映在色调的家具,瓷砖和天花板。
The whitewashed pine boards are used as an inverted interpretation of the Japanese wood treatment shou sugi ban. The dark charred wood texture of the shou sugi ban treatment is reflected in the tones of the furniture, tile and ceiling.
Courtesy of Synecdoche Design
由Synecdoche设计公司提供
这种对比在材料框架,一个强大的几何布局的各种餐饮和厨房空间。
This contrast in materials frames a strong geometric arrangement of the various dining and kitchen spaces.
Courtesy of Synecdoche Design
由Synecdoche设计公司提供
科里安柜台折叠成长凳座椅,作为一个连续的乐队连接入口到就餐。同样地,粉刷过的松树墙滑过餐厅,来到厨房的入口处。
The corian counter folds to bench seating as a continuous band connecting the entry to dining. Likewise, the whitewashed pine wall slips past the dining room to the kitchen entrance.
© Cat Carty Buswell
Cat Carty Buswell
这两个时刻的工作,通过白色波段的努力连接空间。寿司厨房和酒吧是从白色的带雕刻出来的,把活跃的厨房设计成一种用餐体验。(鼓掌)
Both moment’s work to connect spaces through the effort of the white band. The sushi kitchen and bar are carved out of the white band, framing the active kitchen as a dining experience.
Architects Synecdoche Design Studio, daub-lab
Location 1801 N W Ave, Jackson, MI 49202, USA
Category Restaurant
Area 2800.0 ft2
Project Year 2015
Photographs Cat Carty Buswell
客服
消息
收藏
下载
最近


















