查看完整案例


收藏

下载
记录层体系结构的架构师更多规格规格的规格
Architect of Record Ply Architecture More Specs Less Specs
Architect of Record Ply Architecture More Specs Less Specs
Courtesy of Synecdoche Design Studio
SYNECDOCHE设计工作室的礼貌
架构师提供的文本描述。挥之不去的鼓励。本地来源。密西根米德。受到主人斯堪的纳维亚传统和DIY态度的启发,Bl m Meadworks的设计考虑到了简单性。干净的白线和天然的原料强调了他们服务的会议风格的清脆甜味。不同的座位安排:一个定制的混凝土成品酒吧,大型公共樱桃木桌子,和墙壁安装的两顶柜台;提供2,900平方英尺的Meadery内的各种用餐体验。
Text description provided by the architects. Lingering encouraged. Locally Sourced. Michigan Mead. Inspired by the owner’s Scandinavian heritage and DIY attitude, Bløm Meadworks was designed with simplicity in mind. Clean white lines and natural raw materials emphasize the crisp sweetness of the session style mead they serve. The varied seating arrangements: a customized concrete-finished bar, large communal cherry wood tables, and wall-mounted two-top counters; offer a variety of dining experiences within the 2,900 sqft Meadery.
Text description provided by the architects. Lingering encouraged. Locally Sourced. Michigan Mead. Inspired by the owner’s Scandinavian heritage and DIY attitude, Bløm Meadworks was designed with simplicity in mind. Clean white lines and natural raw materials emphasize the crisp sweetness of the session style mead they serve. The varied seating arrangements: a customized concrete-finished bar, large communal cherry wood tables, and wall-mounted two-top counters; offer a variety of dining experiences within the 2,900 sqft Meadery.
Courtesy of Synecdoche Design Studio
SYNECDOCHE设计工作室的礼貌
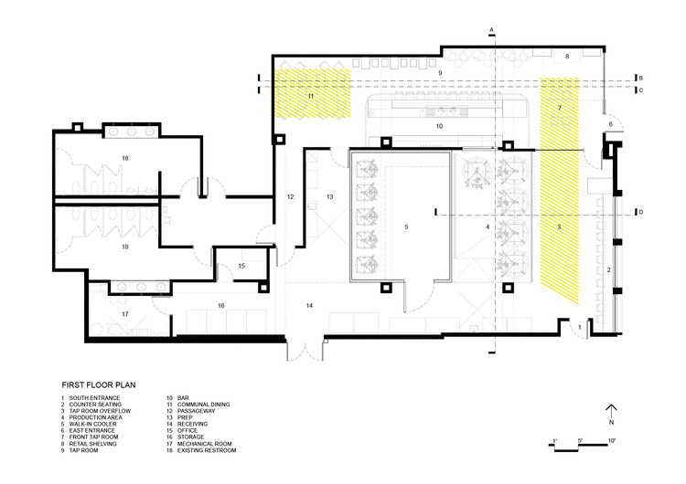
Floor Plan
Courtesy of Synecdoche Design Studio
SYNECDOCHE设计工作室的礼貌
在进入时,明亮的黄色路径引导通过Mead发酵过程的开放显示的方式,并进入旨在容纳溢出座位的现代TAPROOM完整的SYNECDOCHE制造的移动台。在灵活性的意图下创建的,这个空间被一个透明的车库门分割为一个社区空间,它负责举办各种活动、课程和讲习班。
Upon entry, a bright yellow path leads the way through an open display of the mead fermentation process and into a modern taproom full of Synecdoche-fabricated mobile tables intended to accommodate overflow seating. Created with the intention of flexibility, this space is segmented by a transparent garage door doubling as a community space that hosts events, classes, and workshops.
Upon entry, a bright yellow path leads the way through an open display of the mead fermentation process and into a modern taproom full of Synecdoche-fabricated mobile tables intended to accommodate overflow seating. Created with the intention of flexibility, this space is segmented by a transparent garage door doubling as a community space that hosts events, classes, and workshops.
Courtesy of Synecdoche Design Studio
SYNECDOCHE设计工作室的礼貌
Courtesy of Synecdoche Design Studio
SYNECDOCHE设计工作室的礼貌
山核桃和樱桃木用来做桌子,架子和塞纳克多什制造的松饼是从客户的家庭农场采购的。这种由客户家庭农场生产的板条山核桃板组成的假抹布,定义了酒吧上方的区域。屋内的声学板有助于吸音。用樱桃木建造的公共桌子,这是从客户的家庭农场获得的。这种类型的座位鼓励交谈、棋盘游戏和看电影;所有这些都是在布洛姆鼓励的。
The hickory and cherry wood used to build the tables, shelving and Synecdoche-fabricated soffit were sourced from the client’s family farm. The fabricated soffit composed of slatted hickory boards sourced from the client’s family farm define the area over the bar. Acoustic panels within the soffit help with sound absorption. Communal tables built using cherry wood that was sourced from the client’s family farm. This style of seating encourages conversation, board games, and movie watching; all of which are encouraged at Bløm.
The hickory and cherry wood used to build the tables, shelving and Synecdoche-fabricated soffit were sourced from the client’s family farm. The fabricated soffit composed of slatted hickory boards sourced from the client’s family farm define the area over the bar. Acoustic panels within the soffit help with sound absorption. Communal tables built using cherry wood that was sourced from the client’s family farm. This style of seating encourages conversation, board games, and movie watching; all of which are encouraged at Bløm.
Courtesy of Synecdoche Design Studio
SYNECDOCHE设计工作室的礼貌
一个透明的车库风格的门分割了一个被称为“车间”的灵活空间,同时还提供了对生产过程和预定的社区活动的窥探。明亮的黄色道路通过公开展示米德生产过程并进入车间。发酵罐是以主人最亲密的朋友,家人的狗的名字命名,给空间一个个人联系和故事。
A transparent garage-style door segments a flex-space dubbed “The Workshop” while still offering a peek into the production process and scheduled community events. The bright yellow path leads the way through an open display of the mead production process and into The Workshop. Fermenting tanks are named after the owner’s closest friends, family member’s dogs, to give the space a personal connection and story.
A transparent garage-style door segments a flex-space dubbed “The Workshop” while still offering a peek into the production process and scheduled community events. The bright yellow path leads the way through an open display of the mead production process and into The Workshop. Fermenting tanks are named after the owner’s closest friends, family member’s dogs, to give the space a personal connection and story.
Courtesy of Synecdoche Design Studio
SYNECDOCHE设计工作室的礼貌
Architects Synecdoche Design Studio
Location Ann Arbor, MI, United States
Area 2900.0 ft2
Project Year 2018
Category Renovation
Manufacturers Loading...
客服
消息
收藏
下载
最近





























