查看完整案例


收藏

下载
百老汇和富尔顿合作HDR(新条目和平台)和Page Cowley(科尔宾大楼)执行建筑师Grimshaw主顾问和结构工程师ARUM角的设计团队
Design Team Primary headhouse building at the corner of Broadway and Fulton Collaboration HDR (new entries and platforms) and Page Cowley (the Corbin Building) Executive Architect Grimshaw Prime Consultant and Structural Engineer ARUP M & E Consultant ARUP Quantity Surveyor VJ Associates Main Contractor Plaza Schiavone Joint Venture Consultants James Carpenter Design Associates (Sky Reflector-Net artwork) Consultant Construction Manager PB-Bovis Lend Lease Total Building Cost (total and square foot) $1.4B Lighting Manufacturer List and Applications Edison Price Lighting, Beta Lighting, Io Lighting, and ERCO Approved Building Inspector MTA self-certify Manufacturers Loading... More Specs Less Specs
Courtesy of James Ewing
詹姆斯·尤因
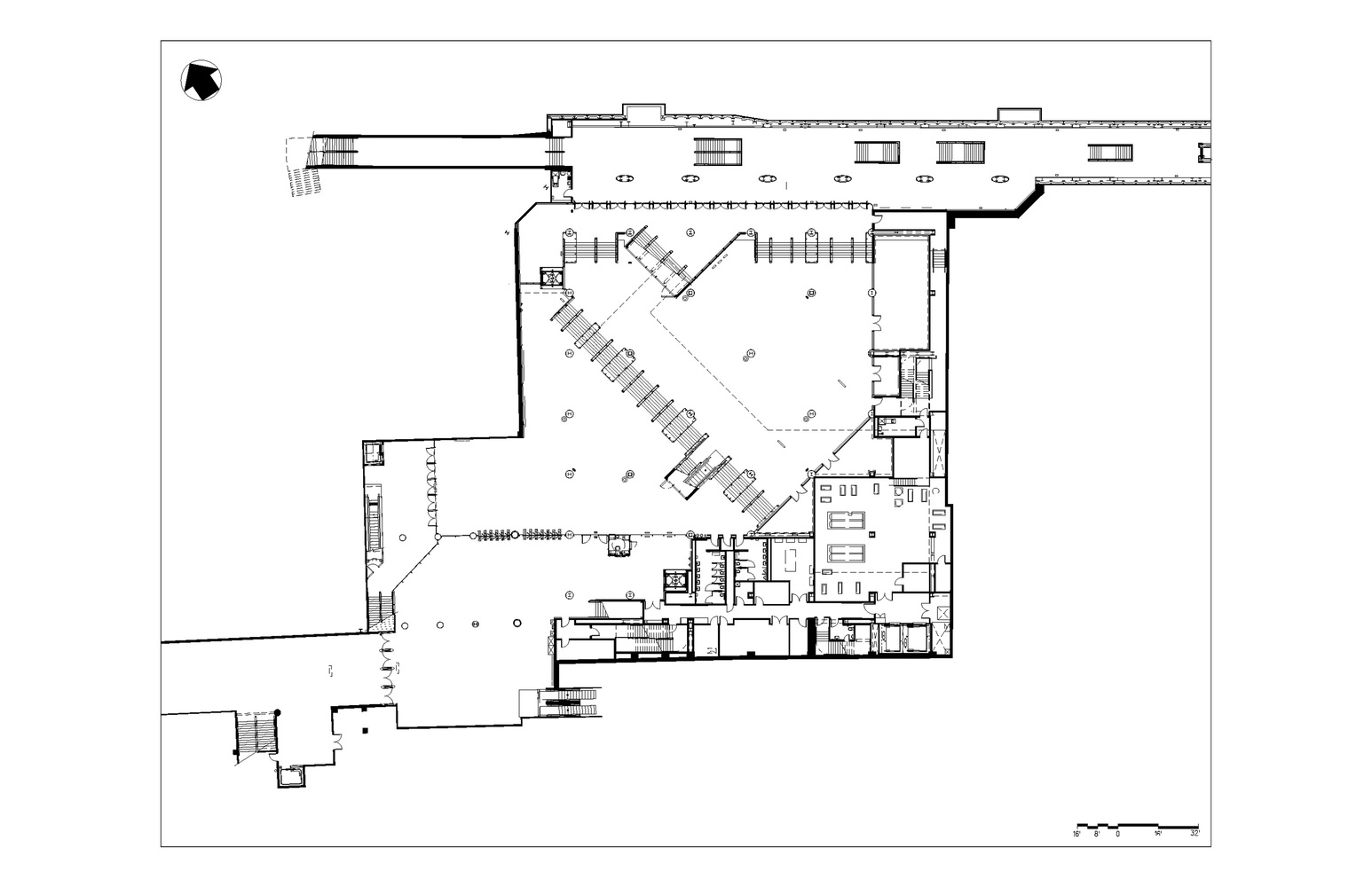
架构师提供的文本描述。富尔顿中心位于曼哈顿下城的中心地带,旨在成为该地区重新开发的催化剂。动态运输环境是连接这一商业中心及其日益增长的住宅部门的重要环节,它简化了九条MTA纽约市公共交通地铁线路(2、3、4、5、A、C、J、Z和R)之间的连接,同时提高了300 000名每日过境乘客的用户体验。
Text description provided by the architects. Situated in the heart of Lower Manhattan, the Fulton Center is designed to be a catalyst for the redevelopment of the area. The dynamic transport environment is a vital link to this commercial center and its growing residential sector, streamlining connectivity between nine MTA New York City Transit subway lines (2, 3, 4, 5, A, C, J, Z and R) while enhancing the user experience for 300,000 daily transit passengers.
Courtesy of James Ewing
詹姆斯·尤因
富尔顿中心是围绕一个大型中庭,包含在一个优雅,透明的外观。锥形钢柱从历史街区的铸铁建筑中汲取灵感,并补充了相邻的科尔宾建筑的整合和修复。
The Fulton Center is organised around a large-scale atrium contained within an elegant, transparent façade. Tapered steel columns draw inspiration from the historic neighborhood’s cast-iron buildings and complement the integration and restoration of the adjacent Corbin Building.
经过仔细调整的入口和出口可以让街景贯穿整个建筑,为所有列车确定清晰有效的通道。一旦超越票价控制和地下,乘客将遇到更明亮,拓宽通道与明确的标志连接复杂的一系列平台。
Carefully aligned entrances and exits allow the streetscape to permeate the building, defining clear and efficient pathways to all trains. Once beyond fare control and underground, passengers will encounter brighter, widened passageways with clear signage connecting the complex array of platforms.
Courtesy of James Ewing
詹姆斯·尤因
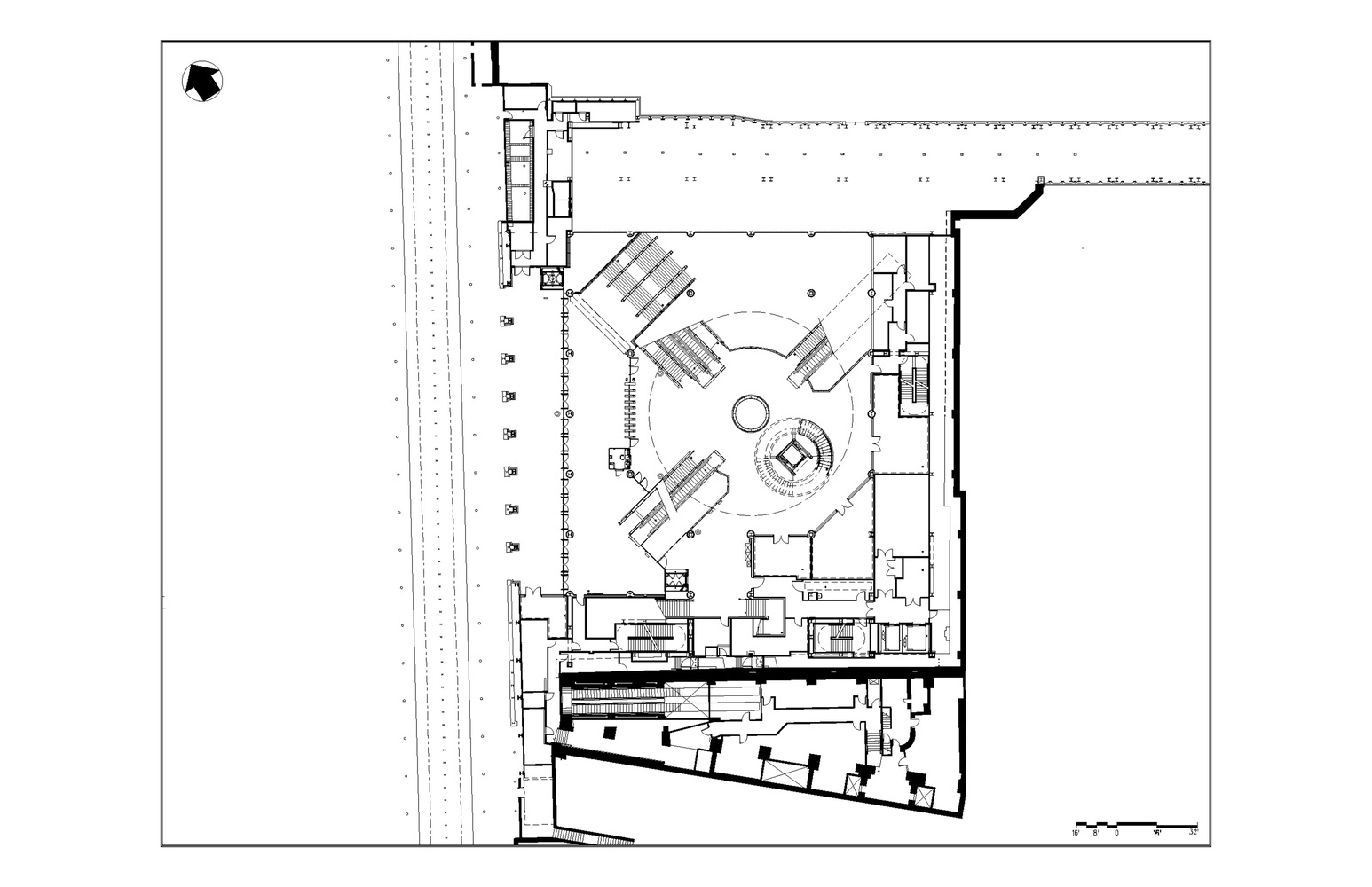
中转中心的中庭上升到120英尺,顶部是一个圆锥形的穹顶,中心在下面的汇合处。
The transit hub’s atrium ascends to 120 feet and is topped by a conical dome centered on the concourse below.
© Halley Tsai / Grimshaw
蔡夏蕾/格里姆肖
将自然光重新定向到交通环境中的中心建筑理念最终导致了穹顶内部的设计和一个名为“天空反射网”的新的综合艺术品的设计,这是Grimshaw建筑师、Arup和James Carpenter Design Associates之间的合作,由Schlaich Bergermann und Partners委托MTA艺术公司的初步发现。
The central architectural concept of redirecting natural light deep into the transit environment culminates in the design of the dome’s interior and a new integrated artwork titled Sky Reflector-Net, a collaboration between Grimshaw Architects, Arup and James Carpenter Design Associates, with preliminary form-finding by Schlaich Bergermann und Partner, commissioned by MTA Arts & Design and MTA Capital Construction Company.
Courtesy of James Ewing
詹姆斯·尤因
富尔顿中心既是社区资产,也是区域交流中心,作为进出曼哈顿下城的门户,发挥着重要的公民作用。通勤者和游客都是通过一个值得纪念的当代城市交通中心来来去去,这个中心在庆祝城市历史的同时,也期待着城市乐观的未来。
Both a neighbourhood asset and regional interchange, the Fulton Center fulfills a significant civic role as a gateway to and from Lower Manhattan. Commuters and visitors alike arrive and depart through a memorable, contemporary urban transit center that celebrates the city’s history while looking forward to its optimistic future
Architects Grimshaw
Location 200 Broadway, New York, NY 10038, USA
Category Shopping Centers
Area 190000.0 ft2
Project Year 2014
Photographs Halley Tsai / Grimshaw
Manufacturers Loading...
客服
消息
收藏
下载
最近
























