查看完整案例


收藏

下载
Courtesy of Stark Video Inc. - Aerial New York © SOM
斯塔克视频公司提供。-纽约航空公司高级官员
架构师提供的文本描述。位于沙地的凯瑟琳格林领导和可持续发展学校是纽约市第一所净零能源学校,也是世界上第一所这样的学校。这所占地68,000平方英尺的两层学校为444名幼儿园前至五年级学生提供服务.这座尖端建筑每年从可再生能源中收获的能源和每年使用的能源一样多。
Text description provided by the architects. The Kathleen Grimm School for Leadership and Sustainability at Sandy Ground is the first net zero energy school in New York City and one of the first of its kind worldwide. The 68,000-square-foot, two-story school serves 444 pre-kindergarten through fifth grade students. The cutting-edge building harvests as much energy from renewable on-site sources as it uses on an annual basis.
Section © SOM
第三节
该项目旨在遵守SCA绿色学校指南,而不是LEED认证,它是纽约市学校建设局的第一个“可持续性实验室”。对最终可持续性的探索将为城市的学校设计计划提供实质性的好处,并有助于实现OneNYC的目标,大幅减少全球变暖的排放。Som的设计比SCA标准公立学校减少了50%的能源使用。
Designed to comply with the SCA Green Schools Guide in lieu of LEED® certification, the project is the NYC School Construction Authority’s first “sustainability lab.” This exploration into ultimate sustainability will provide substantial benefits to the City’s School Design Program and help achieve OneNYC goals for significant reductions in global warming emissions. SOM’s design offers an energy- use reduction of 50% over a SCA standard public school.
© James Ewing - OTTO
.詹姆斯·尤因-奥托
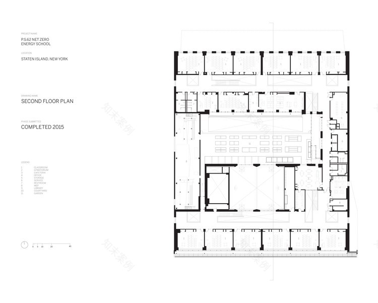
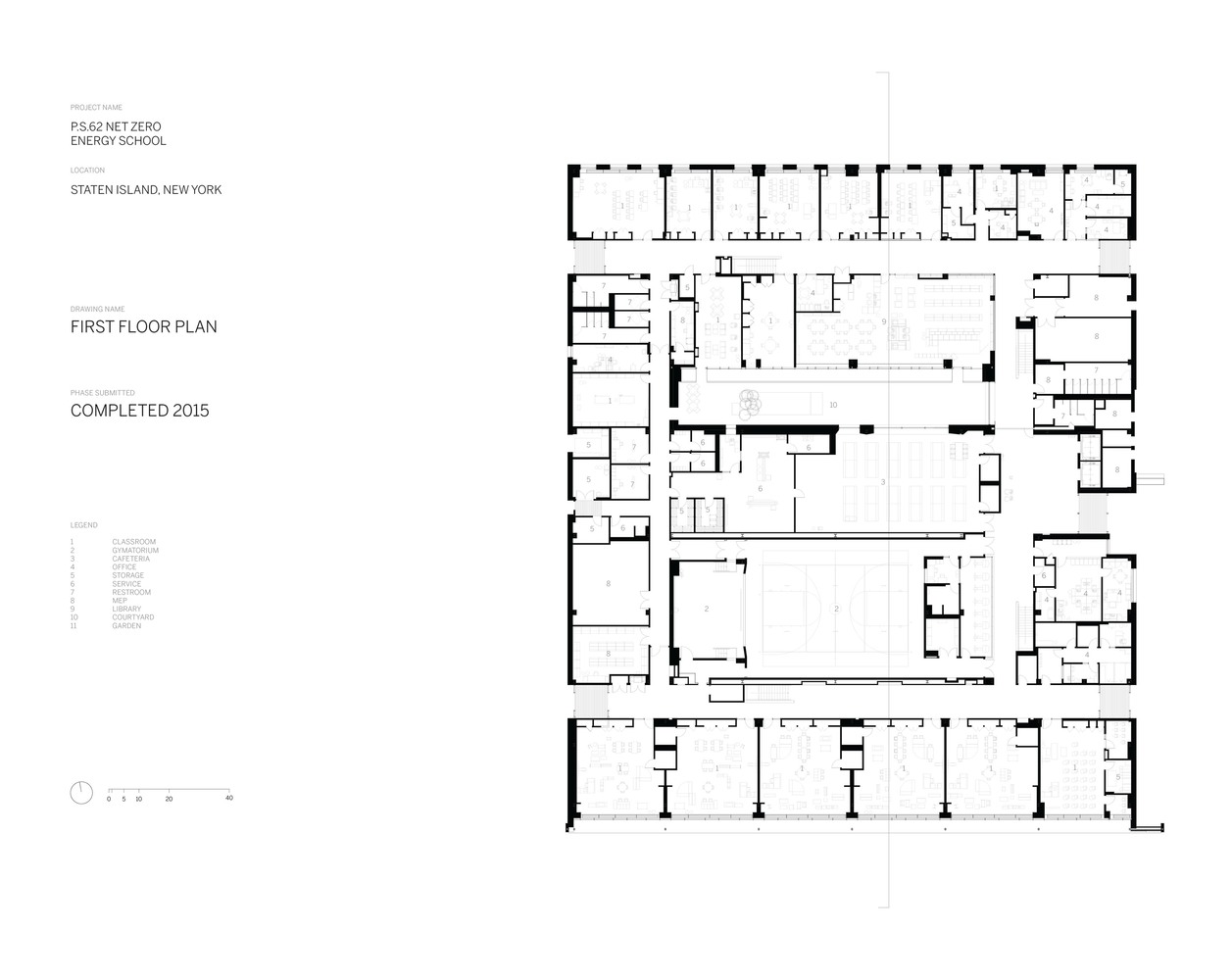
Floor Plan © SOM
楼面平面图
© James Ewing - OTTO
.詹姆斯·尤因-奥托
SOM优化了四合院式建筑的定位和聚集,以充分利用阳光在屋顶和南面的充足的采光和光伏阵列。设计中还包含了其他可持续和低能耗的功能,包括超紧密的高性能建筑围护结构、日光设置走廊、节能照明结构、低能厨房设备、温室和菜园、地球交换系统、能量回收通风和需求控制通风,以及太阳能热水热系统。
SOM optimized the orientation and massing of the courtyard-shaped building to take advantage of sunlight for both ample daylighting and photovoltaic arrays on the roof and south facade. Other sustainable and low-energy features incorporated in the design include an ultra-tight high-performance building envelope, daylight o set corridors, energy-efficient lighting textures, low-energy kitchen equipment, a greenhouse and vegetable garden, a geo-exchange system, energy recovery ventilators and demand-control ventilation, and a solar thermal system for hot water.
© James Ewing - OTTO
.詹姆斯·尤因-奥托
Detail © SOM
细节(SOM)
© James Ewing - OTTO
.詹姆斯·尤因-奥托
Architects SOM
Location 644 Bloomingdale Rd, Staten Island, NY 10309, USA
Category Schools
Design Partner Roger Duffy
Area 68000.0 ft2
Project Year 2015
Photographs James Ewing - OTTO
客服
消息
收藏
下载
最近






























