查看完整案例


收藏

下载
© Magda Biernat
马格达·比尔纳特
架构师提供的文本描述。125年多来,巴纳德学院以其独特的学术文化而闻名-致力于智力、抱负和远见的女性,致力于教学和学术的融合,拥抱与哥伦比亚大学的关系,并充满了纽约市的活力。为了实现其未来的使命,学院在其校园的中心建造了一个跨学科奖学金的新地方。2018年秋季学期开幕后,谢丽尔和菲利普·米尔斯坦教学中心将成为巴纳德的学术和智力生活中心,并加强其对可持续性和气候行动的承诺。
Text description provided by the architects. For more than 125 years, Barnard College has been known for its distinctive academic culture—dedicated to women of intellect, ambition, and vision, devoted to the integration of teaching and scholarship, embracing its relationship with Columbia University, and imbued with the vibrancy of New York City. To carry its mission into the future, the College has constructed a new place of interdisciplinary scholarship at the heart of its campus. When it opens for the Fall 2018 semester, The Cheryl and Philip Milstein Center for Teaching and Learning will become the hub of academic and intellectual life at Barnard and reinforce its commitment to sustainability and climate action.
Text description provided by the architects. For more than 125 years, Barnard College has been known for its distinctive academic culture—dedicated to women of intellect, ambition, and vision, devoted to the integration of teaching and scholarship, embracing its relationship with Columbia University, and imbued with the vibrancy of New York City. To carry its mission into the future, the College has constructed a new place of interdisciplinary scholarship at the heart of its campus. When it opens for the Fall 2018 semester, The Cheryl and Philip Milstein Center for Teaching and Learning will become the hub of academic and intellectual life at Barnard and reinforce its commitment to sustainability and climate action.
© Magda Biernat
马格达·比尔纳特
Som设计了这座128,000平方英尺的建筑,作为知识、教学和学习的十字路口.米尔斯坦中心鼓励学生和教师之间的对话,将技术无缝地带入灵活的教室和多式学习中心,并为反思、团队学习、研究和协作提供了各种鼓舞人心的空间。
SOM designed the 128,000-square-foot building to serve as a crossroads of knowledge, teaching, and learning. The Milstein Center encourages dialogue between students and faculty, brings technology seamlessly into flexible classrooms and multimodal learning centers, and provides a variety of inspiring spaces for reflection, team-based learning, research, and collaboration.
SOM designed the 128,000-square-foot building to serve as a crossroads of knowledge, teaching, and learning. The Milstein Center encourages dialogue between students and faculty, brings technology seamlessly into flexible classrooms and multimodal learning centers, and provides a variety of inspiring spaces for reflection, team-based learning, research, and collaboration.
© Magda Biernat
马格达·比尔纳特
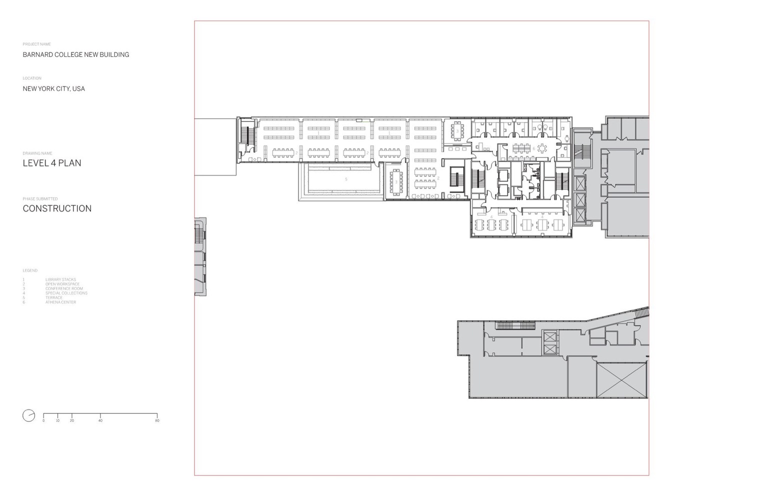
米尔斯坦中心的中心是一个新型图书馆。它庆祝巴纳德的收藏和档案,同时加强了学生的选择。该设计为各种学习空间注入了创造性、探索性学习的机会。它提供适合个人、小团队和大型团体的设置,以及最先进的多媒体中心.图书馆将校园内的所有部门和学科联系在一起-物理、数字和哲学。它与一系列灵活的学习空间相连,包括教育学中心、经验推理中心、数字人文科学中心、设计中心和媒体中心,以及一个运动实验室。图书馆上方是Vagelos计算科学中心(VagelosComputationalScience Center),在该中心,学生和教师可以在数据和计算方面进行开拓性研究。整个建筑的精心照明设计结合了自然光、程序照明场景和个人控制,以增强学习环境,同时有助于节约能源。
The focal point of The Milstein Center is a new kind of library. It celebrates Barnard’s collections and archives, while enhancing options for students. The design infuses a variety of study spaces with opportunities for creative, exploratory learning. It provides settings suited to individuals, small teams, and large groups, along with state-of-the-art multimedia centers. The library links all departments and disciplines across the campus—physically, digitally, and philosophically. It is connected to a range of flexible learning spaces, including centers for pedagogy, empirical reasoning, digital humanities, design, and media, and a movement lab. Above the library is the Vagelos Computational Science Center, where students and faculty can collaborate on pioneering research in data and computation. Careful lighting design throughout the building combines natural light, programmed lighting scenes, and individual controls to enhance learning environments while contributing to energy savings.
The focal point of The Milstein Center is a new kind of library. It celebrates Barnard’s collections and archives, while enhancing options for students. The design infuses a variety of study spaces with opportunities for creative, exploratory learning. It provides settings suited to individuals, small teams, and large groups, along with state-of-the-art multimedia centers. The library links all departments and disciplines across the campus—physically, digitally, and philosophically. It is connected to a range of flexible learning spaces, including centers for pedagogy, empirical reasoning, digital humanities, design, and media, and a movement lab. Above the library is the Vagelos Computational Science Center, where students and faculty can collaborate on pioneering research in data and computation. Careful lighting design throughout the building combines natural light, programmed lighting scenes, and individual controls to enhance learning environments while contributing to energy savings.
© Magda Biernat
马格达·比尔纳特
除了图书馆外,米尔斯坦中心还为四个学术部门提供会议设施、跨学科工作空间,并为雅典娜领导研究中心和巴纳德妇女研究中心提供一个新家。一楼设有一间小咖啡吧,向公众开放,而大楼的高层则可容纳教员办公室。
In addition to the library, The Milstein Center provides conference facilities, interdisciplinary workspaces for four academic departments, and a new home for the Athena Center for Leadership Studies and the Barnard Center for Research on Women. The ground floor features a small coffee bar that is open to the public, while the building’s upper stories accommodate faculty offices¬.
In addition to the library, The Milstein Center provides conference facilities, interdisciplinary workspaces for four academic departments, and a new home for the Athena Center for Leadership Studies and the Barnard Center for Research on Women. The ground floor features a small coffee bar that is open to the public, while the building’s upper stories accommodate faculty offices¬.
1st floor plan
一楼图则
索姆设计了米尔斯坦中心,以回应它突出的位置,俯瞰草坪-巴纳德校园的标志性开放空间。建筑物的聚集,有一个五层高的基地,在一系列的梯田,最大限度的阳光量,到达草坪的整个一天。这些梯田减少了热岛效应,并提供了一系列吸引人的室外空间,供城市校园内的学习、思考和与自然的联系。在米尔斯坦中心的西侧,一座11层的窄塔与邻近的Altschul大厅并列。五楼的高架桥将这两座建筑连接起来,将瓦格罗斯计算科学中心与阿尔特舒尔大厅内的以科学为中心的空间连接起来。靠近米尔斯坦中心的顶部,一本悬挑的书包含一个教师休息室,可以俯瞰哈德逊河、哥伦比亚大学校园和曼哈顿中城。
SOM designed The Milstein Center in response to its prominent location overlooking the Lawn—the signature open space on the Barnard campus. The building’s massing, with a five-story base that rises in a series of terraces, maximizes the amount of sunlight that reaches the Lawn throughout the day. These terraces reduce the heat island effect and provide a series of inviting, outdoor spaces for study, contemplation, and connection to nature within the urban campus. On the west side of The Milstein Center, a narrow, eleven-story tower aligns with the neighboring building, Altschul Hall. The skybridge at the fifth floor links the two buildings to connect the Vagelos Computational Science Center with the science-focused spaces inside Altschul Hall. Near the top of The Milstein Center, a cantilevered volume contains a faculty lounge with sweeping views of the Hudson River, the Columbia University campus, and Midtown Manhattan.
SOM designed The Milstein Center in response to its prominent location overlooking the Lawn—the signature open space on the Barnard campus. The building’s massing, with a five-story base that rises in a series of terraces, maximizes the amount of sunlight that reaches the Lawn throughout the day. These terraces reduce the heat island effect and provide a series of inviting, outdoor spaces for study, contemplation, and connection to nature within the urban campus. On the west side of The Milstein Center, a narrow, eleven-story tower aligns with the neighboring building, Altschul Hall. The skybridge at the fifth floor links the two buildings to connect the Vagelos Computational Science Center with the science-focused spaces inside Altschul Hall. Near the top of The Milstein Center, a cantilevered volume contains a faculty lounge with sweeping views of the Hudson River, the Columbia University campus, and Midtown Manhattan.
North-South section
南北段
East elevation
就像建筑的密集性一样,材料的选择对校园环境也很敏感。正面采用雨屏系统,覆盖锌板。具有柔和的反射率和温暖,锌与周围的砖,石头和混凝土建筑物协调。同时,金属立面表达了一种当代美学,将米尔斯坦中心作为其时代的建筑加以区分。
Much like the building’s massing, material selections are sensitive to the campus context. The facade uses a rain screen system of patinated zinc panels. With a soft reflectivity and warmth, the zinc harmonizes with the surrounding brick, stone, and concrete buildings. At the same time, the metal facade expresses a contemporary aesthetic that distinguishes The Milstein Center as a building of its time.
Much like the building’s massing, material selections are sensitive to the campus context. The facade uses a rain screen system of patinated zinc panels. With a soft reflectivity and warmth, the zinc harmonizes with the surrounding brick, stone, and concrete buildings. At the same time, the metal facade expresses a contemporary aesthetic that distinguishes The Milstein Center as a building of its time.
© Magda Biernat
马格达·比尔纳特
针对LEED v3银牌认证,米尔斯坦中心延续了巴纳德学院可持续校园建设项目的传统。该建筑的设计特点既支持巴纳德的环境课程,也支持学生团体和教职员工制定的行为改变计划。与学院建设一个更可持续校园和减少碳排放的愿景相一致,Milstein中心的设计目标是与ASHRAE 90.1 2007相比,实现15%的能源成本节约、33%的建筑节水、50%的景观灌溉节水和90%的建筑废物转移。
Targeting LEED v3 Silver certification, The Milstein Center continues Barnard College’s tradition of sustainable campus construction projects. The building’s design features support both Barnard’s environmental curriculum and the behavior change programs being enacted by the student body and faculty. Aligned with the College’s vision to build a more sustainable campus and reduce carbon emissions, The Milstein Center is designed to achieve 15 percent energy cost savings compared to ASHRAE 90.1 2007, 33 percent water savings within the building, 50 percent water savings for landscape irrigation, and 90 percent construction waste diversion.
Targeting LEED v3 Silver certification, The Milstein Center continues Barnard College’s tradition of sustainable campus construction projects. The building’s design features support both Barnard’s environmental curriculum and the behavior change programs being enacted by the student body and faculty. Aligned with the College’s vision to build a more sustainable campus and reduce carbon emissions, The Milstein Center is designed to achieve 15 percent energy cost savings compared to ASHRAE 90.1 2007, 33 percent water savings within the building, 50 percent water savings for landscape irrigation, and 90 percent construction waste diversion.
© Magda Biernat
马格达·比尔纳特
米尔斯坦中心体现了知识合作和跨学科交流的文化,这是巴纳德学院的定义。它建立了跨部门的联系,促进了全球联系,并促进了学生和教师之间的联系。这座变革性的建筑为巴纳德为125年的智慧、抱负和远见的女性服务做好了准备。
The Milstein Center embodies the culture of intellectual collaboration and interdisciplinary interchange that defines Barnard College. It creates cross-departmental ties, stimulates global connections, and fosters bonds between students and faculty. This transformative building prepares Barnard for another 125 years of service to women of intellect, ambition, and vision.
The Milstein Center embodies the culture of intellectual collaboration and interdisciplinary interchange that defines Barnard College. It creates cross-departmental ties, stimulates global connections, and fosters bonds between students and faculty. This transformative building prepares Barnard for another 125 years of service to women of intellect, ambition, and vision.
© Magda Biernat
马格达·比尔纳特
Architects SOM
Location 3009 Broadway, New York, NY 10027, United States
Area 128000.0 ft2
Project Year 2018
Photographs Magda Biernat
Category Sustainability
客服
消息
收藏
下载
最近































