查看完整案例


收藏

下载
© Mark Hadden
架构师提供的文本描述。370 个住宅的改建和翻新使希姆兰住房协会 1977 年预制的“起重机轨道”庄园变成了一个欢迎和可持续的花园城市建筑群。新的木质外墙以大窗户、法国阳台和海湾窗户为特色,充满了亮光和宜人的景色。
Text description provided by the architects. The conversion and renovation of 370 homes transforms the monotonous, 1977 prefabricated "crane track" estate of the Himmerland Housing Association into a welcoming and sustainable garden city complex. The new timber-clad façades feature large windows, French balconies and bay windows, filling the homes with light and a pleasant outlook. © Mark Hadden c.Mark Hadden
一些房屋被合并成更大的公寓,而另一些则作为现代化的两层屋顶公寓而被向上扩展,有空旷的空间和全高的玻璃。20 世纪 70 年代的房地产因此变成了一个现代的,家庭友好的联排住房集群。
Some homes are combined into larger flats, while others are being expanded upwards as modern, two-storey roof-top flats with open spaces and full-height glazing. The 1970s estate is thus transformed into a contemporary, family-friendly cluster of townhouses.
底层公寓是完全无障碍的终身住宅,有小型私人花园和停车场。
新的覆层和顶楼单位设计为预制单位,只是简单地悬挂在适当的位置。
Ground floor apartments are fully accessible life-time homes, featuring small private gardens and a carport. As part of the overall sustainability strategy, the new cladding and roof-top flats are designed as pre-fabricated units which are simply hoisted in place.
© Mark Hadden
c.Mark Hadden
一座符合丹麦 2020 年低能耗等级严格要求的共享社区活动建筑位于中心地带,是该地区所有希姆兰住房协会居民的自然聚集地。
A shared community activity building, which meets the strict requirements of the Danish low-energy class 2020, is located centrally as a natural gathering point for all of Himmerland Housing Association’s residents in the area.
© Mark Hadden
c.Mark Hadden
全面转变。
All-round Transformation.
19 和 22 部门是七十年代公营房屋的典型例子。到达建筑群时,室外地区空无一人。那里有荒凉和无名的中央停车场和单调的植被,形如开阔的草坪和统一的灌木和灌木丛。
The Departments 19 and 22 of the housing estate were typical examples of public housing dating from the 1970s. On arrival at the complex, the outdoor areas were deserted. There were desolate and anonymous central car parks and monotonous vegetation in the shape of open lawns and uniform shrubs and bushes.
© Mark Hadden
c.Mark Hadden
该建筑群背弃了当地地区,每个单独的住宅单元都自食其力。娱乐区零星分散,身份不明。在住宅单元前面的区域是公共的,直到正面,没有人拥有这些地区的所有权。
The complex turned its back on the local area and each individual residential unit turned in on itself. The recreational areas were sporadic, fragmented and their identity unclear. The areas in front of the residential units were public right up to the facades, and no-one took ownership of these areas.
© Mark Hadden
c.Mark Hadden
现有的混凝土外墙是单调、悲伤和破旧的。小窗户和笨重的阳台造成了黑暗的住宅单元和不受欢迎的外观。平地通风,结构在关键地区表现出严重的热损失。
The existing concrete façades were monotonous, sad and dilapidated. Small windows and ponderous balconies resulted in dark residential units and an unwelcoming appearance. Flats were draughty, and the structure showed severe heat loss in critical areas. © Mark Hadden c.Mark Hadden
改造项目把这个匿名住宅区变成了一个充满活力、社会可持续发展的地区,在这里,景观元素让你很容易找到自己的路,开放的正面花园为这个地方创造了个人身份。开放的正面花园鼓励居民拥有房屋之间的空间,并在公共空间中增加一种安全感。同样,前封闭的端墙也得到了振兴,窗户和阳台可以俯瞰更多的区域。
The renovation project has transformed this anonymous residential area into a vibrant, socially sustainable district, in which landscape elements make it easy to find your way and open front gardens create individual identity for this location. The open front gardens encourage residents to take ownership of the spaces between the houses and add a sense of security in the public spaces. Similarly, the former closed end-walls have been revitalized, with windows and balconies overlooking more of the area.
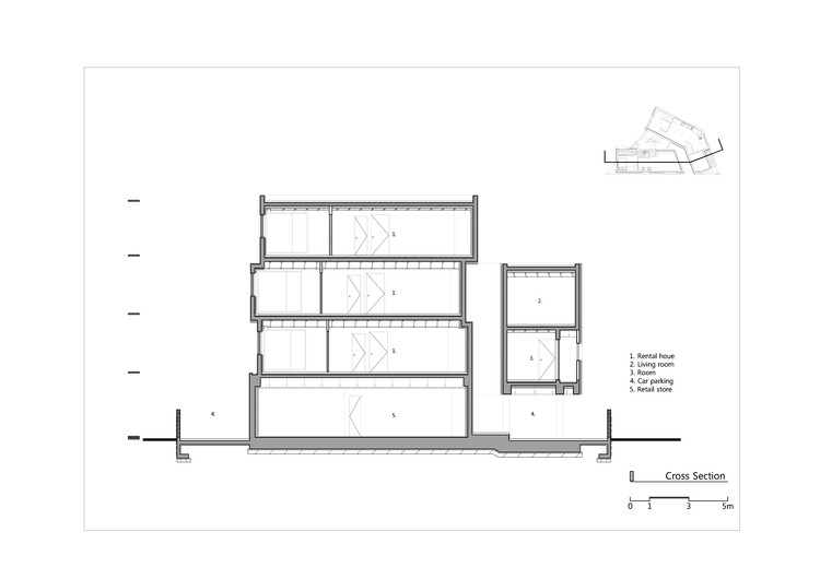
Cross Section
有了砖墙、漆黑的预制木结构,从地板到天花板的玻璃部分,有特色的“屋顶箱”,以及新的钢和玻璃轻型楼梯,这座建筑群已经落后于 20 世纪 70 年代,为北部日德兰地区公共住房的翻新设定了当代新标准。
With the brick gables, black-painted prefabricated timber cladding with glass sections from floor to ceiling, characteristic "roof boxes" and new light stairways in steel and glass, the building complex has left the 1970s behind, setting contemporary new standards for the renovation of public housing in northern Jutland.
© Mark Hadden
c.Mark Hadden
所有单位都已全面翻新,无障碍条件得到改善,并通过改建和扩建,建立了以前不在住房协会这两部分提供的单位范围之内的新型住房。例如,91 个翻新后的公寓现在是两层楼高的单元,许多公寓都有朝南的大阳台。仍然有一个坚实的基础,完善的两室和三室公寓,而更有趣的新住宅类型增加,以使更多的居民到该地区。
All of the flats have been fully renovated, accessibility has been improved and, via conversions and extensions, new types of housing have been established that were not previously among the range of flats offered in these two sections of the housing association. For example, 91 of the refurbished flats are now two-storey units and many have large, south-facing balconies. There is still a solid base of well-renovated two- and three-room flats, while more interesting new home typologies are added to bring a greater diversity of residents into the area.
© Mark Hadden
c.Mark Hadden
可持续性战略。
Sustainability Strategy.
总体可持续性战略的基础是采取综合办法,将环境、财政和社会方面都纳入这一概念。我们力求在装修过程中实现建筑质量、一般财务限制和各种整体可持续性措施之间的协调一致的相互作用。
The overall sustainability strategy is based on a holistic approach, in which the environmental, financial and social aspects are all incorporated into the concept. We seek to achieve cohesive interplay between the architectonic qualities in the renovation, the general financial limitations and a variety of integral sustainability measures.
© Mark Hadden
c.Mark Hadden
希姆兰住房协会希望翻修工作强调社会可持续性、环境可持续性、无障碍、开放性、多样性和特性。因此,该项目基于一项明确、前瞻性的可持续性战略,该战略涉及能源优化、合理的建筑技术、预制、气候变化复原力、社会生活质量和当地社区。
The Himmerland Housing Association wished the renovation to give emphasis to social sustainability, environmental sustainability, accessibility, openness, variety, diversity and identity. The project is therefore based on a clear, forward-looking sustainability strategy, which addresses energy optimisation, rational construction techniques, prefabrication, climate-change resilience, social living qualities and the local community.
© Mark Hadden
c.Mark Hadden
实现了这些因素的融合,但没有损害创建一个独特的新街区的目标,该社区的运营和维护成本较低,翻修后的住宅仅通过被动措施实现了所有节能。(鼓掌)
Cohesion of these factors has been achieved without compromising the aim to create a distinctive new neighbourhood, with low operating and maintenance costs, and all energy-savings in the renovated homes achieved solely by means of passive measures.
© Mark Hadden
c.Mark Hadden
景观美化是可持续性和无障碍战略的一部分,以坡道取代大多数楼梯,并引入可持续城市排水系统 (SUDS) 的使用,包括地表水渗透和街区南侧凹坑的透水表面。在中心活动建筑的南部,建立了一个小的“湿地”,有雨床来处理不断增加的降雨量。雨床收集雨水,因此不必排水。
The landscaping is part of the sustainability and accessibility strategy, replacing most stairs with ramps and introducing the use of sustainable urban drainage systems (SUDS), including surface water infiltration and permeable surfaces in swales to the south of the blocks. South of the central activity building, a small "wetland" is established, with rain beds to handle increasing precipitation. The rain beds collect rainwater so that it does not have to be drained off.
Architects C.F. Møller, Location Aalborg, Denmark, Category Renovation, Area 30700.0 sqm, Project Year 2016, Photographs Mark Hadden
客服
消息
收藏
下载
最近

































































