查看完整案例


收藏

下载
© C.F. Møller
C.F.M lle
位于M laren湖附近的Lill udden区,椭圆足迹建筑的正面从水的运动中汲取灵感-大型玻璃板连接在每一层的阳台上,反射光线,让自然照度穿透每个单元,突出正面。
Located in the district of Lillåudden near Lake Mälaren, the facade of the elliptical-footprint building draws inspiration from the movement of the water – large glass panels connect balconies on each floor to reflect light, allowing natural illuminance to penetrate each unit and highlighting the facade.
C.F.M ller的建筑师兼助理合伙人Ola Jonsson解释说:“立面的建筑和细节是由莫拉伦湖的光线反射而来的。其结果是立面的三维和动态构图,无论是在附近还是远处,都是令人兴奋的。”
"The architecture and details of the facades are inspired by the light reflections on Lake Mälaren. The result is a three-dimensional and dynamic facade composition that is exciting both near and from afar,” explains Ola Jonsson, Architect and associate partner at C.F. Møller.
© C.F. Møller
C.F.M lle
© C.F. Møller
C.F.M lle
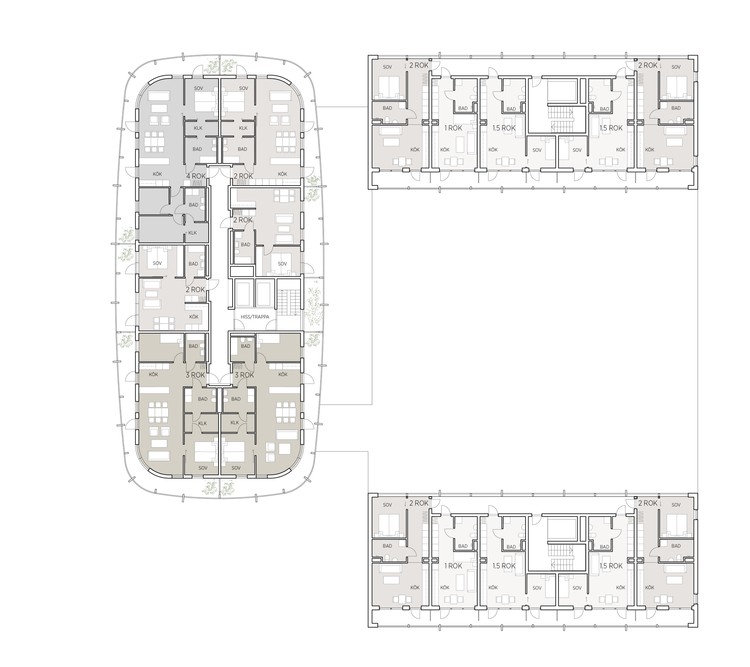
莫勒建议采用一种独特的建筑方法:从底座到15楼的全景花园,大楼将采用混凝土结构,而上面的其余7层将采用实木框架。
C.F. Møller proposes the use of a unique construction method for the building: from the base to the panoramic garden on the 15th floor, the building would utilize a concrete structure, while the remaining 7 floors above would be framed in solid wood
乔森继续说:“这座建筑的全景花园是这座城市的焦点,也是住宅居民的绝佳公共区域。”“我们的目标是优化城市、建筑和城市绿化之间的协同作用。”
“The panoramic garden placed high up in the building is a focal point for the city and a fantastic common area for the residents of the house,” continues Jonsson. “Our ambition has been to optimize the synergies between the city, building and urban greenery.”
© C.F. Møller
C.F.M lle
© C.F. Møller
C.F.M lle
正面将覆盖自然完成的木材,天气保护上的地板上突出的阳台。这样,这些梯田就可以在冬季关闭,创造冬季花园,并提供全年种植小作物的机会。
The facades would be covered in a naturally-finished wood, weather protected by the overhanging balconies on the floors above. These terraces could then be closed in the winter to create winter garden with the opportunity to grow small crops on a year-round basis.
该建筑将容纳各种公寓大小,以创造一个多元化的住宅形象。此外,餐厅的空间和底层的商业空间将向整个社区开放建筑群,使建筑成为城市景观的一个活跃部分。
The building will house a variety of apartment sizes to create a diverse residential profile. Additionally, space for restaurants and commercial space on the ground floor would open up the complex to the entire community, allowing the building to become an active piece of the urban landscape.
新闻通过C.F.M ller播报。
News via C.F. Møller.
© C.F. Møller
C.F.M lle
建筑师C.F.M ller Location V ster s,瑞典设计团队Ola Jonsson,Bo Lidberg,Julia Schütz,Joakim Svahn,Manuel Cempdes,Lasse Vilstrup,Anne-Katline Arrildt,Henrik Hansen,Nikolaj Jakobsen授予主管当局Riksbyggen奖,2017年平行分配区项目一等奖,照片C.M ller。
Architects C.F. Møller Location Västerås, Sweden Design Team Ola Jonsson, Bo Lidberg, Julia Schütz, Joakim Svahn, Manuel Cespedes, Lasse Vilstrup, Anne-Katrine Arrildt, Henrik Hansen, Nikolaj Jakobsen Awarding Authority Riksbyggen Prize 1st Prize in parallel assignment Area 15700.0 m2 Project Year 2017 Photographs C.F. Møller
C.F.M ller关于雷布罗木材镇的提案模糊了城市与自然之间的界线,莫勒建筑师和莫勒景观公司与Sl TT F rvaltning合作,赢得了在瑞典雷布罗设计一个新住宅区的竞争。他们的设计,rnsro Tr stad-瑞典的“木材镇”-侧重于新的城市发展与自然的有机结合,突出建筑和城市规划的可持续性。
C.F. Møller's Proposal for the Örebro Timber Town Blurs the Line Between City and Nature C.F. Møller Architects and C.F. Møller Landscape, in association with Slättö Förvaltning, have won the competition to design a new residential quarter in Örebro, Sweden. Their design, the Örnsro Trästad - Swedish for "Timber Town" - focuses on the organic integration of new urban development with nature, spotlighting sustainability in both construction and urban planning.
客服
消息
收藏
下载
最近









