查看完整案例


收藏

下载
巴尔莫勒尔之家是位于澳大利亚悉尼郊区莫斯曼的私人住宅。
它是福克斯约翰斯顿建筑师在2015年设计的。
画廊中的视图
我们推荐这些项目,由福克斯约翰斯顿建筑师事务所提供的巴尔莫勒尔住宅-澳大利亚布利的一个舒适的当代住宅
画廊中的视图
画廊中的视图
画廊中的视图
画廊中的视图
画廊中的视图
画廊中的视图
画廊中的视图
画廊中的视图
画廊中的视图
画廊中的视图
画廊中的视图
画廊中的视图
画廊中的视图
画廊中的视图
巴尔莫勒尔之家福克斯约翰斯顿建筑师:
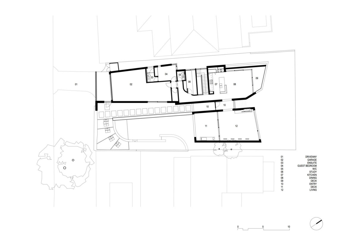
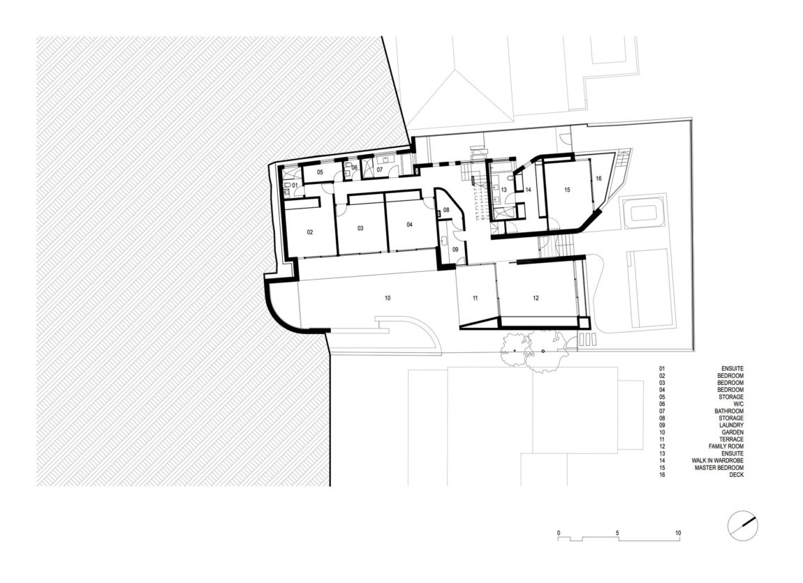
他说:“该项目采用一系列平台的形式,作为建筑物对场地的节奏和地形作出反应。
西面的长线形包括较低层的睡眠区和浴室,中间层的车库空间,上层的起居室和媒体室。拉长的池将这种形式包围起来,并流进入口空间,在入口庭院形成一个浅池。一个小木屋是东方建筑的一部分,打开一个巨大的甲板和游泳池。在这个空间上方是一个独立的卧室和浴室,打开一个甲板。进入房子是通过一个开放的庭院,导致过渡空间/大厅区,连接上和下层的中路设计,以创造一个温和的变化之间的水平之间的建筑。
上层屋顶向北翻转,完全打开,向东北面的甲板滑动,外墙和屏风成为东面的一部分。较低层的卧室通向私人甲板,直接进入下面的游泳池。墙壁打开和关闭,屏蔽,以提供隐私或阳光控制。这些建筑的宽度和方向都很窄,可以在每个空间内进行良好的交叉通风和太阳过滤。“
画廊中的视图
画廊中的视图
画廊中的视图
画廊中的视图
画廊中的视图
图片来源:布雷特·博德曼
keywords:Art Australia Brick Walls Contemporary House Contemporary Interior Design Decorative Accessory Dining Room Floor Plans Fox Johnston Architects Glass Walls Kitchen Landscaping Lighting Living Room Mosman Rug Stone Walls Swimming Pool Terrace Wall Decor Wood Ceilings Wood Floors
关键词:艺术、澳大利亚砖墙、当代室内设计、装饰附件、餐厅、平面图、福克斯约翰斯顿建筑师、玻璃墙、厨房、景观美化、客厅、摩斯曼地毯、石墙、游泳池、露台、墙面装饰、木天花板、木地板。
客服
消息
收藏
下载
最近






















