查看完整案例


收藏

下载
架构师提供的文本描述。胡志明市建筑大学(UAH)成立于1951年,位于胡志明市(HCMC)中心,原为西贡,地址为HCMC 03区巴斯德街196号。65年前,这所大学是一所与法国艺术学院有着密切关系的学校。到目前为止,UAH已经从一所小型建筑学校迅速发展成为一所拥有建筑学、城市规划、室内设计、工业设计、结构工程和基础设施技术等多个学科和学科的大学。目前,该校已经接待了8,000多名各年级和各科的学生。大量的学生确实是对现有大学校园容量的挑战。这一问题导致了在HCMC Thu Duc区新建UAH的迫切需要。校园大楼于2015年正式启用。
Text description provided by the architects. University of Architecture, Ho Chi Minh City (UAH) was founded in 1951 in the center of Ho Chi Minh City (HCMC) formerly known as Saigon at address 196 Pasteur street, district 03, HCMC. Sixty-five years ago, the university was a school which had a closed relationship with French École des Beaux-Arts. Until now, UAH has been developing rapidly from a small architecture school to become a university with many departments and subjects including architecture, urban planning, interior design, industrial design, structural engineering and infrastructural technology. At the moment, the university has welcomed more 8,000 students of all years and courses. A huge number of students is really a challenge for the capacity of the existing university campus. This problem leaded to a vital need of the new additional construction of UAH in Thu Duc district, HCMC. The campus building was opened officially in 2015
© Hiroyuki Oki
(C)小平之(Hirouki Oki)
建筑形式与城市特色的整合·建筑工地是从两条具有完全不同城市特色的街道上走近的。根据场地周围的城市环境,考虑了总体规划和建筑集结方案。整个建筑体积分为两部分。当凡碧街有八层楼,后部则有最高四层的较低层,以便把和谐与别墅的邻里连在一起。
Integration of the building form and urban characteristics •The construction site is approached from two streets with entire different urban features. According to the urban context around the site, the scheme for master plan and building massing was considered. The whole building volume is divided into 2 parts. At Dang Van Bi street, there is an eight floor block and at the rear, there is a lower block with maximum 4 floors so as to connect harmony to the neighborhood of villas
© Hiroyuki Oki
(C)小平之(Hirouki Oki)
© Hiroyuki Oki
(C)小平之(Hirouki Oki)
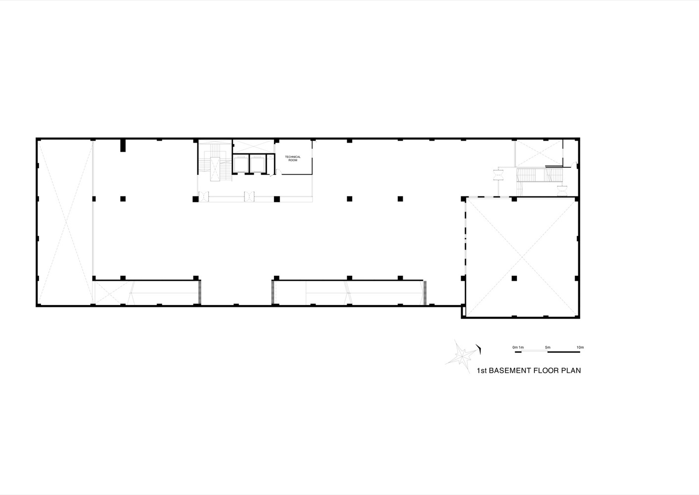
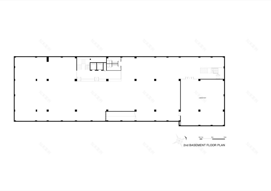
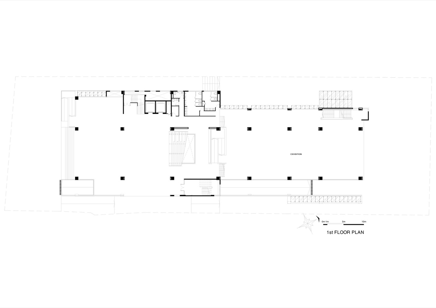
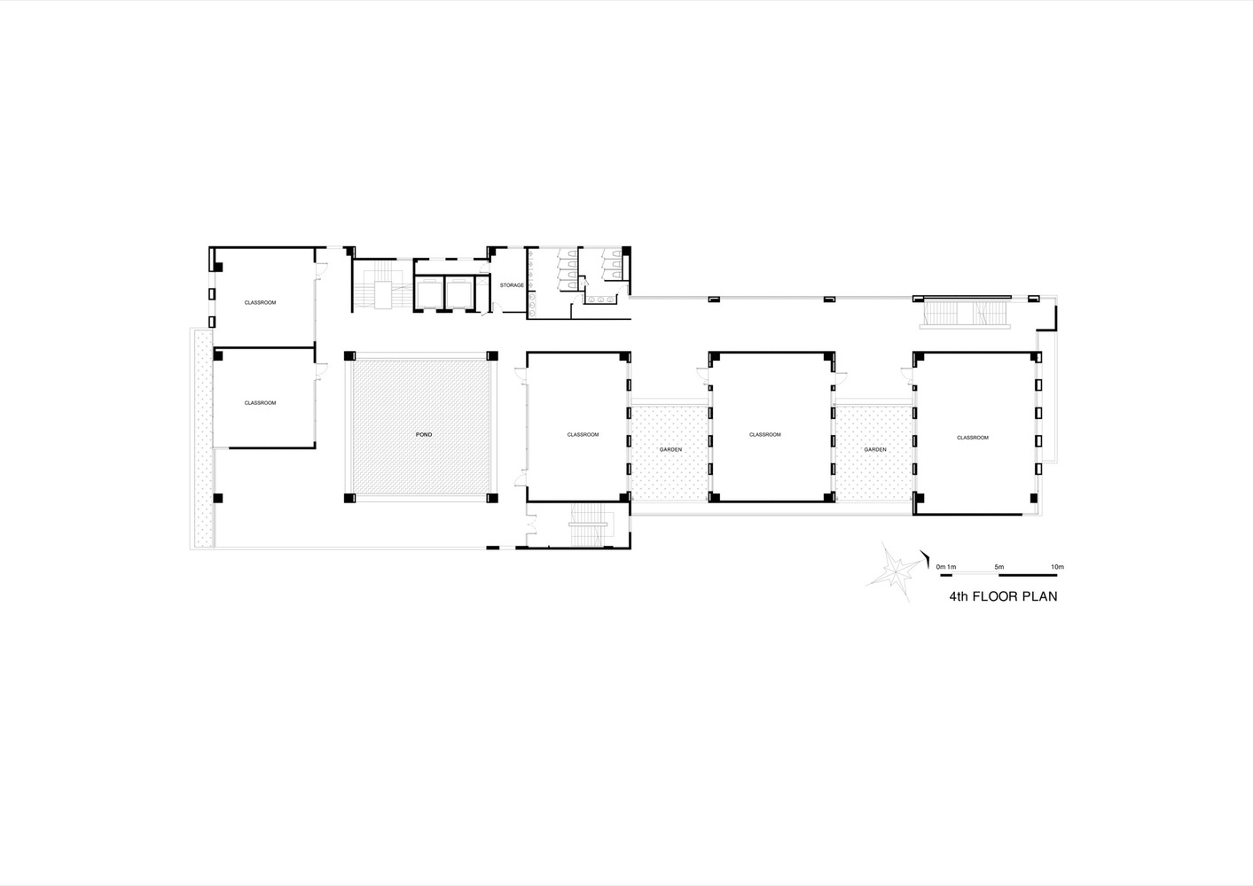
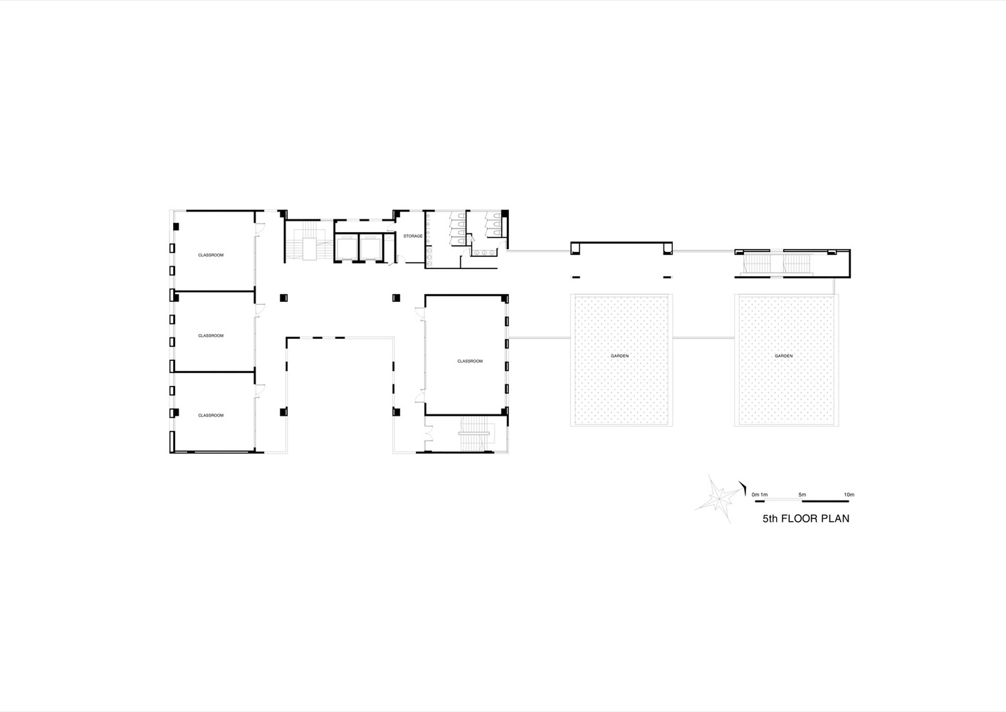
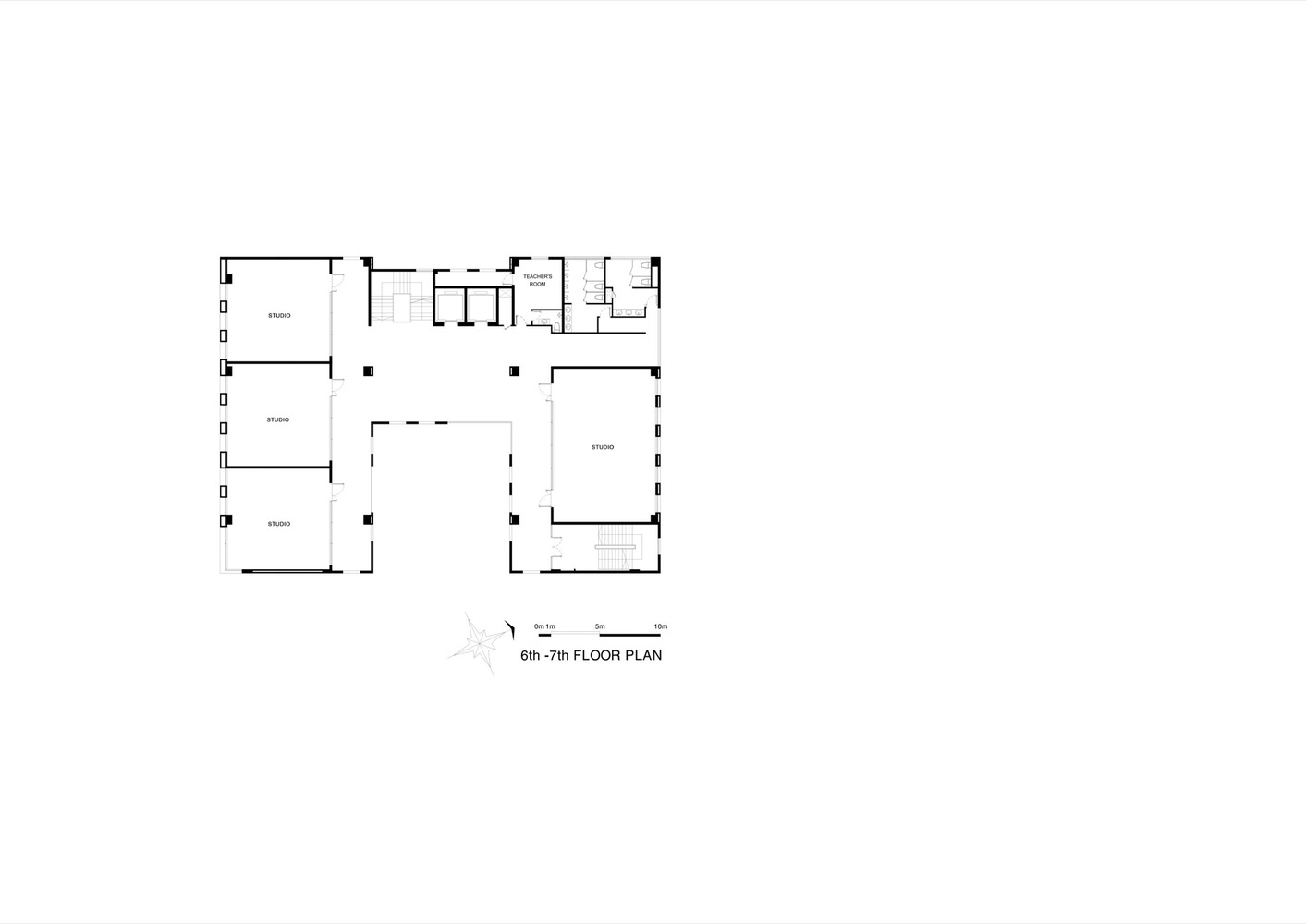
与“巴比伦园林”不同的开放空间组织形式·施工场地条件表明,施工场地的宽度较窄,长度较深,对外界的视野有限,园林和景观面积有限。·设计方案是优化与室内空间交替的开放空间,以创造“巴比伦花园”的理念。为了减少建筑面积,建立室内与室外的紧密联系,在建筑的不同楼层开放了地下建筑总面积。每个开放空间都有其独特的特点,根据建筑高度的不同,给用户带来了有趣的、多样的感受。·屋顶面积的使用,不仅为学生创造了开放的空间和自学的空间,而且改善了建筑的小气候条件,强调了教育环境中友好交流的特点。
Organization of open spaces alternative with ‘Babylon gardens’ •The condition of construction site indicates some disadvantages, for example quite narrow width and deep length, limitation of view to outside, limited area for gardens and landscape. •The design scheme is optimization of the open spaces which are organized alternative with the occupied spaces indoors to create idea of ‘Babylon gardens’ •Total area of ground floor is opened in order to cut down construction area and create strong connection between indoor and outdoor •The open spaces are opened at many different floors of the building. Each open space owns a particular characteristic which brings interesting diverse feelings for the users according to different heights of the building. •Using the area of rooftop not only creates the open spaces and self-studying zone for the students but also improves microclimatic condition for the building and emphasizes the friendly communication characteristic in an educational environment.
© Hiroyuki Oki
(C)小平之(Hirouki Oki)
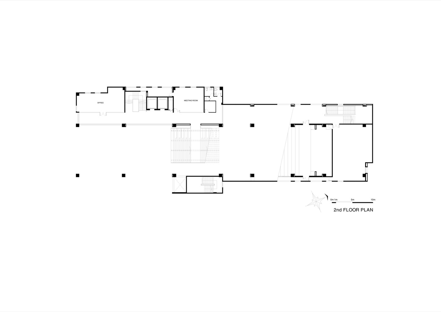
空间布局适应热带气候,各层空间组织对当地气候条件有较好的响应。所有教室朝南和北方向,而服务室,包括电梯、楼梯、洗手间、走廊和技术室)则放置在西侧和东侧,以防止太阳能的增加。
Spatial layout adapting to tropical climate •Spatial organization at all floors responds well to local climatic condition. All classrooms face to South and North orientation whilst the serviced rooms including lifts, staircases, restrooms, corridor and technical rooms) are placed at West and East side to prevent solar gain.
建筑风格·建筑立面设计的原则是以长方形组合为基础的简单清晰的几何图形,但其尺度多样,使立面与建筑形式的运动与不动相结合,创造了动感与动感的平衡。·四楼的中庭似乎是学校最美丽的开放空间。它是由洞口和实心墙创造的,这些墙的大小、比例、排列都被深刻地考虑,以美化建筑物某一强点的特殊性。中庭清晰地体现了交流的特点,为学生提供了良好的视野。
Architectural style •The principle of building façade design is simple and clear geometries based on combination of rectangular shape; however, their scale is diverse so as to create animation and equilibrium in the combination of movability and immobility for facades and building form. •The atrium at 4th floor seems to be the most beautiful open space of the school. It is created by opening and solid walls that are considered profoundly for size, proportion, arrangement to glorify particularity of a strong point of the building. This atrium indicates communication characteristic clearly and provides good views for the students.
© Hiroyuki Oki
(C)小平之(Hirouki Oki)
建筑结构的解决方案符合炎热潮湿的气候条件,根据教室的活动设计合理的窗户大小和面积,避免使用玻璃窗以完全覆盖建筑表面。所述窗口与壁的内表面对准,所述内表面是最小化直接阳光的影响并允许阴影在正面上的有效性的壁的内表面。双层壁结构优化了空气对流以冷却室内的空间。
Solutions for building fabric conform to hot-humid climate condition •The size and area of windows are designed plausible according to activities of classroom and the use of glazing to fully cover the building surfaces is avoided. •The windows are aligned with the internal surface of wall which is to minimize the impacts of direct sunlight and allows the effectiveness of shadow on facades. •Double layer wall structure optimizes the air convection to cool spaces indoors.
© Hiroyuki Oki
(C)小平之(Hirouki Oki)
Architects Truong An architecture, UAH Department of Architecture
Location 48 Đặng Văn Bi, Phước Long, Thủ Đức, Hồ Chí Minh, Vietnam
Category University
Architects in Charge Pham Phu Cuong (Dean of Department of Architecture, UAH), Nguyen Cong Duy
Area 3490.0 m2
Project Year 2015
客服
消息
收藏
下载
最近































