查看完整案例


收藏

下载
© Luigi Parise
C.路易吉·帕里西(Luigi Parise)
架构师提供的文本描述。位于伦敦市中心的分层画廊收藏了私人的照片、版画、粉笔和平版。这座五层楼高的二级建筑从1770年开始扩建.客户和建筑师的目标一直是创造一个封闭的庭院结构,提供一个静修和地方,以思考艺术。这是通过增加一个新的立面来实现的,这个建筑既坚固又光线充足,给现在的花园一样的内部庭院注入了生命。
Text description provided by the architects. The Layered Gallery, located in central London, houses a private collection of photographs, prints, pastels and lithographs. The five-storey Grade II listed building it is extended from dates from 1770. The aim of client and architect has been to create an enclosed courtyard structure that provides a retreat and place to contemplate art. This has been achieved by adding a new elevation to the building both substantial and sufficiently light to bring life into what is now a garden-like inner court.
Exploaded Axonometric
爆炸轴测定仪
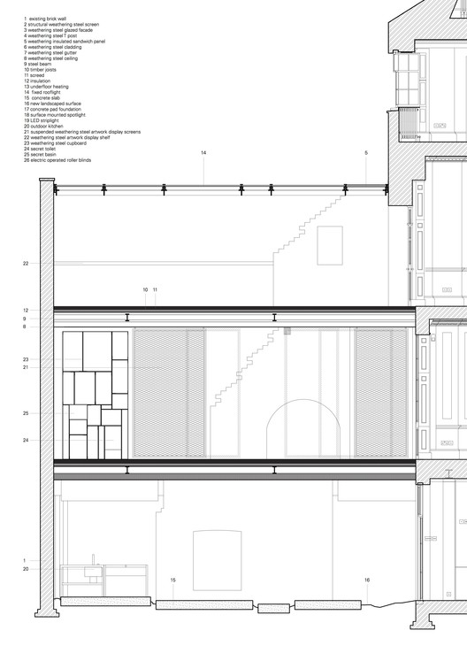
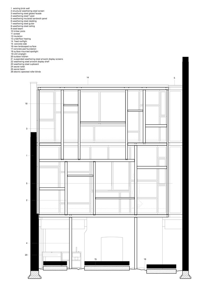
为了实现这一点,Gianni Botsford建筑设计师设计了一系列屏幕,创造了层次性的效果。第一种,外屏是纯结构的,由Corten或“风化”钢制成。第二个是Corten框的玻璃屏风.在里面,一个进一步的分层效果是通过红色百叶窗保护收集的艺术品和挂在铁轨上用于存储和查看收藏的Corten屏幕。在两个外部屏幕内的开口创造了一个丝状的高度,加强了内部和外部空间之间的关系。通过在Corten结构中种植生长来进一步强调这一点。
To achieve this, Gianni Botsford Architects has designed a sequence of screens creating a layered effect. The first, outer screen is purely structural and made of Corten, or ‘weathering’ steel. The second is a Corten-framed glazed screen. Inside, a further layered effect is achieved through red blinds protecting the collection of artworks and the hanging of Corten screens on rails used for storing and viewing the collection. The openings within the two outer screens create a filigree elevation reinforcing the relationship between interior and exterior spaces. This is emphasised further by planting growing up within the Corten structure.
© Luigi Parise
C.路易吉·帕里西(Luigi Parise)
在内部,装修是健壮的方式,在很大程度上,仓库或商店已被转化为艺术画廊。在底层,现有的裸露砖墙与由Gianni Botsford建筑师设计的Corten橱柜形成鲜明对比。
Inside, finishes are robust in much the same way as warehouses or stores that have been converted into art galleries. On the ground floor, an existing exposed brick wall is contrasted with a Corten cabinet designed by Gianni Botsford Architects.
© Luigi Parise
C.路易吉·帕里西(Luigi Parise)
橱柜在空间中引入了一个不确定因素:它隐藏了一个折叠WC。这是对传统的室外厕所的敬意,或者是对杜尚的“喷泉”的一出戏,这个手势增加了一种惊奇和转变的感觉。
The cabinet introduces an element of uncertainty within the space: it conceals a folding WC. A homage to the traditional outside lavatory, or a play, perhaps on Duchamp’s “Fountain”, this gesture adds a sense of surprise and transformation.
© Luigi Parise
C.路易吉·帕里西(Luigi Parise)
在地势较低的地方,建筑师们在一楼放置了一间室外厨房,并在画廊内的一个遮阳棚里放了一张观景椅。博物馆质量的紫外线处理玻璃一直被使用,以保护藏品免受过度的光线。然而,建筑师们一直在努力避免纯粹为保护和保护其内容而设计的环境所产生的密封效应。屏幕的细线质量是这种方法的关键组成部分。
On the lower ground level, the architects have placed an outdoor kitchen and, on the first floor, a viewing bench in a sun trap within the Gallery itself. Museum quality UV- treated glazing has been used throughout to protect the collection from excessive light. However, the architects have been at pains to avoid the hermetic effects that can result from an environment designed purely to protect and conserve its contents. The filigree quality of the screens is a key component in this approach.
Lower Ground Floor
底层下层
詹尼·博茨福德建筑师们所接受的另一个主题是短暂的。例如,预先生锈的Corten表面可以通过唤起时间老化的概念来实现这一点.
Another theme Gianni Botsford Architects have embraced is that of the ephemeral. The pre-rusted Corten surfaces achieve this, for example, by evoking the notion of ageing though time.
© Luigi Parise
C.路易吉·帕里西(Luigi Parise)
建筑师们把这座建筑比作一棵树,因为它的结构中心有两个承重柱,较轻的薄膜分支。当然,树木是随着天气变化而变化的分层结构,而分层画廊也是如此,其玻璃面板上的光和反射的变化也是如此。
The architects liken the building to a tree, because its structure has two load-bearing columns in the centre with lighter membranes branching out. Trees, of course, are layered structures that shift with changes in weather as does the Layered Gallery with the variation of light and reflections on its glass panels.
Architects Gianni Botsford Architects
Location London, United Kingdom
Category Gallery
Project Year 2016
Photographs Luigi Parise
Manufacturers Loading...
客服
消息
收藏
下载
最近


























