查看完整案例


收藏

下载
在快速城市化的背景下,越南的城市与低密度热带绿地的起源有很大的不同。新开发的城市地区正在失去与自然的联系。“竹屋”是胡志明市一条名为“哼哼”的狭窄小巷中的一个小住宅项目。该项目旨在发展“树屋”的概念,这是一系列典型的住宅设计,目标是在高密度社区内提供绿色空间。
在越南,有无数狭窄的小巷叫“哼哼”。他们有2-3米宽,类似的,狭窄的,长的建筑物沿着它的两侧运行,就像一个峡谷。街道两旁都是气势磅礴的形式,它们冰冷的外表给街道带来了浓重的气氛。窗户大多是关着的,以确保他们的隐私。
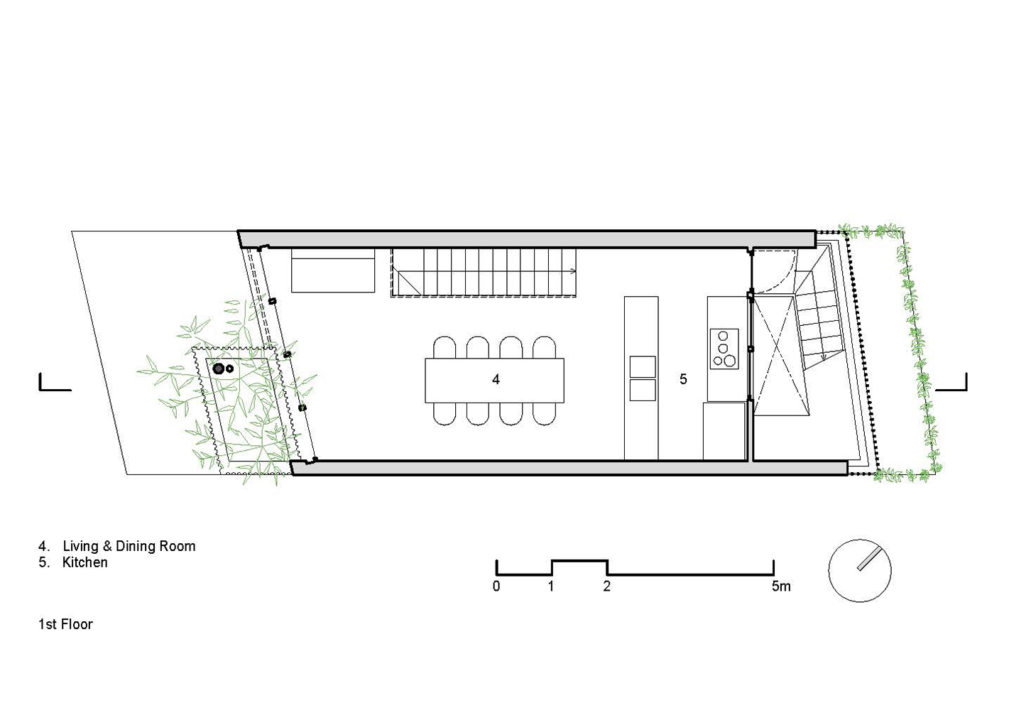
考虑到这一点,“竹屋”被设计成一个舒适的居住空间,尽管面积有限。现场密集而狭窄,只有两面允许自然通风和光线进入建筑物。前面的正面是好玩的,种植箱在随机点,创造了兴趣和一个更欢迎的入口。
客户对竹子的热爱和它与亚洲环境的高度关联导致了一个被竹园覆盖的外观。此外,从正面弹出的播种机箱形成了深屋檐,即使在雨季,窗户也可以保持打开。
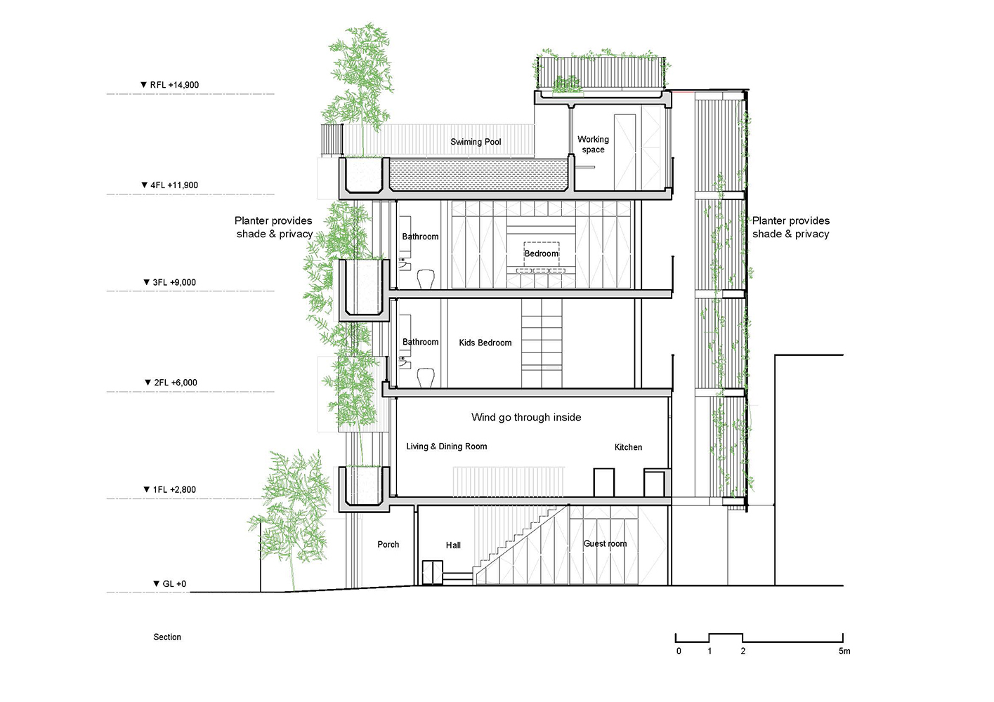
在房子的后端,设计采用了半开放的楼梯,被爬虫包围,使树枝和树叶起到缓冲层的作用,阻挡阳光的直接流动。此外,它还创造了一个舒适的距离之间的邻居。这显然是在靠近开放的浴室和楼梯的卧室。
正面和后立面大多是开放的,用绿色植物包裹着,让凉风吹过房子。因此,空调在房子里的使用大大减少了。
除了在正面生长竹子外,混凝土模板也是用竹子制作的,以使设计语言一致。竹质结构也有助于减少传统混凝土墙的强烈而沉重的外观,从而提高房屋的整体审美品质。
顾客说:“我每天早上醒来都会听到鸟儿的叫声,因为种植园吸引了它们。”我的家就像一座繁华城市的丛林。绿地也能让房子随时保持凉爽,减少空调的使用。由于两边的开口很大,这个空间也感觉更大了。
这个项目提供了一个解决方案,以创造一个舒适和开放的生活空间,是围绕在一个高度密集和小的网站绿色。它不仅满足了人们的功能和审美需求,而且更重要的是,它与自然联系在一起。
Firm Vo Trong Nghia Architects
Type Residential › Private House
STATUS Built
YEAR 2016
SIZE 1000 sqft - 3000 sqft
Photos Hiroyuki Oki
keywordsarchitecture, architecture news, interiors, interior design, portfolio, spec, brands, marketplace, products Bamboo House
关键词建筑、建筑新闻、室内设计、组合、规格、品牌、市场、产品竹屋
客服
消息
收藏
下载
最近




























