查看完整案例


收藏

下载
Hanoi Vietnam green home improvements
位置:越南
分类:居住建筑
内容:实景照片
建筑设计:vo trong nghia
图片来源:vo trong nghia
图片:19张
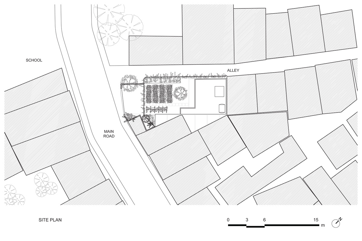
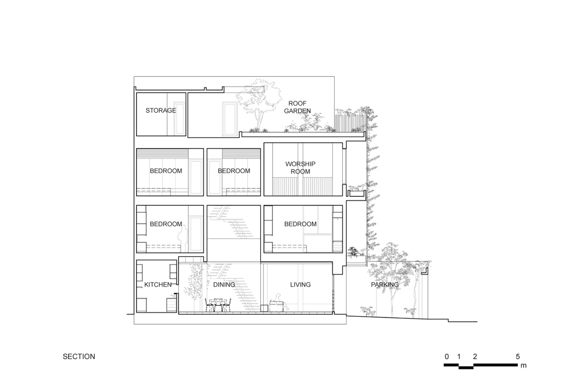
越南社会经济的高速发展带来了一系列的环境问题:绿化空间急剧减少、空气污染越来越严重,水旱灾害频繁。在首都河内,建筑师vo trong nghia对屹立在此15年的城市中心建筑进行了一项绿色改造项目,以期唤醒社会的环境意识。“绿色瀑布”般的外部景观不仅令人赏心悦目,而且很好的保证了个人隐私不被外人觊觎。露台处用镀锌钢棚替代了原有的木制栅栏,绿色植物攀爬其上,像生态电梯般美不胜收。花园屋顶设计使得整个建筑得到荫庇,免受烈日暴晒,也进一步减少了制冷设备的能源消耗。
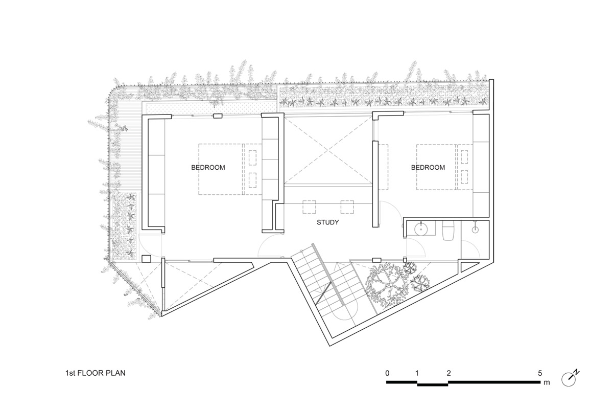
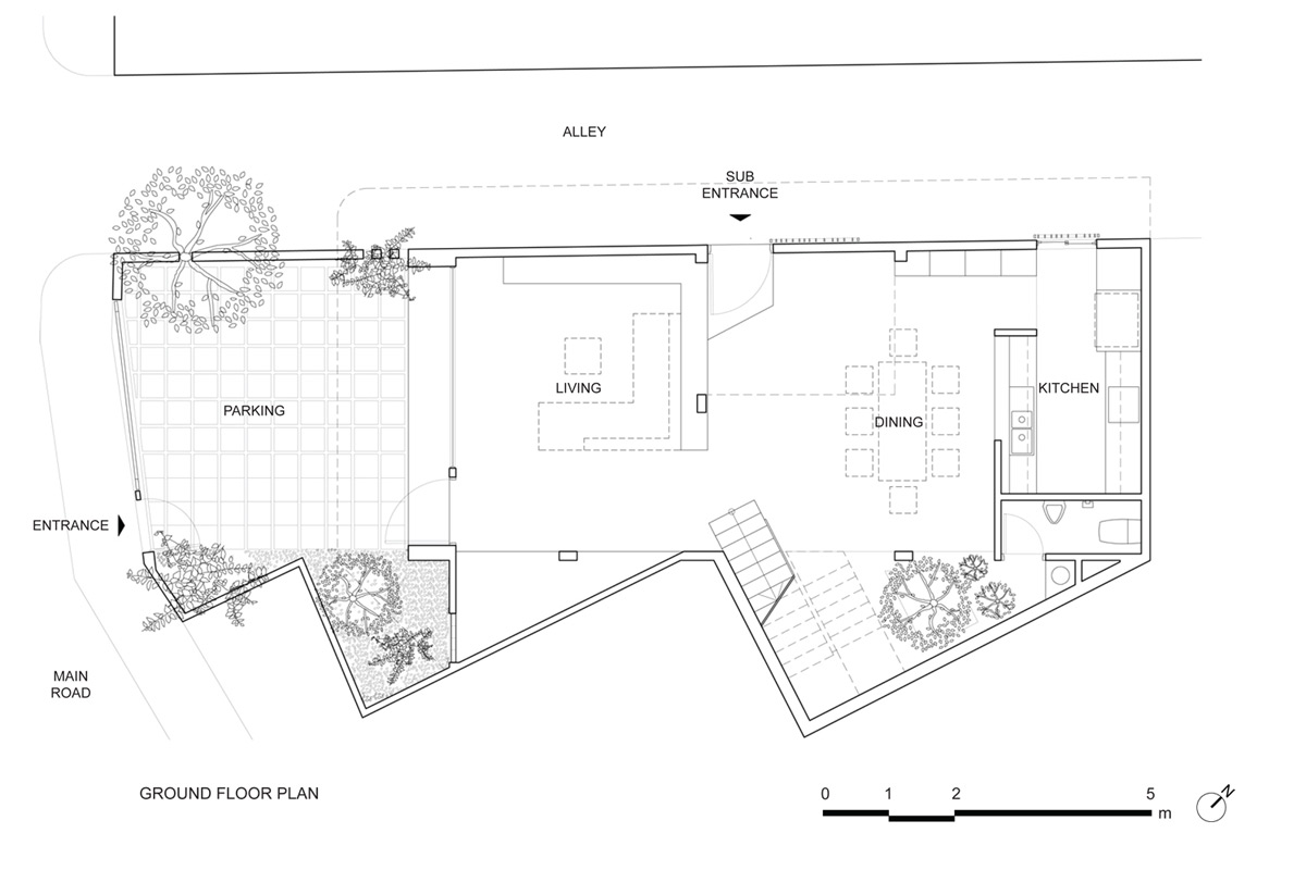
走进来看,楼梯不再使用之前的水泥铺设,换之以精巧美观的金属材质。采光通风条件大大改善。为了增进楼上楼下的交流,餐厅和书房之间专门留出一个娱乐室以供消遣。此外,一层也装备了空调来减潮除湿。热带地区的城市建筑均可参考这种环境系统的典型设计。希望这种绿色房屋设计可以在解决城市建设问题中发挥更多的积极作用。
译者: 柒柒
In the Vietnamese capital of Hanoi, vo trong nghia architects has renovated a city center property that has stood on the site for 15 years. The design is a direct response to the country’s fast rate of development, a growth that has seen green space marginalized and the subsequent rise of environmental problems such as air pollution and flooding.
The dwelling is defined by its green façade, a cascading waterfall of vegetation that provides pleasant external views, while simultaneously ensuring privacy. Old security fences have been removed, and replaced with galvanized steel trellises, attached to existing balconies upon which climbers grow. The façade is not only for residents, but also for neighbors, presenting an attractive leafy elevation to its surroundings. Together with a roof garden that sits at the top of the property, the vegetation reduces energy consumption – shielding the building from harsh western sunlight.
Internally, the previously existing concrete staircase has been replaced with slender steel stairs, bringing natural light and ventilation inside the structure. in order to encourage communication between residents at ground and first floor levels, a void has been inserted – connecting the dining space with the study. Protecting against damp and condensation, the property’s ground floor has been raised to install air ventilation.The environmental system is imagined as a prototype that can be applied to other structures in tropical climates, offering solutions to serious urban problems where the benefits of a green home can have a wider positive impact on the city.
越南河内绿色房屋改造外部实景图
越南河内绿色房屋改造外部背面侧部实景图
越南河内绿色房屋改造外部护栏局部实景图
越南河内绿色房屋改造内部客厅实景图
越南河内绿色房屋改造内部卧室实景图
越南河内绿色房屋改造内部楼梯实景图
越南河内绿色房屋改造总平面图
越南河内绿色房屋改造平面图
越南河内绿色房屋改造剖面图
越南河内绿色房屋改造正面图
客服
消息
收藏
下载
最近





















