查看完整案例


收藏

下载
架构师提供的文本描述。乡村还是城市?这个问题是在波茨坦新体育休闲池漫长多变的规划历史中多次提出的。甚至当一项公民民意调查最终将钟摆向布劳豪斯堡山脚下的中心位置时-尽管在以前,“处女地”的位置是首选的,但这一地点的主导城市设计主题仍然模棱两可。
Text description provided by the architects. Countryside or city? This question was asked on several occasions during the protracted and changeable planning history of the new sports and leisure pool in Potsdam. And even when a citizen’s opinion poll finally swung the pendulum towards the central location at the foot of the Brauhausberg hill even though, previously, a location “on virgin land” had been preferred, the dominant urban design motif for this location remained ambivalent.
最终,通过2013年的建筑竞赛,做出了支持明确的城市概念的决定。
The decision in favor of a decidedly urban concept was finally made via the 2013 architectural competition.
Site Plan Sketch
地盘图则草图
本次比赛由GMP赢得,设计有清晰的布局线,内部和外部空间的逻辑定位,以及对更近、更远的环境的刻意视觉参考。泳池建筑群建筑中提到的周边城市地区,只是在建筑群开业时才开始建造的,比如向东有前厅的开放空间轴线(这是项目的一部分),以及泳池后面用于日光浴的草坪。这同样适用于Speicherstadt小区的开发,它将在入口立面弯曲的建筑线之后向北建造,而在南部的计划中的额外开发部分也是如此。
The competition was won by gmp with a design featuring clear layout lines, a logical orientation of the interior and exterior spaces, and deliberate visual references to the closer and more distant surroundings. The neighboring urban areas referenced in the architecture of the pool complex are only just being created at the time of the complex’s opening, such as the open space axis with the forecourt to the east – which is part of the project – and the pool’s lawn for sunbathing at the rear. The same applies to the development of the Speicherstadt quarter, which will be created to the north following the curved building line of the entrance facade, and to the planned additional development section to the south.
© Marcus Bredt
马库斯·布雷特
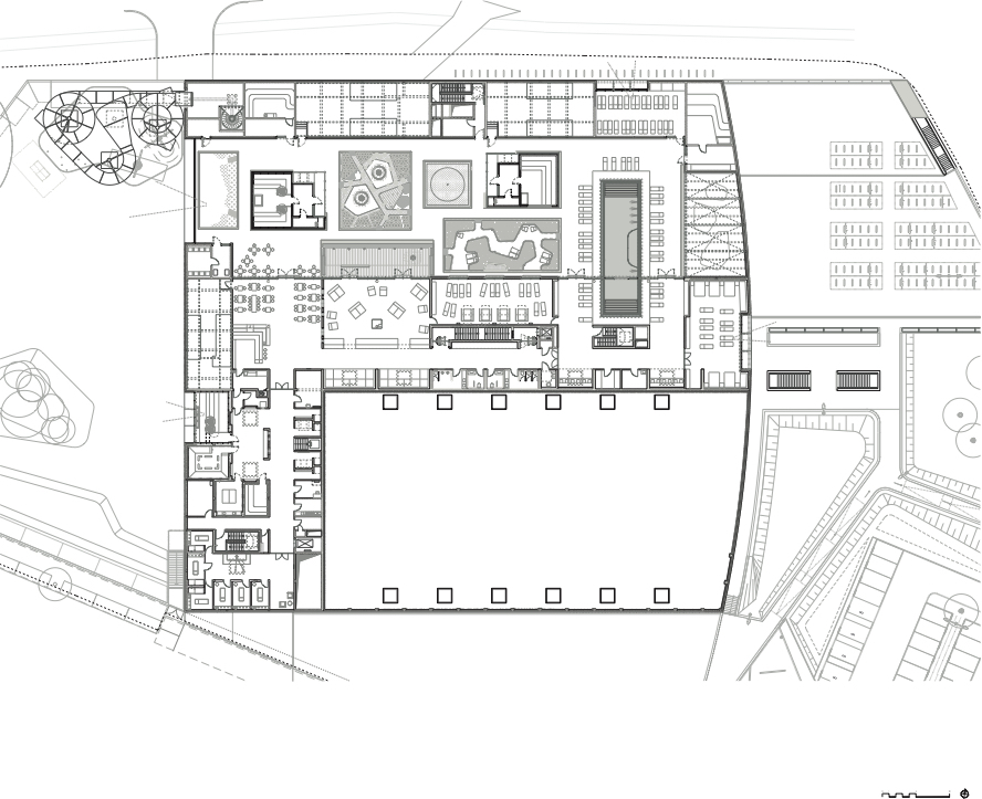
First Floor Plan
一层平面图
© Marcus Bredt
马库斯·布雷特
体育池、休闲池和健身区均位于近方形建筑内,可用建筑面积约8,000平方米。体育池和休闲区的两个大区被两个封闭的空间隔开,分别是服务区和更衣室区,这两个区域由东向西的中央广场划分。这种布局确保了复杂区域内每个点的定位非常清晰,所有功能都可以通过短路径访问,并且可以相互独立地操作。
The sports pool, leisure pool, and wellness area are all located within a nearly square building with about 8,000 m2 usable floor area. The two large zones of the sports pool and the leisure area are separated by two enclosed volumes for the service and changing room areas, which are divided by the central concourse that runs east to west. This layout ensures that the orientation at every point within the complex is very clear, and that all functions are accessed via short routes and can be operated independently of each other.
© Marcus Bredt
马库斯·布雷特
游泳馆布置宽敞,西面是休闲游泳池,50米水球、竞技游泳场馆面向东方。健康区位于最上面的楼层,在视觉上被屏蔽,只向外界提供一些特定的视图。封闭的正面区域-就像蜿蜒的带状-环绕着建筑物,已经统一地完成了以矿物质为基础的“自然”渲染。服务设施也已并入建筑群,因此屋顶上的其他建筑不会干扰从布劳豪斯贝格山可以看到的第五个立面。
The spacious arrangement of the leisure pool lies to the west, while the sports pool complex with 50 m pool for water polo and competitive swimming faces towards the east. The wellness area is located in the upper- most story and is visually shielded, offering just a few specific views to the outside. The closed facade areas, which – like a meandering ribbon – enclose the building, have been finished uniformly with a robust mineral- based “natural” render. The services installations have also been incorporated in the building complex so that no additional structures on the roof interfere with the fifth facade that can be seen from the Brauhausberg hill.
© Marcus Bredt
马库斯·布雷特
Architects gmp Architekten
Location Potsdam, Germany
Category Swimming Pool
Area 19300.0 m2
Project Year 2017
Photographs Marcus Bredt
客服
消息
收藏
下载
最近


















