查看完整案例


收藏

下载
© Shai Epstein
(Shai Epstein)
架构师提供的文本描述。在加利利海周围的山丘上,一处私人住宅构成了壮观的自然环境。里面的空间被折叠在一个灰白色的信封里,朝向视野,并邀请它进入家庭的领域。
Text description provided by the architects. A private residence frames a spectacular natural context, on the hills surrounding the Galilee Sea. Folded in a plastered white envelope, the inner spaces are oriented towards the view and invite it to enter the family's domain.
© Shai Epstein
(Shai Epstein)
考虑到周围的环境,已经广泛使用了大致完成的天然材料。暴露的混凝土天花板强调倾斜的部分,并呼吁观众走到外面,在木甲板上。钢结构设计了一个有节奏的外观,并称赞了手板。业主,一个练习木匠和锁匠,亲切地自己做了许多建筑和家具细节,如:中央蓝色图书馆,木甲板和佩高拉,电视阁楼和扶手椅。底层是业主的工作室。
Reflecting upon the surroundings, a wide usage of roughly finished natural materials has been made. The exposed concrete ceilings emphasize the inclined section and call for the spectator to walk outside, onto the wooden deck. Steel structure articulate a rhythmic façade and compliment the pallette. The owner, a practicing carpenter and locksmith, lovingly made many of the construction and furnishing details himself, such as: the central blue library, the wooden decks and pergola, the TV mezzanine and armchair. The bottom floor is a studio for the owner.
© Shai Epstein
(Shai Epstein)
这条通路是从街道上走出来的,一次暴露出部分自然场景,然后全貌才显现出来-从住宅中心的公共空间俯冲而下。
The access path is leading from the street, exposing parts of the natural scene at a time, before the complete picture reveals itself – slopping down from the common space in the heart of the dwelling.
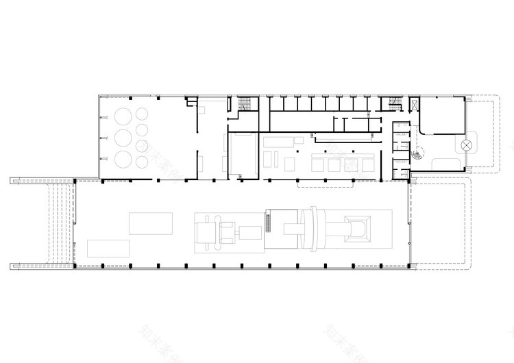
Floor Plan 1
平面图1
公共空间和私人空间由蓝色图书馆和壁炉分开。两者都与天花板脱节,使得房间显得更大更宽敞。
Common and private spaces are parted by the blue library and a fireplace. Both of which are disconnected from the ceiling – making the room appear bigger and more spacious.
© Shai Epstein
(Shai Epstein)
将中央空间与住宅和花园的东部地区连接起来,使之构成一个古老的整体多尔门结构。杜尔曼是一个埋葬地点,可追溯到古猿(铜)时代,这是在现场发现的。它在建筑过程中得到了精心的保存,并在空间的定位中起到了有意义的作用。
The connection between the central space and the eastern areas of the house and garden, are arranged so that to frame an ancient monolithic Dolmen structure. The Dolmen is a burial site, dated back to the Chalcolithic (Copper) Age, which was discovered on site. It was carefully preserved during the construction and plays a meaningful role in the orientation of the spaces.
Axonometric
陡峭的小山为宽敞的前院腾出了空间,从卧室畅通无阻地进入。
The steep hill makes room for a spacious front yard, accessed fluently from the bedrooms.
© Shai Epstein
(Shai Epstein)
Architects SO Architecture
Location Giv'at Ada, Israel
Category Houses
Lead Architects Shachar Lulav, Oded Rozenkier, Alejandro Fajnerman
Area 400.0 m2
Project Year 2016
Photographs Shai Epstein
Manufacturers Loading...
客服
消息
收藏
下载
最近





















