查看完整案例


收藏

下载
© Christian Richters
克里斯蒂安·里氏
架构师提供的文本描述。Houten市当局(荷兰)委托Samyn和Partners公司在一个被许多绿地包围的地方建造一个小型消防站。Houten市有一支混合消防部队:4名专业消防员和大约60名志愿者。建筑议程规定,应有空间容纳六辆消防车。
Text description provided by the architects. The municipal authority in Houten (Netherlands) commissioned the Samyn and Partners practice to build a small fire station on a site surrounded by lots of green space. The municipality of Houten has a hybrid fire fighting force : four professional firefighters, and around sixty volunteers. The building agenda set a requirement that there should be space to accommodate six fire engines.
© Christian Richters
克里斯蒂安·里氏
设计的主题是屋面结构从内部组织的根本转变。它代表了庇护所的理念,外壳独立于建筑物本身。这座大楼的内部符合客户的要求。
The theme in drawing up the design is the radical divi- sion of the roof structure from the internal organization. It represents the idea of the shelter, the independence of the shell from the building itself. The building’s interior is in keeping with the client’s requirements.
© Christian Richters
克里斯蒂安·里氏
屋面抛物面形式的选择是对形式优雅追求的结果,也是结构优化的结果。在基础设计阶段,快速施工方法是进一步有利于这一选择的一个重要因素。
The choice of a parabolic form for the roof is the result of the search for elegance of form, and also brings about an optimization of the structure. The fast method of construction was a further significant factor favoring this choice at the fundamental design stage.
© Christian Richters
克里斯蒂安·里氏
© Christian Richters
克里斯蒂安·里氏
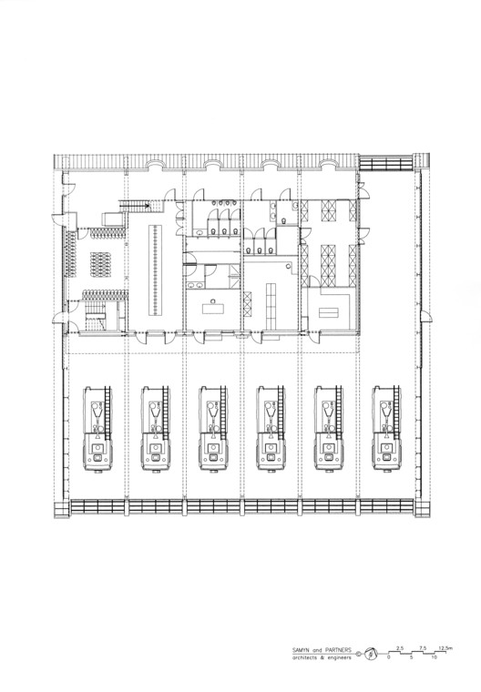
内部有一个双向的分裂。南面被认为是一个完全透明的空间,只使用玻璃。在这里,消防设备保存在一个类似于一家大型商店的温道士。这个几乎没有暖气的大厅打算在冬季和夏季作为气候缓冲地带。所有其他功能都集中在建筑的北半部,这是一座由承重砖砌而成的建筑。从开放的走廊上可以看到消防车。
There is a two-way split of the interior. The south side has been conceived as a completely transparent space in which just glass has been used. Here, the firefighting equipment is kept in what resembles a large shop win- dow. This barely heated hall is intended to serve as a climatic buffer zone, both in winter and in summer. All the other functions have been gathered together in the northern half of the building, a construction built of load bearing brickwork. From the open corridors, there is a view onto the fire engines.
© Christian Richters
克里斯蒂安·里氏
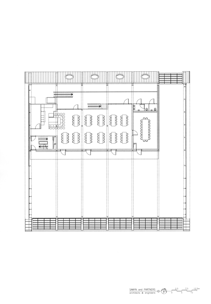
底层有淋浴、更衣室和卫生用品,以及机械设备的储藏室。一楼有一间会议室和一间消防队员自助餐厅。办公空间位于二楼,顶部设有技术设备储藏室。
The ground floor houses showers, changing rooms and the sanitary provisions as well as storage rooms for mechanical equipment. A conference room and a cafeteria for the firefighters are situated on the first floor. The office spaces are located on the second floor with storage rooms for technical equipment on top.
Ground Floor Plan
在这个城市的社会问题地区,要求城市22所学校的2200名5至7岁的学生和女学生在DIN A3大小的面板上代表消防队员的史诗。
In this socially problematic area of the city, it was asked to the 2200 five to seven years old schoolboys and schoolgirls of the 22 schools of the city to represent the epic of the firemen on DIN A3 - size panels.
Courtesy of Philippe SAMYN and PARTNERS.
菲利普·萨明和合伙人的礼遇。
2200块面板的颜色从底部的深蓝色变为绿色,顶部是黄色到橙色。这些面板被放置在消防局的主砖墙上,并更名为“消防队员之家”。它形成了一个宏伟的象形文字般的构图,由玻璃幕墙保护。该项目汇集了所有的户,使居民和建筑物之间的情感联系交织在一起。通过这种方式,“房子”受到保护,免受破坏,在此之前,每个家庭都有一个小弟弟或一个小妹妹的艺术品被整合到作品中。
The 2200 panels, changing color as a flame from dark blue at the bottom over green an yellow to orange at the top, were laid out on the main brick wall of the Fire Station, renamed “house of the firemen”. It resulted into a magnificent hieroglyph-like composition protected by the glazed façade. The project gathered all the families of Houten, so that an emotional link was woven between the population and the building. In this way, the “house” is protected from the vandalism it was like- ly to suffer before that, in each family, a little brother or a little sister’s piece of artwork was integrated in the work.
玻璃幕墙采用大型架空门,旨在让消防队快速撤离。这座建筑的长度是东西向的,这使得南面的太阳能电池可以被纳入其中。消防站的整体形态呈现为传统棚屋主题的现代变体。
The glazed façade incorporates large overhead gates designed to allow the firefighting force to make a quick operational exit. The building’s length runs in an east- west direction which allows the southern façade to incorporate photovoltaic cells. The fire station’s overall form appears as a modern variant on the traditional theme of the shed.
© Christian Richters
克里斯蒂安·里氏
Architects SAMYN and PARTNERS
Location Veerwagenweg, 3991 Houten, The Netherlands
Category Fire Station
Area 1100.0 m2
Project Year 2000
Photographs Christian Richters
客服
消息
收藏
下载
最近




























