查看完整案例


收藏

下载

翻译
Architect:Philippe SAMYN and PARTNERS, architects & engineers
Location:Belgium; | ;
Project Year:1999
Category:Private Houses
The castle was built around 1830 in an asymmetrical French style. In accordance with principles of monument conservation, all the interventions are carried out in such a way that they are reversible.
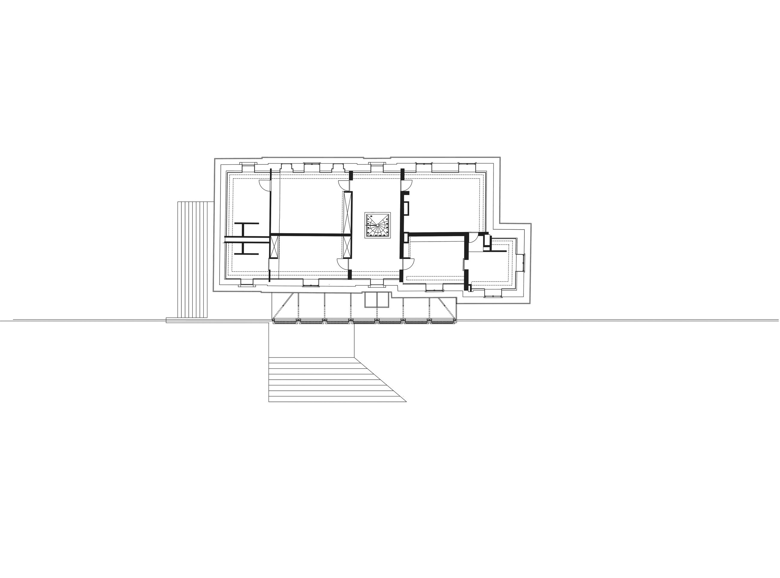
Inside, on the ground floor, the south corridor is reorganized into a long and simple gallery that extends with a reflecting water surface across the park. The stair in the extension of the gallery leads to a North-South cross gallery both on the first and second floor, from where a spiral stair leads to the terrace roof.
The roof is equipped with a wooden terrace and a parapet of steel rods as well as a central glazed stairwell lantern, a canopy of glazed solar collectors for hot water and stainless steel chimneys for the natural ventilation of the sleeping rooms.
The South façade is balanced by the addition of a sophisticated glass and steel construction, parallel to the façade at a distance of 2,7 m. The steel frame holds a glazed ‘orangerie’ at groundfloor, a permeable wooden terrace spanning to the existing façade and stainless steel solar screens at first floor, and finally voltaïc cells on clear glass sheets on the second floor.
▼项目更多图片
客服
消息
收藏
下载
最近





























