查看完整案例


收藏

下载
© Ketsiree Wongwan
c.凯西里·王湾
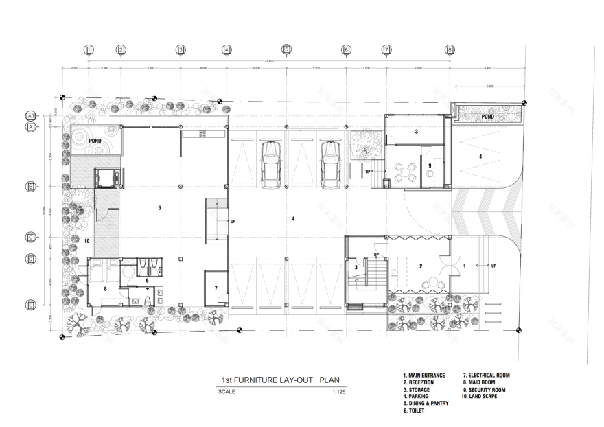
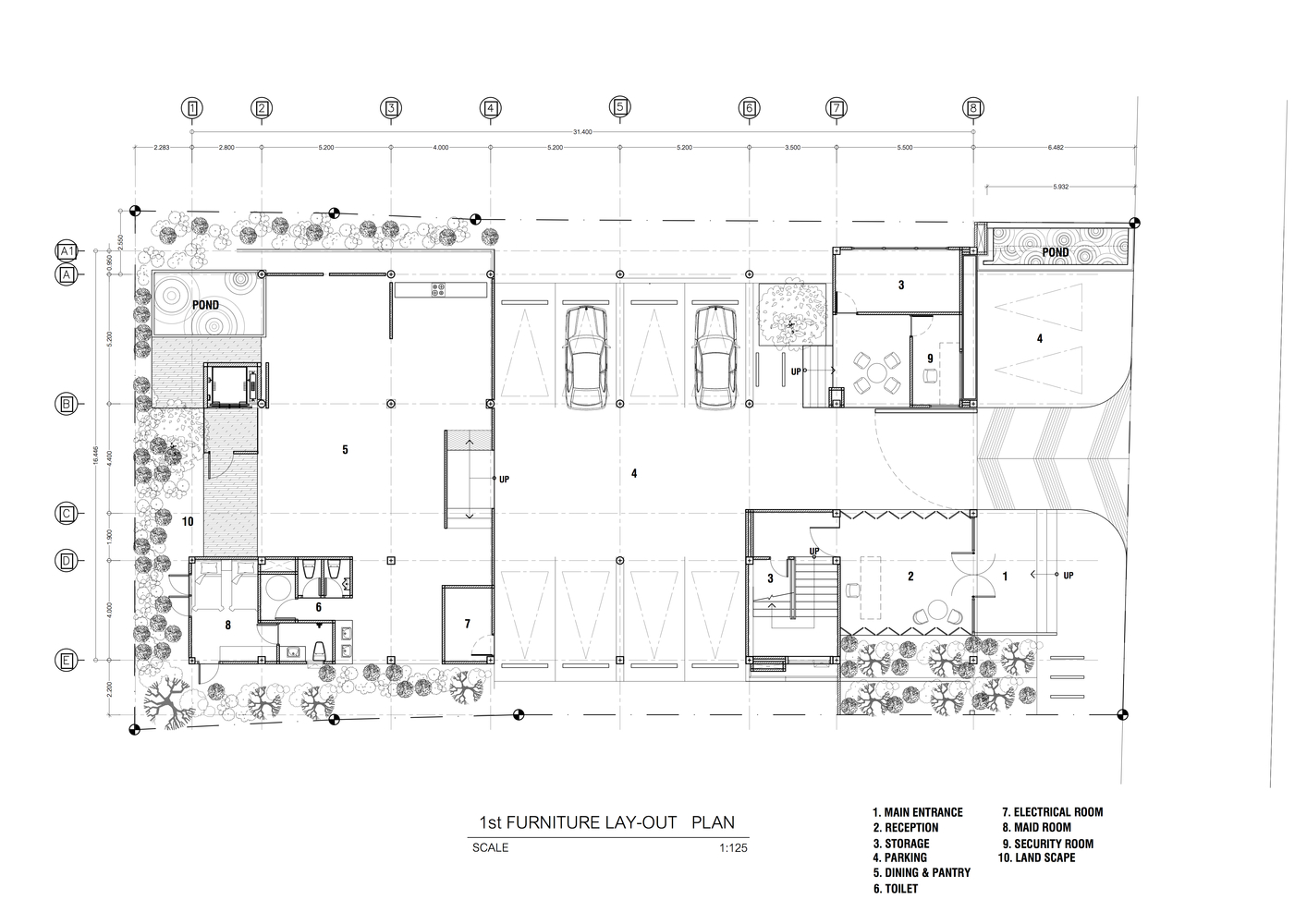
架构师提供的文本描述。DP集团的新总部是一栋经过翻修的4层建筑,业主希望在那里进行自然再生,以使其成为员工的回报。引入了充满自然光的花园的玻璃庭院,使楼层之间有了新的连接,并修改了所有工作空间的流量。一些地板,包括巨大的无生命阳台被抹去,插入那些玻璃庭院,天窗和树木,成为每个空间的新钉,并让工作区发生在他们周围。
Text description provided by the architects. The new headquarter for DP Group is a renovated 4 storeys building where the owner wanted to give a rebirth with natural aspects, in order to have it in return to their staffs. The glass courts with garden filled with natural light were introduced to give the new connection between floors and to revise the flow of all the working space. Some of the floor plate including the huge lifeless balcony were erased to insert those glass courts, skylights and tree to be the new staples of each space and let the working area happening around them.
© Ketsiree Wongwan
c.凯西里·王湾
阳台和建筑正面被新扩大的金属正面所包围,用于遮阳,同时也能捕捉到遮阳空间的潜力。
The balcony and building’s frontal are embraced by the new expanded metal facade for sun shading and also to capture the potential of a sheltered open space.
© Ketsiree Wongwan
c.凯西里·王湾
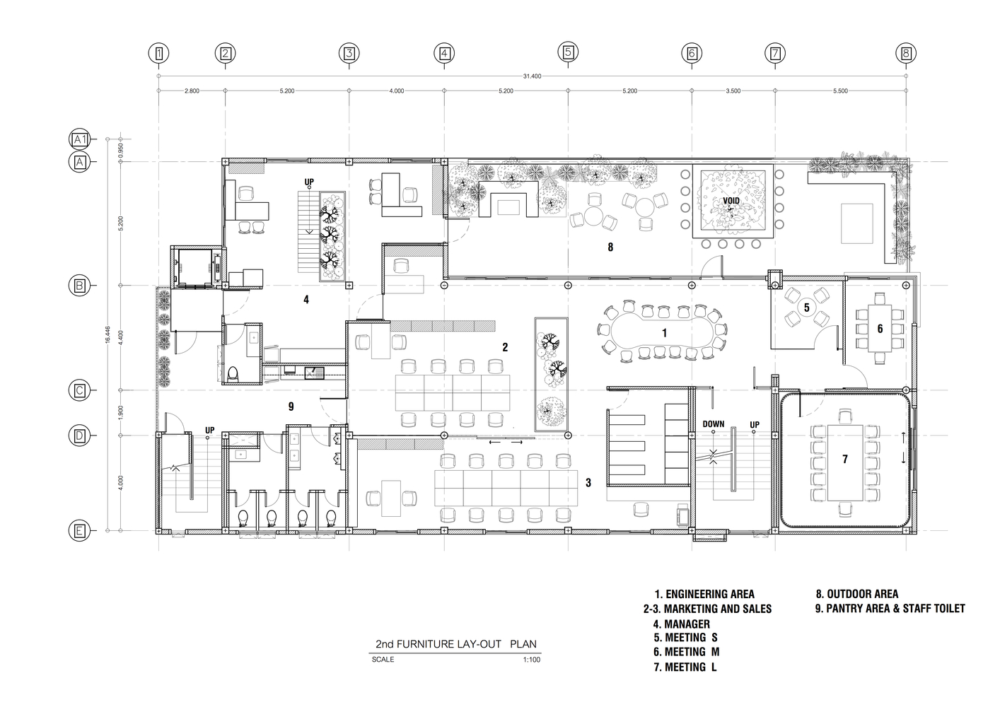
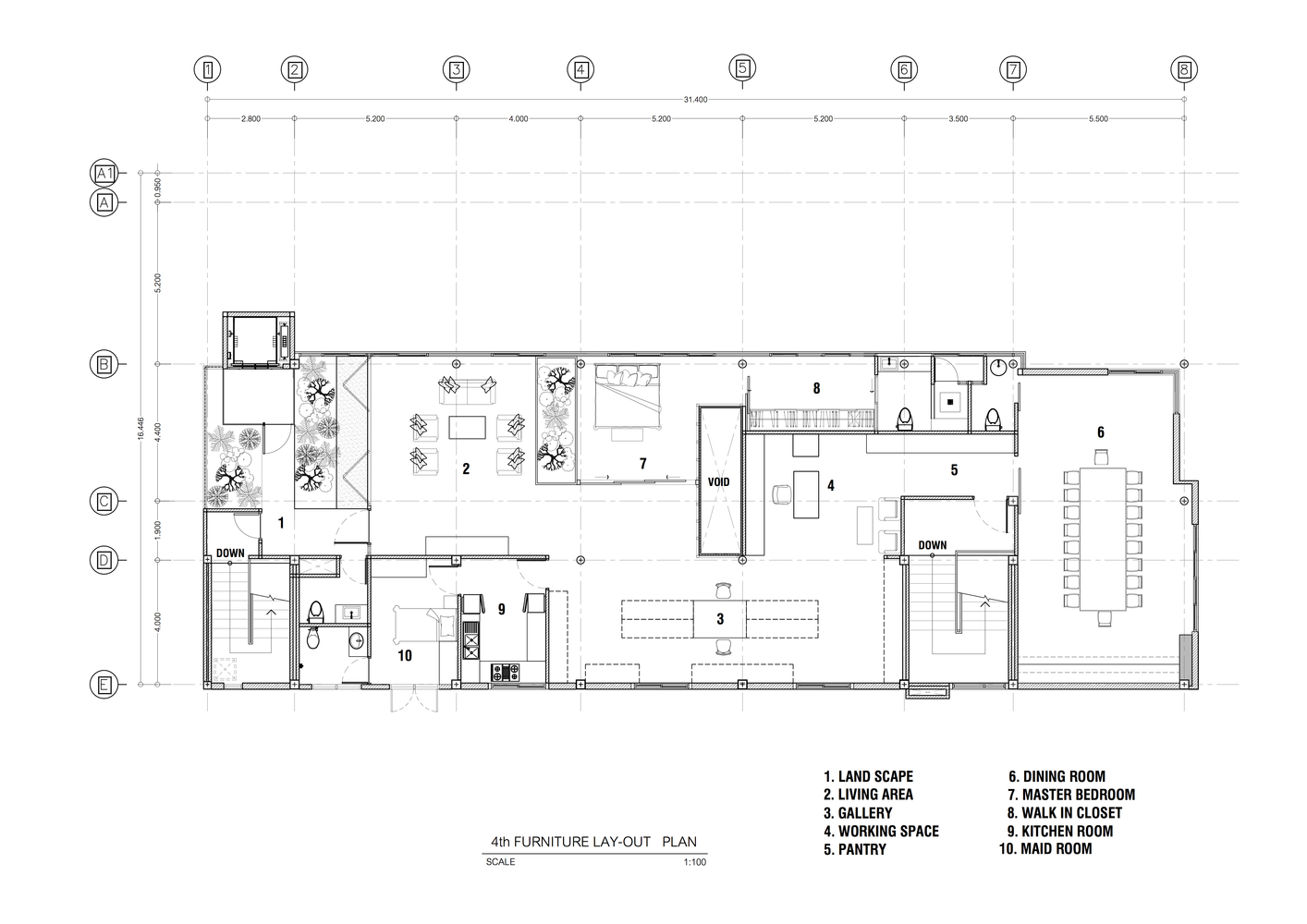
DP集团实际上是一家具有温暖工作氛围的家族企业。业主的顶层公寓位于顶层,高管们的工作复式公寓位于大楼的最后面,有自己的楼梯和玻璃庭院,以保护他们的隐私,几乎就像一个家庭办公室,彼此联系紧密,并密切照顾整个公司。
DP Group is actually a family business with a sense of warm working atmosphere. The owner’s penthouse is placed on the top floor, and the executives’ working duplex is at the very back of the building with it own stair and glass court for their privacy, almost like a family home office well connected to each other and looking after the whole company closely.
© Ketsiree Wongwan
c.凯西里·王湾
Void Connection Diagram
空隙连接图
© Ketsiree Wongwan
c.凯西里·王湾
Architects SO
Location Soi Phatthanakan 31/1, Khwaeng Suan Luang, Khet Suan Luang, Krung Thep Maha Nakhon 10250, Thailand
Category Institutional Buildings
Lead Architect Narong Othavorn
Area 1500.0 m2
Project Year 2016
Photographs Soopakorn Srisakul, Ketsiree Wongwan
Manufacturers Loading...
客服
消息
收藏
下载
最近























































