查看完整案例

收藏

下载
© Simon Devitt
西蒙·德维特
架构师提供的文本描述。奥克兰庞森比(Ponsonby)的一条最繁忙的住宅街道上,一处狭小而陡峭的土地上,有一座破败的110年前的遗产别墅。两年多来,这座三居室、一间浴室的别墅被改造成了一座美丽而实用的家庭住宅。它的成功的根本是宁静和休息的感觉,别墅的空间提供的内部城市生活方式,客户喜欢。
Text description provided by the architects. In a cramped, steep site on one of the busiest residential streets in Ponsonby, Auckland, there was magic to be found in the form of a dilapidated 110-year old heritage villa. Over two years, the three-bedroom, one-bathroom villa was transformed into a beautiful and functional, family home. Fundamental to its success is the sense of tranquillity and respite the villa’s spaces offer from the inner city lifestyle that the clients love.
© Simon Devitt
西蒙·德维特
最喜欢的放松、倒带和恢复活力的地方就是这个水疗中心式的浴室。雕刻出部分别墅,增加砖墙结构,并大量保留方便增加新的楼下地板。沿着主楼层灯光柔和的楼梯间移动,楼下的第一个房间是浴室。高窗户保持自然温暖,隐私和光线进入,而在更远的房间变成地下,产生了隐私感,舒适,和避难所。抛光加热混凝土地板提供额外的温暖和坚实的接地感觉。
A favourite place to relax, rewind, and re-invigorate is this spa-like bathroom. Carving out portions of the villa, adding masonry wall structures, and substantial retaining facilitated the addition of a new downstairs floor. Moving down the gently-lit stairwell of the main floor, the first room encountered downstairs is the bathroom. High windows maintain natural warmth, privacy, and light on entry, while further in the room becomes subterranean, generating a sense of privacy, cosiness, and sanctuary. Polished heated concrete floors provide additional warmth and a solid grounded feeling.
© Simon Devitt
西蒙·德维特
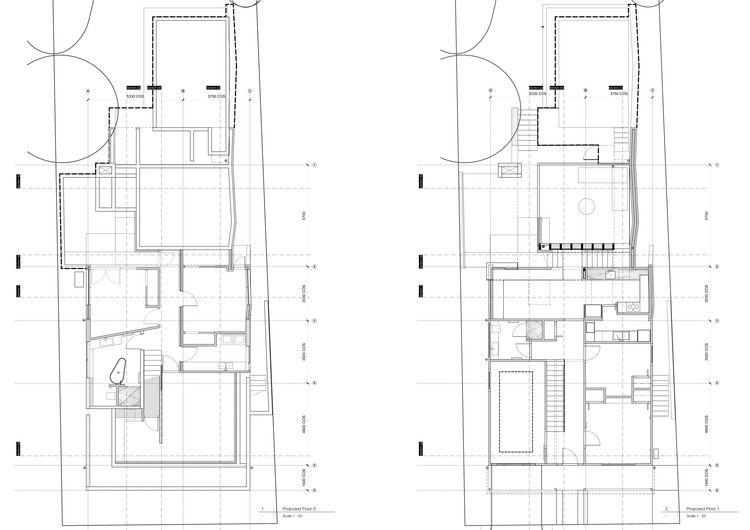
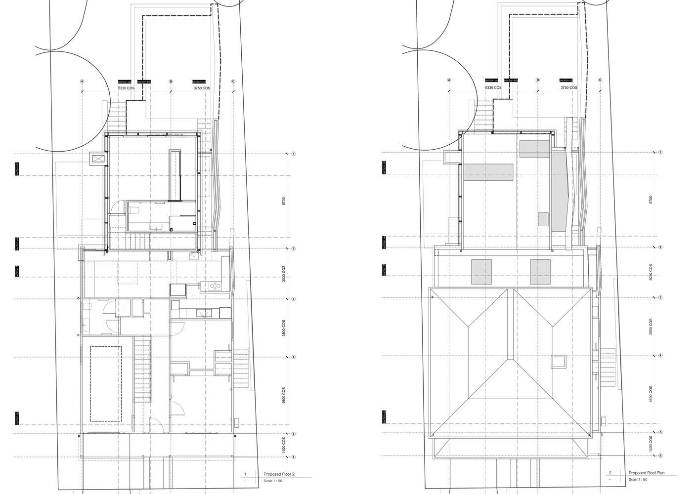
Level 0 + Level 1 Plan
0级1级计划
© Simon Devitt
西蒙·德维特
第一次在新西兰斯塔图里奥弗勒超大的面板被用作墙内衬,为浴室的周边墙提供了一个平静的质量。混凝土墙为面板提供坚实的支撑,有助于降低噪音。相当大的面板创造了一种感觉,浴室是由坚实的大理石雕刻。这些软瓷板确保空间充满柔和的漫射光,感觉亲切,温暖,豪华。
For the first time in New Zealand Statuario Fleur oversized panels were used as wall lining, providing a serene quality to the bathroom’s perimeter walls. Concrete walls provide the solid backing to the panels and aid noise reduction. The considerable size of the panels create the feeling that the bathroom is carved from solid marble. These soft porcelain panels ensure that the space is filled with gentle diffuse light and feels intimate, warm, and luxurious.
© Simon Devitt
西蒙·德维特
挂着的WC隐藏在马赛克大理石特色墙后面。阿拉蒂大理石瓷砖是使用在特色墙上提供一个微妙的对比与其他元素,并提请注意内部的独立站立石浴。这个独特的蛋形浴缸为房间提供了一个雕刻的中心。在wc的另一面,步入式淋浴提供了温暖降雨的活力体验。
The hanging WC is hidden behind a mosaic marble feature wall. Alarti Marble tiles are used on the feature wall to provide a delicate contrast to other elements, and to draw attention inwards toward the free-standing stone bath. This unique egg-shaped bath provides a sculpted centerpiece to the room. On the flip side of the WC, a walk-in shower offers the reinvigorating experience of warm rainfall.
© Simon Devitt
西蒙·德维特
© Simon Devitt
西蒙·德维特
所有细木工和橱柜元素都是黑色的,包括镜子。这为这些元素提供了直观的方向。镜子之间的滑动打破突出了家庭和外部窗口的变化水平。照明选项,包括在天花板空间内的凹槽LED增加亲密和平静的感觉。
All joinery and cabinetry elements are framed in black including the mirrors. This provides a visual direction to these elements. The slipped break between mirrors highlights the shifting levels within the home and the external window. Lighting options, including recessed LEDs within the ceiling space add to the feeling of intimacy and calm.
© Simon Devitt
西蒙·德维特
当房间充满了从一个世界到另一个世界的感觉,整个别墅的材料的和谐使用提供了无缝和舒适的感官。极简主义的表面和细木工方法进一步减少不必要的刺激,同时保持一种奢侈感。宽敞的存储空间使空间变得实用和独立。
While the room imbues a feeling of being transported from one world to another, the harmonious use of materials throughout the villa provides seamlessness and comfort to the senses. The minimalist approach to surfaces and joinery further reduces unnecessary stimulation, while maintaining a sense of luxury. Generous storage makes the space practical and self-contained.
© Simon Devitt
西蒙·德维特
Architects matter
Location Auckland, New Zealand
Architects in Charge Jonathan Smith, John Holley, Phil Howat
Area 300.0 m2
Project Year 2017
Photographs Simon Devitt
Category Refurbishment
Manufacturers Loading...
客服
消息
收藏
下载
最近
































