查看完整案例


收藏

下载
© Nakul Jain
(Nakul Jain)
架构师提供的文本描述。简略
Text description provided by the architects. BRIEF
简短的是为父子二人设计一座房子,他最近失去了这位女主人。
The brief was to design a house for a father son duo, who had recently lost the lady of the house.
© Purnesh Dev Nikhanj
c.Purnesh Dev Nikhanj
他们的想法是设计一座房子,让居住者与大自然的元素保持紧密的联系,从而使他们具有强烈的精神品质。整个概念被设计成具有相互连接的体积的自由计划,强调了俯瞰庭院的虚无感。
© Nakul Jain
(Nakul Jain)
这个计划是围绕北方的一个庭院组织的。
The plan was organized around a northern courtyard & water body with the central space i.e., the living room looking into it. The entrance was conceived through a screened verandah overlooking the water body on one side & living room in the front. This allowed for a complete absence of window coverings as no direct sunlight penetrated the central space but there was ample natural light throughout the day. The interconnecting volumes in the section allow the cross axes to be visible as soon as one enters the house.
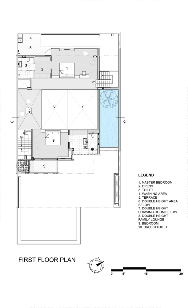
Ground Floor
该项目共有三间房,两间为父亲准备的主卧室。
The project houses a total of three rooms, two master bedrooms for the father & son and a guest room. The father was housed on the lower floor while the son’s room & the guest room are planned on the upper level. The father's room & son’s room are organized in such a way that they open into the central space, diagonally in the section thus creating a strong visual connectivity.
© Nakul Jain
(Nakul Jain)
家庭帮扶
The domestic help & other services are housed on the third level with a separate access from an external service staircase. The open kitchen with dining area along with a lounge is ideal, since there are only 2 occupants in the house. Although a separate spice kitchen is provided at the back for the domestic help & other services.
© Nakul Jain
(Nakul Jain)
材料板
MATERIAL PALLETTE
整个计划是在一个单色调色板中构思出来的,目的是给这个空间提供一个冥想的特征。内部表面是简单的石材或白色,与模式的阴影由外部屏幕是主要的焦点。海黑色石头在不同的完成使用是当地的石头在拉贾斯坦邦。唯一使用的其他材料是条形镜子,以增加虚幻的空间特征。
The overall project was conceived in a monochromatic palette to lend a meditative character to the space. The interior surfaces are simply Stone clad or white painted with patterns of shadows created from external screens being the principal focus. The ocean black stone used in different finishes is a local Stone available in Rajasthan. The only other material used is strips of mirror to add to the illusive character of space.
© Purnesh Dev Nikhanj
c.Purnesh Dev Nikhanj
Architects Charged Voids
Location Karnal, India
Lead Architect Aman Aggarwal
Design Team Rahul Vig, Nikita Kakkar
Area 370.0 m2
Project Year 2016
Photographs Nakul Jain, Purnesh Dev Nikhanj
Category Houses
Manufacturers Loading...
客服
消息
收藏
下载
最近


























