查看完整案例


收藏

下载
© Nakul Jain
(Nakul Jain)
将情感冻结在建筑中,实践开放的克制,获得封闭的力量,在空间中满足精神,欢庆舞蹈中的生活。
To freeze emotion into architecture To practice restraint of opening To gain the strength of enclosure To satiate spirit in the space To celebrate life in dance
© Nakul Jain
(Nakul Jain)
简短。为单身老妇人设计房子
BRIEF. To design a house for a single old lady & her tenants for ensuring security.
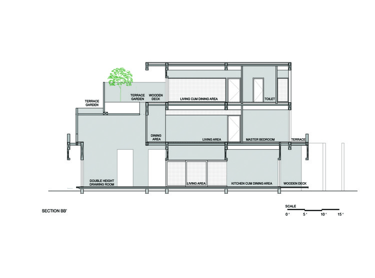
概念。这个概念是作为一个中心庭院周围的免费计划而设计的。水平
CONCEPT. The concept was devised as a free plan around a central courtyard. The levels & accesses were carefully divided between the lady and the tenants to allow for comfort & privacy.
© Nakul Jain
(Nakul Jain)
总体规划是围绕一个中央庭院组织的,与不同层次的室内空间有着不同的互动。它是开着的
PLANNING.The overall plan was organized around a central courtyard that interacted differently with the interior spaces on different levels. It is open & accessible on the ground floor while the first floor has a ribbon ventilator to ensure privacy of the ground floor.
© Nakul Jain
(Nakul Jain)
在较低的楼层,这位女士在前面有一间主卧室。
The lower level housed the lady with a master bedroom in the front & guest room at the back. The public spaces like the living room, lobby, dining all flowed into one another along with an open kitchen. A separate spice kitchen along with all other amenities has been provided.
由于地面层是主要居住者的住宅,因此通过有一个双高度的起居区来保证体积的膨胀。虽然,这位女士想租上一层楼,但她很想把露台租给自己。这是由一个单独的电梯通道组织起来的,直接从她的入口门厅通往露台。
Since the ground level houses the primary occupant, the volumetric expansion was ensured by having a double height living area. Although, the lady wanted to rent the upper floors but she was very keen to have the terrace to herself. This is organized by a separate elevator access that opens directly on to terrace from her entrance foyer.
© Nakul Jain
(Nakul Jain)
一楼有一个三居室。
The first floor has a 3-bedroom unit & public areas that flow on to private terraces. The second floor houses a one-bedroom unit with an open pantry. It also has 2 separate units for the domestic helps of the lower floors. They too have been given separate private terraces that are not visible in the façade to ensure the pristine maintenance.
© Nakul Jain
(Nakul Jain)
停车
The parking & access for the lower floor is from the north eastern side of the site while a separate parking & an access to the upper levels is towards the south.
© Nakul Jain
(Nakul Jain)
材料调色板。整体材料调色板仅限于白色大理石。
MATERIAL PALETTE. The overall material palette is limited to only white marble & sivakasi gold granite along with simple white painted surfaces. The flooring on the ground floor is white marble to ensure a luxurious feel while on the upper floors it is the same granite. The textures & finishes on the granite have been explored using a number of traditional techniques & craftsmen.
© Nakul Jain
(Nakul Jain)
Architects Charged Voids
Location Panchkula, India
Architect in Charge Aman Aggarwal
Area 450.0 m2
Project Year 2017
Photographs Nakul Jain
Category Houses
Manufacturers Loading...
客服
消息
收藏
下载
最近

































