查看完整案例


收藏

下载
© Ishiguro Photographic Institute
石黑摄影学院
架构师提供的文本描述。该项目位于东京湾海滨长廊上,是哈米区的重点项目。作为三菱吉绍住宅的最大和最负盛名的企业之一,Harumi住宅大厦旨在反映三菱对东京都国际和充满活力的城市景观的承诺。
Text description provided by the architects. Situated on the waterfront promenade of Tokyo Bay the project is a focal point for the Harumi district. As one of the largest and most prestigious undertakings of the Mitsubishi Jisho Residence, the Harumi Residential Towers is intended to reflect Mitsubishi’s commitment to the international and dynamic cityscape of metropolitan Tokyo.
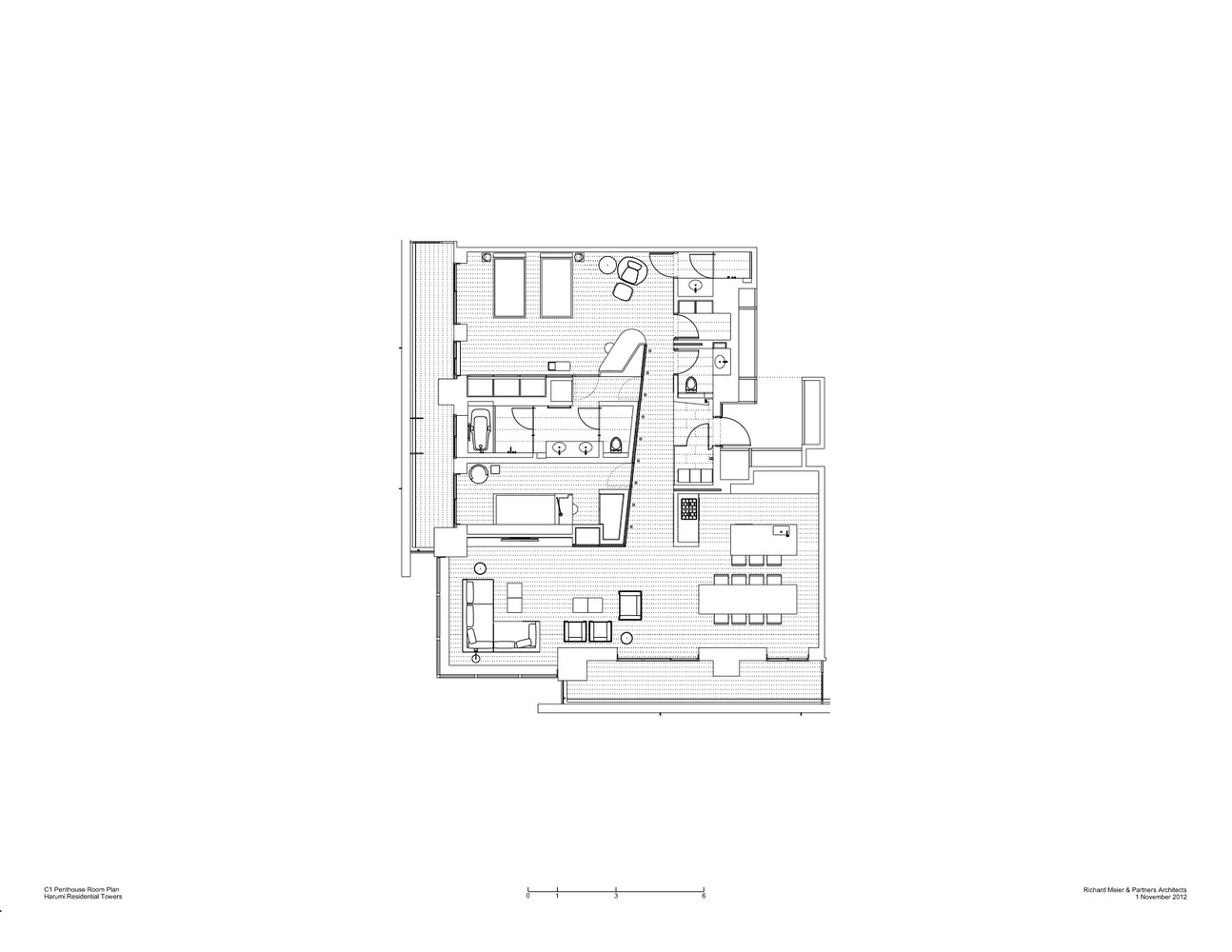
Ground Floor Plan
合伙人杨俊浩(DukhoYeon)评论道:“我们非常幸运地与一位拥有清晰愿景和目标的优秀客户合作。我们公司非常高兴能够为东京的当代建筑做出贡献,这是一个国际大都市,有着非常特殊的秩序感,是无可比拟的。
Dukho Yeon, Partner-in-Charge, comments: “We were very fortunate to collaborate with an excellent client with clear vision and goals. Our Firm is thrilled to contribute to the contemporary architecture of Tokyo, an international megalopolis with a very specific sense of order beyond compare.
© Ishiguro Photographic Institute
石黑摄影学院
哈米塔在很大程度上是这个城市环境的一部分。虽然他们在视觉上是一样的聚集,住宅塔被概念化为兄弟姐妹,有两个独特的设计,每一个有自己的性格,形象和运动,在对话和谐的彼此。这些设计超越了直接的限制,用永恒的叙事来描述背景和建筑、传统和创新、建筑表达和象征主义,它们的细节和纹理都被捕捉到了。“
The Harumi Towers are very much part of this urban context. Although they are visually the same in massing, the residential towers are conceptualized as siblings with two unique designs each with its own character, image and movement, in dialogue and harmony with one another. The designs speak beyond their immediate constraints to engage a timeless narrative of context and building, tradition and innovation, architectural expression and symbolism captured in their details and the textures.”
C1是首座拥有883套公寓和49层楼的住宅大厦。预计2016年4月建成的第二座塔将有861套公寓,也将有49层高。塔楼居民共享的一些便利设施包括露台花园、咖啡馆休息室、活动专用客房、健身中心、图书馆和客房。塔高170米,利用哈米运河延伸至地平线的广阔景色。
C1 is the first residential tower to be completed with 883 apartments and 49 stories. The second tower expected to be completed in April 2016 will have 861 apartments and will also be 49 stories tall. Some of the amenities that are shared by the residents of the towers include a terrace garden, a café lounge, special rooms for events, a fitness center, library and guest rooms. At equal heights of 170 meters tall, the towers capitalize on expansive views of the Harumi Canal stretching off into the horizon.
© Ishiguro Photographic Institute
石黑摄影学院
Richard Meier评论说:“有机会与三菱吉绍住宅公司和Kajima公司合作建造Harumi住宅大厦,使我们能够继续探索和开发我们的住宅项目。东京的这个新项目是由两座塔组成的,但也许更重要的是,它是一个大型的公共空间,它将为邻里提供服务,并将其与海湾的一座宏伟的海滨长廊连接起来。这将是国内和城市规模之间的深刻联系,塔楼将成为通往这座城市的门户,为东京和日本的所有公民创造一种场所感。“
Richard Meier comments: “Having the opportunity to work with the Mitsubishi Jisho Residence Company and the Kajima Corporation on the Harumi Residential Towers has enabled us to continue our exploration and the development of our residential projects. This new project in Tokyo is comprised of two towers, but, perhaps more important a large-scale public space that will serve the neighborhood and connect it to a magnificent promenade at the bay. This will be a profound link between the domestic and urban scales, and the towers will become a gateway to the city creating a sense of place for all the citizens of Tokyo and Japan. ”
© Ishiguro Photographic Institute
石黑摄影学院
作为对城市规划要求的回应,这些塔楼创造了一种非常开放的天空和海景氛围,可以看到许多重要的城市标志性建筑,包括彩虹桥。Harumi住宅塔楼利用自然材料、光线和反射,提供了形式、空间和纹理的清晰表达。设计是一个细致的艺术工艺和表现过程的结果,与其文化、建筑和环境相协调。
Oriented North-South as a response to urban planning requirements, the towers create an exceptionally open atmosphere of sky and seascape with views of many significant urban landmarks including the Rainbow Bridge. The Harumi Residential Towers provide a clear expression of form, space and texture using natural materials, light and reflection. The design is the result of a meticulous process of artistic craft and expression that is in harmony with its cultural, architectural and environmental context.
© Ishiguro Photographic Institute
石黑摄影学院
Architects Richard Meier & Partners Architects
Location Tokyo, Japan
Category Housing
Design Partners Richard Meier, Dukho Yeon
Project Architect Carlo Balestri
Area 196200.0 sqm
Project Year 2015
Photographs Ishiguro Photographic Institute
客服
消息
收藏
下载
最近


















