查看完整案例


收藏

下载
© Fernando Guerra | FG+SG
费尔南多·格拉
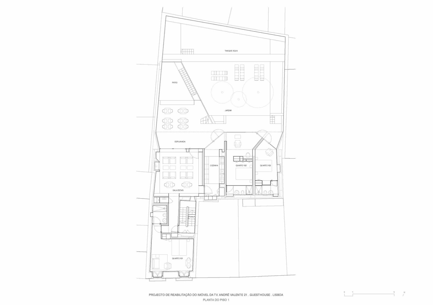
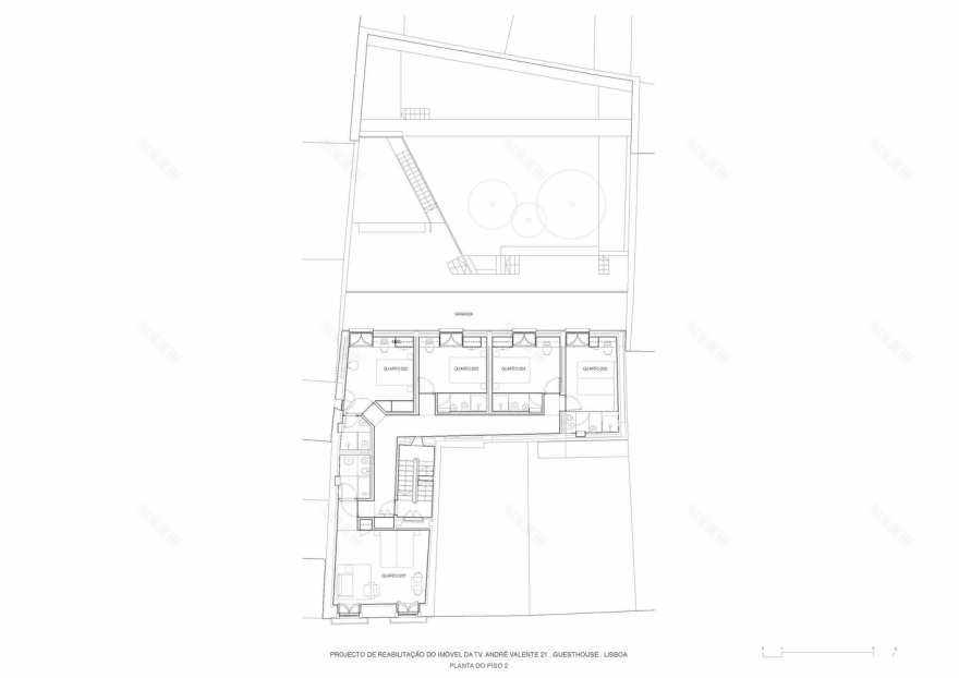
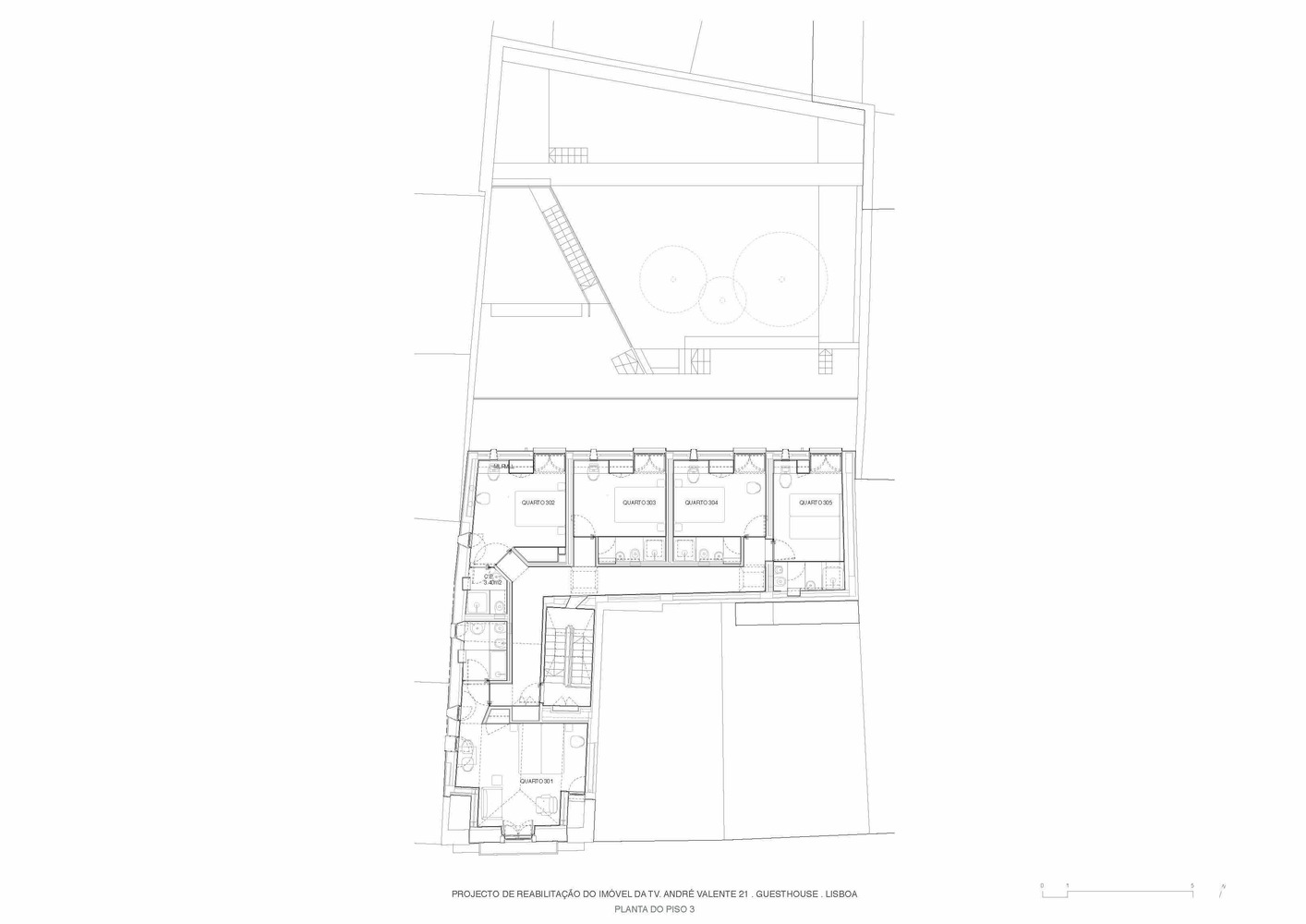
0 Floor Plan
0平面图
架构师提供的文本描述。干预措施包括修复十九世纪末在里斯本贝罗阿尔托历史街区修建的一座旧住房。建筑面积650平方米,占地4层,花园面积250平方米。
Text description provided by the architects. The intervention consists on the rehabilitation of an old housing build from the end of the XIX century, inserted in the historic district of Bairro Alto in Lisbon. With a gross area of 650m2 spread over 4 floors and a garden with 250m2.
这座建筑已处于严重的退化状态,需要进行深入的干预。
The building was in an advanced state of degradation requiring a deep intervention.
© Fernando Guerra | FG+SG
费尔南多·格拉
家长评价认为,主立面、侧壁和内楼梯是值得注意的要素。
The patrimonial evaluation established that the main facade, the side walls and the inner staircase were the notable elements to keep.
© Fernando Guerra | FG+SG
费尔南多·格拉
采取复原战略是为了在恢复后的人员与新结构之间建立对话。
The strategy for the rehabilitation was taken in order to establish a dialogue between the restored elements and the new structure.
© Fernando Guerra | FG+SG
费尔南多·格拉
Architects Pedro Domingos Arquitectos
Location Lisbon, Portugal
Category Houses
Architect in Charge Pedro Domingos
Area 670.0 sqm
Project Year 2016
Photographs Fernando Guerra | FG+SG
客服
消息
收藏
下载
最近
















































