查看完整案例


收藏

下载

翻译
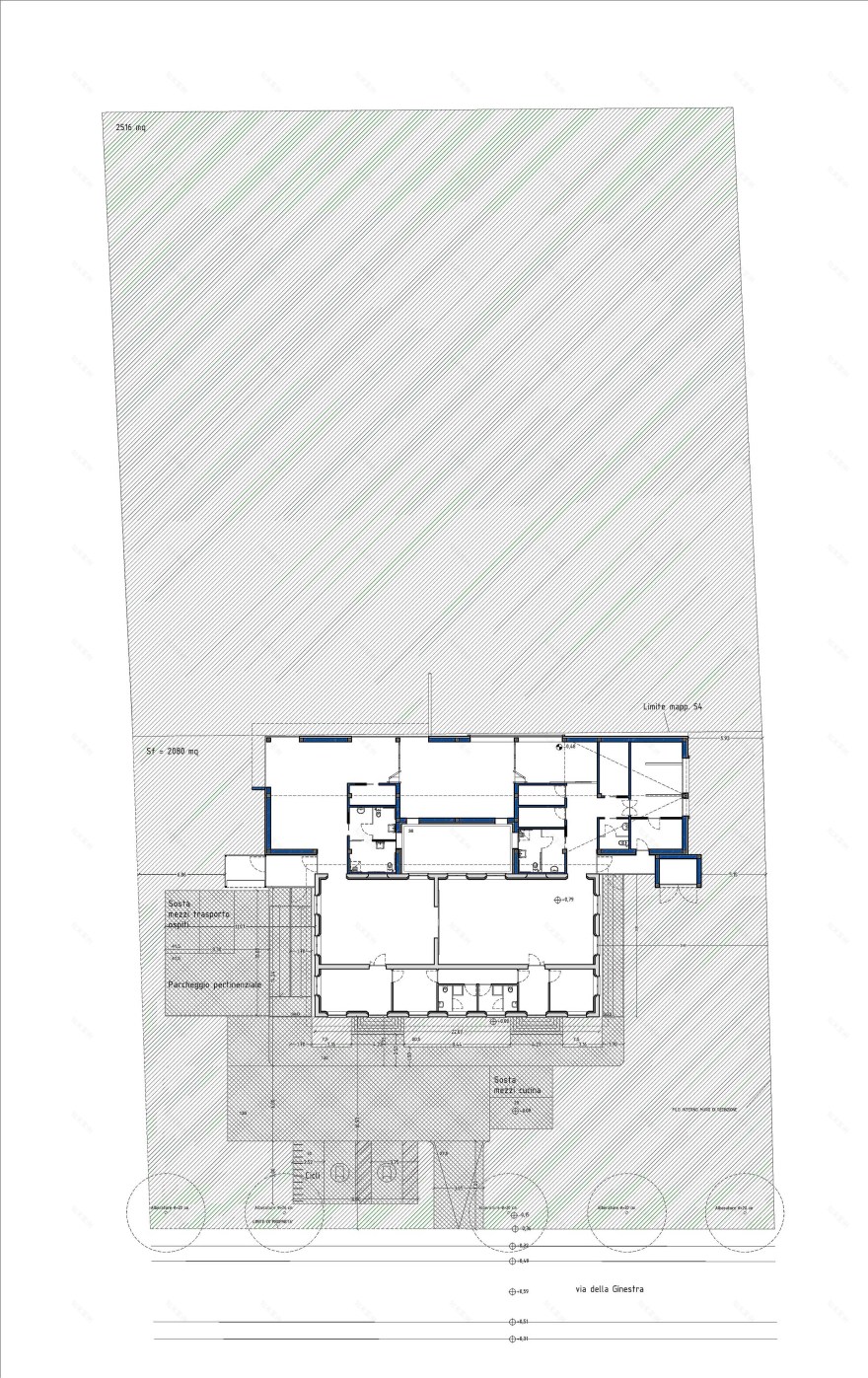
Il progetto in oggetto prende il proprio avvio dalla necessità di trasferire l’attuale Centro socio-riabilitativo in un contesto ed edificio più idoneo. Si è pertanto individuata l’ex-scuola elementare di Cocomaro di Focomorto, plesso risalente al ventennio fascista, in quella parte di territorio posto confine fra l’abitato di Ferrara ed il paesaggio agricolo del forese sud-orientale. Il nuovo Centro trova collocazione in un’area su cui insiste anche il nuovo Plesso ospedaliero di Cona ed è quindi servito, ma non direttamente affacciante, da una viabilità agevole e di grande scorrimento. L’edificio esistente è stato ricuperato ed ampliato, più che raddoppiato, creando un insieme di locali intercomunicanti ma potenzialmente suddivisibili con pareti scorrevoli. Questo facilita sia il controllo degli ospiti, in tutto 25 adulti con handicap cognitivi severi e gravi, che la adattabilità dei vani alle specifiche esigenze che si modificano nel corso della giornata. L’edificio esistente viene rispettato nella sua geometria esterna ma completamente rivisto internamente. L’addizione mantiene una omogeneità con il contesto rurale mimando le tipologie tradizionali ma distaccandosene nettamente come estetica. Si sono infatti previsti il tetto a capanna ma i prospetti vengono “disegnati” con grandi aperture, finestre a nastro ed elementi plastici con funzione di frangisole. L’esterno viene trattato con colori sobri e volutamente sotto-tono. Gli interni, vista la tipologia di utenza, sono stati specificamente studiati con il personale sanitario ed educativo in modo che gli spazi, per forma e stimolo cromatico, siano idonei alle attività ivi svolte. L’edificio è stato Certificato in Classe B (metodo di calcolo Regione Emilia Romagna), a seguito dell’installazione del previsto impianto fotovoltaico, non ancora montato, si otterrà la Classe Energetica A
Gruppo di lavoro:
bc studio _ Architetti Ilaria Bizzo e Stefano Cornacchini
Collaboratori: Gaia Barbieri, Massimo Brunelli, Aronne Frigeri
Strutture: Studio Peroni Faenza (RA)
Impianti: Studio Borrinie Studio Eltec
Sicurezze: Architetti Maini e Dalla Casa
Foto: Alessandro Ciampi
客服
消息
收藏
下载
最近




















