查看完整案例

收藏

下载
© Jack Jérôme
.Jack Jér me
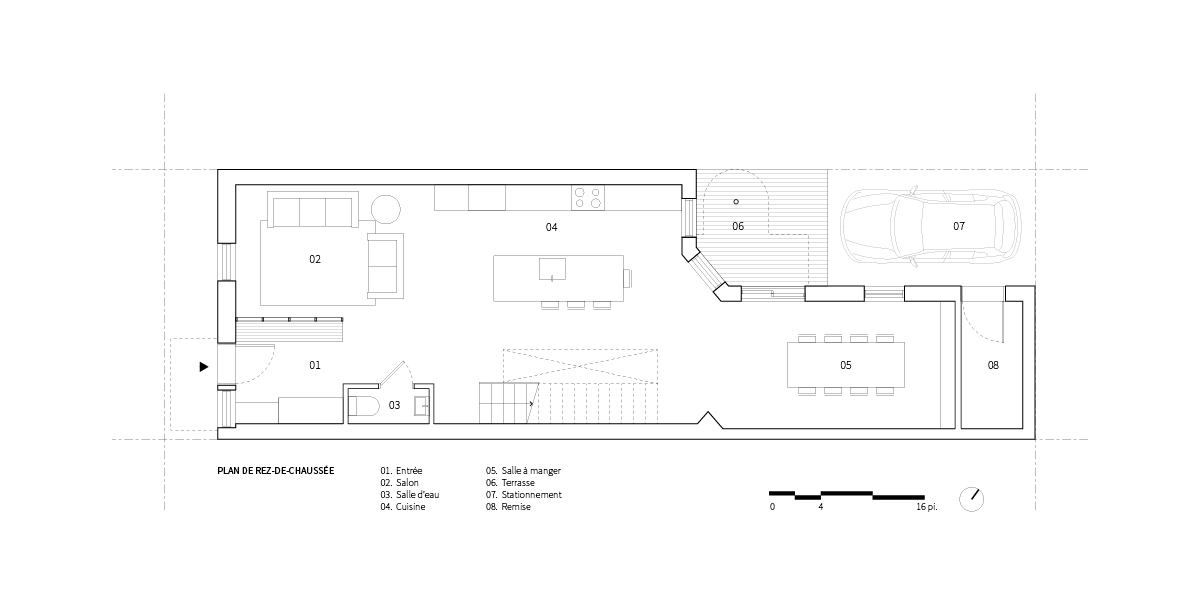
架构师提供的文本描述。在蒙特利尔高原的中心地带,有一个典型的20世纪的复式公寓,最近被L‘abri改造成了一个两层楼的家庭住宅。该项目利用机会分解原来的空间,提供了一种更开放和简单的感觉。在底层,生活空间被布置成一个大的连续空间,从街道到花园。
Text description provided by the architects. In the heart of the Plateau Mont-Royal neighbourhood in Montreal lies a typical duplex from the 1900s that has recently been transformed by L’Abri into a two-story family home. The project has taken the opportunity to decompartmentalize the original space, providing a greater sense of openness and simplicity. On the ground floor, the living spaces are arranged as a large continuous space, spanning from the street to the garden.
© Jack Jérôme
.Jack Jér me
Program Axonometric
程序轴测
© Jack Jérôme
.Jack Jér me
盥洗室作为一个不透明的体积缓冲从房子的其他地方的前厅,而厨房占据了住宅的中心,特色是一个完整的厨房与一个大岛。沿着后者运行是真正的家庭焦点元素:两层之间有一个天窗的开口,允许阳光从所有的方向渗透到底层。在这个开口里,有一个木制的楼梯,有一个钢的连续扶手,沿着二楼的人行道旋转。
The washroom serves as an opaque volume buffering the vestibule from the rest of the house, while the kitchen occupies the centre of the residence, featuring an integrated kitchen with a large island. Running along the latter is the true focal element of the home: an opening between the two floors with a skylight, allowing daylight to seep in all the way to the ground floor. A wooden staircase rises within this opening, with a steel continuous handrail that turns along the second-floor walkway.
© Jack Jérôme
.Jack Jér me
© Jack Jérôme
.Jack Jér me
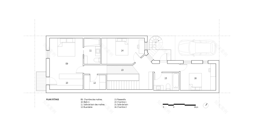
主套房位于建筑的前部,由于屋顶的倾斜,房间的天花板很高。辅助空间也有机会在日光下洗澡:主步入式壁橱面向街道阳台,而第二个开口是在主套房淋浴上方创建的。在房子的后面,一个新的外部楼梯延伸到屋顶露台,提供了一个从城市撤退,并可以看到的山-皇家和蒙特利尔市中心。
The master suite is located in the front part of the building, the room has high ceilings due to the slope of the roof. Auxiliary spaces are given the chance to bathe in daylight as well: the master walk-in closet faces the street balcony, while a second opening is created above the master suite shower. At the back of the house, a new exterior staircase extends to the rooftop terrace, offering a retreat from the city, and a view of the Mount-Royal and downtown Montreal.
© Jack Jérôme
.Jack Jér me
Architects L’Abri
Location Montréal, Canada
Lead Architects Nicolas Lapierre, Francis Pelletier, Francis Martel Labrecque
Area 176.5 m2
Project Year 2016
Photographs Jack Jérôme
Category Houses Interiors
Manufacturers Loading...
客服
消息
收藏
下载
最近























