查看完整案例


收藏

下载
建筑施工单位,UPC结构计算,Canepa Ingenieros技术检查,CXA配体,Oriana Pozini,多规格,少规格
Builder Constructora UPC Structure calculation Canepa Ingenieros Technical Inspection CXA Ligthning Oriana Pozini More Specs Less Specs
© Nico Saieh
c.Nico Saieh
架构师提供的文本描述。在建筑设计中,建筑物与其直接环境的关系是一个不变的、始终存在的因素。有时你会模仿,把几何和材料融入建筑中,以此来尊重周围的环境。其他人,你可能会寻求脱颖而出,突出你们的差异,并探索新的想法。
Text description provided by the architects. The relation between a building and its immediate context is a constant and ever present factor in architectural design. Sometimes you go for mimicry, integrating into the building the geometry and materials as a respectful nod to the surroundings. Others, you may seek to stand out, highlighting your differences and to explore new ideas.
Axonometric
设计一座位于城市历史中心中间的学生建筑的要求促使我们在这两种立场之间寻求平衡,目的是找到一个既适合年轻人又尊重这个地方的解决方案。
The request to design a student building situated in the middle of the city’s historic center pushed us to look for a balance between both positions, aiming to find a solution that was both contemporary to the youth and respectful to the place.
© Nico Saieh
c.Nico Saieh
我们决定对周围环境进行更深入的探索,并从Paseo Bulnes近郊社区的建筑中汲取灵感,将建筑的总体形状抽象为基础、身体和皇冠等元素,以供设计使用。
We decided to explore further than the immediate surroundings and took inspiration from the buildings in the close civic neighborhood of Paseo Bulnes, abstracting their general shape into elements of base, body and crown to be applied in the design.
© Nico Saieh
c.Nico Saieh
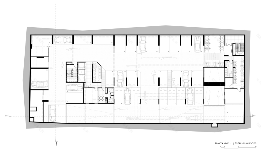
Ground Floor Plan
© Nico Saieh
c.Nico Saieh
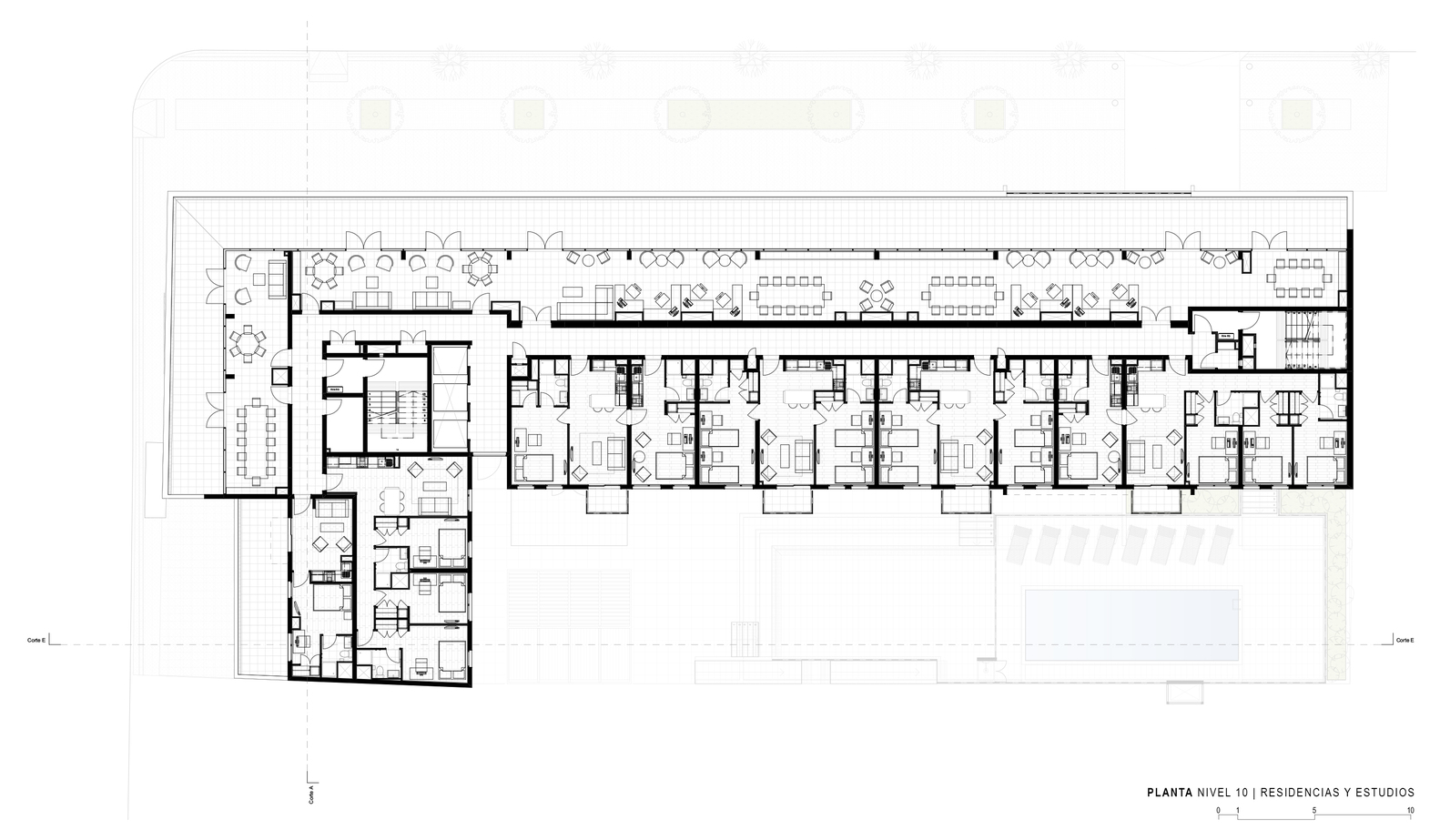
Second Floor Plan
二层平面图
一旦确定了建筑的总体形状,它就与现代系统和材料相结合,寻找平衡。考虑到这一点,我们选择了用黑色整体背景和木制口音对比金属面板的建筑。
Once the general shape of the building was decided, it was combined with modern systems and materials, looking for balance. With this in mind, we chose to clad the building with contrasting metal panels with a black monolithic background with wooden accents.
© Nico Saieh
c.Nico Saieh
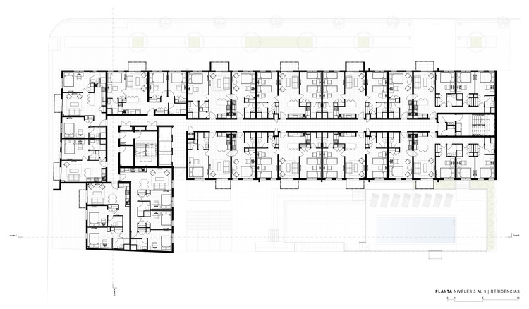
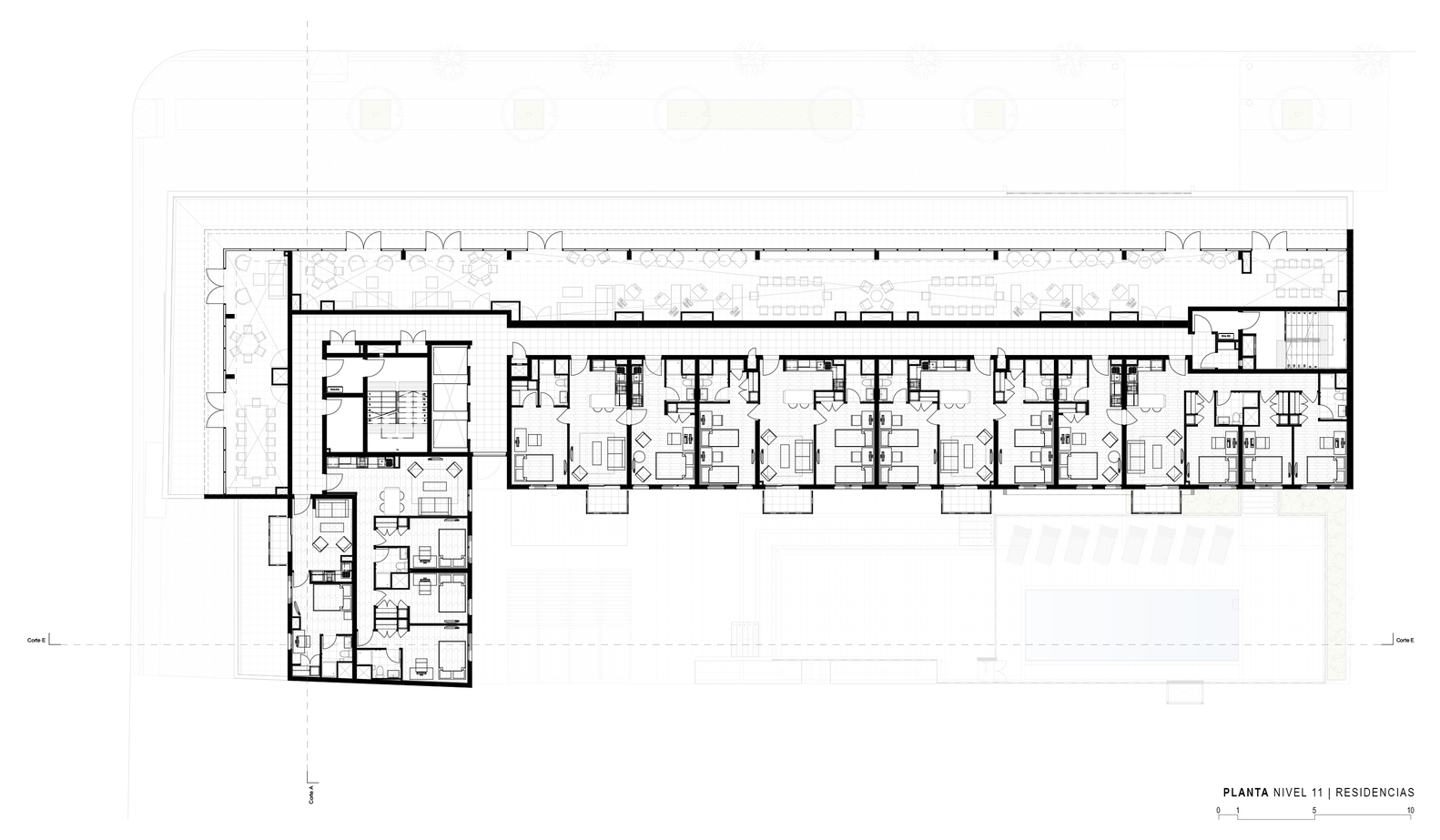
Third to Nineth Floor Plan
三楼至九楼图则
© Nico Saieh
c.Nico Saieh
从本质上讲,历史几何和比例与新材料和新技术并置,使该项目成为不同时代的融合,使人想起当代设计和二十世纪智利建筑。
In essence, the juxtaposition of historic geometry and proportions with new materials and technologies allowed the project to set itself as a blend of different times, reminiscent of contemporary design and XX century Chilean architecture.
© Nico Saieh
c.Nico Saieh
Architects RS Arquitectura
Location Lord Cochrane 166, Santiago, Región Metropolitana, Chile
Author Architect Juan Carlos Sotomayor Correa
Architect in Charge Nicolas Hernández Pons
Area 12784.0 m2
Project Year 2017
Photographs Nico Saieh
Category Dorms
Manufacturers Loading...
客服
消息
收藏
下载
最近



























