查看完整案例


收藏

下载
© George Dupin
乔治·杜宾
架构师提供的文本描述。H型
Text description provided by the architects. H&deM designed the master plan of Confluence for the Rhone river side (ZAC II) between 2009 and 2011 and has being supervising the urban development since then. The project proposes 14 “îlots” of approximately 100 buildings mixing uses and typologies. Îlot A3 is the first “îlot” in the new Confluence district “Quartier du Marché” to be developed as a pioneer for the entire area. H&deM acted as “Architecte en Chef d’Îlot” for the translation of urban guidelines into architecture.
© Jonathan Letoublon
乔纳森·莱图布伦
Axonometry
© Julien Lanoo
朱利安·拉诺
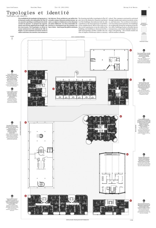
Typologies
© Maxime Delvaux
c Maxime Delvaux
Ilot A3由8栋建筑组成,其中包括住宅、办公室和零售,由6个办事处设计,其中包括AFAA、Tatiana毕尔巴鄂、Manuel Herz、Christian Kerez、H。
Ilot A3 consists on an open bloc of 8 buildings with housing, offices and retail designed by 6 offices including AFAA, Tatiana Bilbao, Manuel Herz, Christian Kerez, H&deM and Michel Desvigne as landscape architect. In the center of the bloc there is a courtyard with a day care. The introduction of 16 floor high towers in the master plan offers simultaneously the possibility to keep a relative high density as well as having small-scale buildings of 3 stories. Thus, it provides a variation of urban scales within the same bloc.
© Maxime Delvaux
c Maxime Delvaux
© George Dupin
乔治·杜宾
A3号地段的住宅楼是由Herzog设计的。
The residential tower on Îlot A3 is designed by Herzog & de Meuron. The volume is a simple extrusion defined by rounded loggias in the corners. The curved mineral facade has single and repetitive square openings. Its appearance relates to the very structured and homogenous facades of the buildings in the old town of Lyon. As opposed to the curves of the concrete, windows and sunshades are combined in a polygonal metallic frame specifically developed for the project. Their position follows the rectilinear grid of the floorplan. The geometry of the metallic window frames offers the possibility to use the shading system when the tilting window is open.
© Julien Lanoo
朱利安·拉诺
Architects Herzog & de Meuron
Location 97 Cours Charlemagne, 69002 Lyon, France
Partners Jacques Herzog, Pierre de Meuron, Christine Binswanger (Partner in Charge)
Project Team Christoph Röttinger (Associate, Project Director), Emmanuel Guilloux (Project Manager), Claire Gamet (Project Manager), Delphine Camus, Chloé Eckert, Shusuke Inoue, Sara Jimenez, Antoine Meinnel, Alexa Nürnberger (Associate), Romain Pequin
Area 5751.0 m2
Project Year 2017
Photographs Julien Lanoo, Maxime Delvaux, Jonathan Letoublon, George Dupin
Category Apartments
客服
消息
收藏
下载
最近



























