查看完整案例


收藏

下载
架构师提供的文本描述。卡萨诺·达达音乐中心不仅是一座改善音乐文化的建筑,而且将成为这个城市所有文化活动的场所。
Text description provided by the architects. Cassano D’Adda Music Center is not only a building for improving musical culture, but it’s going to become the location for all the cultural activities of the city.
© Filippo Romano
菲利波·罗曼诺
音乐中心将建在卡萨诺达达,米兰和贝尔加莫之间的城市,在阿达河岸。尽管面积很小,但卡萨诺的集水区大约有16万人,所以这个项目是要在领土上发挥作用的。
Music Center will be built in the city of Cassano d’Adda, between Milan and Bergamo, on the banks of the river Adda. Despite its small size, Cassano has a catchment area of approximately 160 000 people, so this project is meant to have a territorial role.
© Filippo Romano
菲利波·罗曼诺
该地区靠近米兰至特雷维格利奥的主要街道,距离市中心和美丽的Borromeo别墅仅几分钟车程,是一个以无价值建筑为特征的郊区。
The area is near the main street from Milan to Treviglio, a few minutes from the center and from the beautiful Villa Borromeo, in a suburb characterized by constructions without value.
© Filippo Romano
菲利波·罗曼诺
这个建筑项目想要建立一个新的城市中心,一个城市和社区的中心。
The building project wants to create a new urban center, a locus for the city and the neighborhood.
总体规划中的建筑布局遵循该地区的渗透线,将该地段划分为一个被住宅环绕的私人区域和一个可俯瞰广场的公共区域,音乐中心(MusicCenter)可俯瞰广场。这个外部空间是由几个元素组成的,比如连接街道与建筑地面高度的梯田,以及前面的乔木空间,作为广场本身的外部限制。
The placement of buildings in the masterplan follows the lines of penetration of the area, it divides the lot into a private zone surrounded by residential buildings and a public one with the Music Center overlooking the square. This external space is composed by a few elements like a terraced parterre that connects the street to the building ground height and an arboreal volume in front of it, that works as an outer limit for the square itself.
© Filippo Romano
菲利波·罗曼诺
该程序非常复杂,包括不同的功能和空间,真正灵活的使用:门厅可以容纳,例如,活动,展览或小型音乐会,如内部广场。
The program is very complex, including different functions and spaces for a real flexibility of use: the foyer can accommodate, for example, events, exhibitions or little concerts like an internal square.
Longitudinal Section
在大厅附近,一个有300个座位的礼堂和商业空间(如自助餐厅或音乐商店)没有内部隔断,可以扩展其在相邻空间的活动,并独立于音乐中心运作。
Near the lobby, a 300-seat auditorium and commercial spaces (like a cafeteria or a music store) without interior partitions can expand its activity in the adjacent spaces and operate independently from the Music Center.
© Filippo Romano
菲利波·罗曼诺
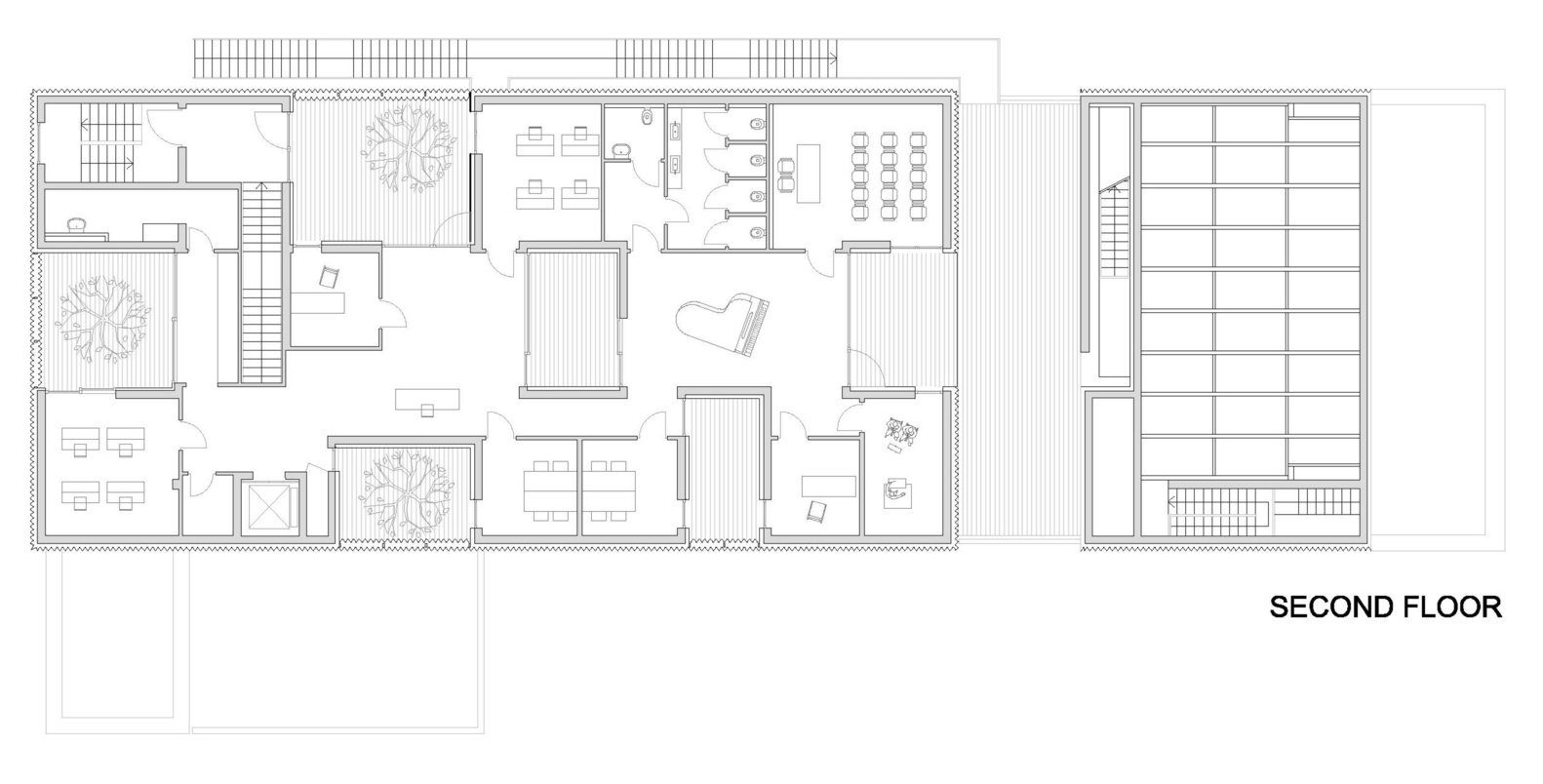
音乐学校位于二楼,与其他功能和空间紧密相连。
A music school is located on the second floor, strictly connected with others functions and spaces.
这座建筑体积小,有三层楼,地下室在长方形的基础上。
The building is a compact volume of three floors and a basement on a rectangular base.
Scheme of the plaza
广场方案
压制成型的穿孔白色金属覆盖的前两个层次,白色油漆,对比非常多孔的内部。门厅是一个巨大的中空空间,连接不同的层次,汇集了所有的活动。从这个空间出来的观众席,由它的内部和外部涂料白色木制夹板定义。
The compactness of press-formed perforated white metal covering of the first two levels, white painted, contrasts with a very porous interior. The foyer is a great hollow space that connect different levels and brings together all the activities. From this space comes out the aslope volume of the auditorium, defined by its interior and exterior coating made of white wooden splints.
© Filippo Romano
菲利波·罗曼诺
对于音乐学校的黑体字来说,这种穿透力也是一样的,它是由六个天井雕刻而成,为教室带来光和空气,就像室内空间的外部投影一样分配在教室的旁边。这种配置创建了一个多用途的连接空间。
This kind of porousness chosen for the interiors is the same for the black volume of the music school, which compactness is carved by six patios that bring light and air to the classrooms, allocated next to them like an external projections of the interior spaces. This disposition create a multipurpose connecting space.
© Filippo Romano
菲利波·罗曼诺
该项目是在地方当局、音乐教师学校、地方表演公司、协会和用户代表参与下制定的。
The project has been developed after a participation process that involved local authorities, the school of music teachers, local acting companies, associations, and a representation of users.
该中心被设想为向社区开放的音乐之家,是人们可以聚会和互动的公共场所。
The Center has been conceived as a house of music open to the community, a public place where people can meet and interact.
© Filippo Romano
菲利波·罗曼诺
客服
消息
收藏
下载
最近















































