查看完整案例


收藏

下载
项目位于湖北省孝感市,场地是典型的江汉平原的丘陵地形。在项目伊始,设计师在考察地形后,将建设的基地选择在与乡道对面的水塘边,希望从高速下来的车辆,在拐进这条两侧种满意杨林的乡间道路后,第一眼可以远远看到建筑的全貌,从而形成一个对景的关系。
项目位于湖北省孝感市,场地是典型的江汉平原的丘陵地形。在项目伊始,设计师在考察地形后,将建设的基地选择在与乡道对面的水塘边,希望从高速下来的车辆,在拐进这条两侧种满意杨林的乡间道路后,第一眼可以远远看到建筑的全貌,从而形成一个对景的关系。
临水一侧屋檐高度4米,建筑总长度104米,长度和高度的比例关系形成了本项目的最大特征:建筑仿佛趴在水塘边,形成一个低矮水平谦虚的形象;同时,主体建筑平行于乡道,从乡道望过去,多条水平线集聚:乡道的护栏、水塘的边线、建筑前面的几级田埂、建筑的临水一侧的檐口线,建筑高侧的檐口线,内院及入口长廊的屋顶水平线,以及建筑屋顶的观景平台的水平线。这些水平线强化了江汉平原丘陵地形的特征。
如前所述,项目选址在乡道隔着水塘的一侧,来拜访的游客,会在乡道的意杨林空隙里第一眼瞥见建筑完整的正立面形象,长且低矮;继续拐进项目的入口道路,会以一个45度角看到建筑的全景,拉长的线条带来透视感的收缩,加强了建筑的长度和水平观感;然后沿着田埂,步入长廊,到达入口门廊,才能拾级而上到门厅。或者是穿过门厅,看到建筑的较高立面的一侧。
漫步带来建筑不同的观感,但也会发现这个建筑并不存在一个传统设计意义上的“主立面”,犹如柯布西耶的萨伏伊别墅,没有主要立面,也没有去强化入口形象,这是设计师的刻意为之,也是回应江汉平原这种平坦场地的无方向感。
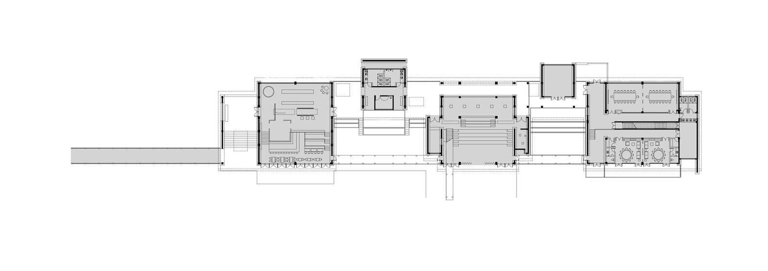
在统一的大屋面下,设计师组织了五个盒子,两个内院,三段长廊,一段直跑楼梯,以及这些实体盒子与屋面围合的“剩余空间”,共同形成了一个外部形象克制,而内部尤其丰富的游走空间。五个盒子遵循着:大、小、最大、小、再大的尺度节奏。
游走在五个盒子之间的“剩余空间”,也因为屋顶与盒子的高低,内院与外部稻田的大小,视线的贯穿与遮挡,以及坡屋顶开洞与密实的对比,形成不同的节奏。如前所述,建筑的横剖面是以田埂的1500高差为依据来设计的,五个盒子与这个高差的关系顺势成为室内空间的设计手法,同时高差也决定了室内的功能。
第一个盒子,高处是展厅,临水一侧低处是咖啡厅,两者之间的高差成为咖啡厅的四人卡座区,高差之间还植入了一个小盒子,它是高处的影音室,又是低处的咖啡吧台的背景墙;第二个盒子封闭的一侧是卫生间,开放向内院的是化妆间;
第三个盒子是婚礼堂,借助高差自然形成了观众坐席;第四个小盒子是接待厅,第五个盒子高处是会议室,低处临水是餐厅,两者的高差被中间插入的直跑向屋面平台的楼梯所截断,把开放和私密两种空间性质直接分开。
每个盒子的开窗,遵循着将外围景观限制与强化的目的。咖啡厅、餐厅和婚礼堂开窗均面向水塘,处于向自然开放的状态;尤其婚礼堂,落地窗扇可以完全打开,与室外的无边界水池一起,与水塘的水面融为一体;化妆间和接待室则面向内院,处于一种半开放的状态;而卫生间的落地窗面向一面当地毛石砌筑的景观墙,既达到开放景观的作用,又保证了私密性。
所有对景观的观看的方向,得到设计师刻意的控制;当游客经历一切水平的景观观感之后,会来到最后的直跑向天台的楼梯,两边清水木纹混凝土的高墙,裁剪出线性的天空,它是建筑水平感的一个反转,也是一个升华。
本项目的设计不仅是单一的建筑设计,还是UAO从规划开始,综合建筑,景观,室内等一体化设计的一个尝试,规划合理组织了场地的竖向和交通的流线,景观保留了稻田的肌理;
改造了原有村落的打谷场,形成一个篝火广场,并依托原有地形和树木,梳理出新的植物空间疏密关系,使得到达建筑主体本身的过程成为一种期待;建筑依托田埂高差的逻辑,使得室内设计水到渠成,空间节奏贯穿始终,后续的室内深化,更多考虑材料的搭接和收口,室内外的空间和质感保证了统一。
客服
消息
收藏
下载
最近





































