查看完整案例


收藏

下载
架构师提供的文本描述。进入这5,000平方英尺的空间,一个人的头脑可能不会立即跳到古色古香,但共鸣的过去嵌入骨头的历史炮台街的位置。事实上,如果不是那些卑微的设计元素,包括道格拉斯冷杉梁、高高的天花板和类似失速的围护结构,就没有迹象表明它的最初用途。建于1909年,历史上被称为布里卡马厩,这前马厩现在拥有与过去和现在相结合的办公空间。
Text description provided by the architects. Upon entering this 5,000-square-foot space, one’s mind might not immediately jump to the quaint yet resonant past embedded in the bones of this historic Battery Street location. In fact, if not for the humble design elements including Douglas fir beams, high ceilings, and stall-like enclosures, there would be no indication of its original purpose. Built in 1909, and known historically as Bricca Stables, this former horse stable now boasts office space that marries the past with the present.
Text description provided by the architects. Upon entering this 5,000-square-foot space, one’s mind might not immediately jump to the quaint yet resonant past embedded in the bones of this historic Battery Street location. In fact, if not for the humble design elements including Douglas fir beams, high ceilings, and stall-like enclosures, there would be no indication of its original purpose. Built in 1909, and known historically as Bricca Stables, this former horse stable now boasts office space that marries the past with the present.
© Adam Rouse Photography
亚当·劳斯摄影
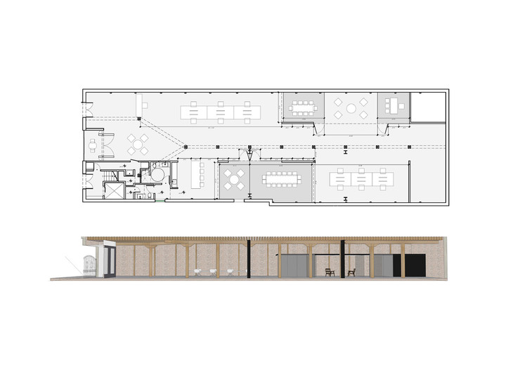
Plan + Elevation
平面高程
© Adam Rouse Photography
亚当·劳斯摄影
“从空间规划的角度来看,我们认为它基本上是开放的,但会议的空间是封闭的,”Feldman Architecture的管理合伙人泰·宜格米(TaiIkegami)说。“从设计的角度来看,我们把它看作是在历史空间内进行现代干预。”空旷的布局与半透明的会议室形成鲜明对比,这些会议室让人想起了过去的马厩。这一空间与圆滑的粗糙和正式与非正式的对比,在其谦逊,但深思熟虑的设计。每个玻璃外壳都创造了自己独特的环境,而玻璃隔板允许自然光进入每个单独隔间的深处。
“From a space-planning perspective, we approached it as being mostly open, but with enclosed areas for meetings,” says Tai Ikegami, managing partner at Feldman Architecture. “From a design perspective, we looked at it as making modern interventions within the historic space.” The spare, open layout contrasts with semi-transparent conference rooms that recall the horse stalls of the past. The space contrasts rough with sleek, and formal with informal in its modest, yet deliberate design. Each glass enclosure creates its own unique environment, while glass partitions allow natural light to reach into the depths of each individual compartment.
“From a space-planning perspective, we approached it as being mostly open, but with enclosed areas for meetings,” says Tai Ikegami, managing partner at Feldman Architecture. “From a design perspective, we looked at it as making modern interventions within the historic space.” The spare, open layout contrasts with semi-transparent conference rooms that recall the horse stalls of the past. The space contrasts rough with sleek, and formal with informal in its modest, yet deliberate design. Each glass enclosure creates its own unique environment, while glass partitions allow natural light to reach into the depths of each individual compartment.
© Adam Rouse Photography
亚当·劳斯摄影
缎面蚀刻玻璃是对从海湾滚滚而来的雾的浪漫点缀,它的作用是吸收和反射周围木材和砖块的纹理,将自己伪装成乡村建筑,同时为居住者提供一种隐私。休闲的休闲家具,色彩鲜艳的抽象地毯,以及作为公共区域的大厨房岛,给工作场所带来了一种家庭感和亲密感,创造了一种独特的工作-生活平衡:温暖、微妙、专注和干净。砖石墙,现在强调干净,最小的隔断,达到了一个空间反映旧金山的历史,同时突出现代的演变发生在城市。
Satin etched glass, a romantic nod to the fog that rolls in from the Bay, works to absorb and reflect the surrounding textures of wood and brick, camouflaging themselves into the rustic structure while offering an element of privacy to its occupants. Relaxed lounge furniture, colorful abstract rugs, and a large kitchen island that acts as a communal area bring a sense of home and intimacy into the workplace, creating a unique work-life balance: warm, subtle, focused, and clean. The masonry wall, now accented by clean, minimal partitions, culminates in a space reflecting San Francisco’s history, while highlighting the modern evolution taking place in the city.
Satin etched glass, a romantic nod to the fog that rolls in from the Bay, works to absorb and reflect the surrounding textures of wood and brick, camouflaging themselves into the rustic structure while offering an element of privacy to its occupants. Relaxed lounge furniture, colorful abstract rugs, and a large kitchen island that acts as a communal area bring a sense of home and intimacy into the workplace, creating a unique work-life balance: warm, subtle, focused, and clean. The masonry wall, now accented by clean, minimal partitions, culminates in a space reflecting San Francisco’s history, while highlighting the modern evolution taking place in the city.
© Adam Rouse Photography
亚当·劳斯摄影
客服
消息
收藏
下载
最近





























