查看完整案例


收藏

下载
© Timothy Hursley
()TimothyHursley
架构师提供的文本描述。针对学院对设计师作为世界积极变革工具的关注,建筑设计为APDesign创造了一种定位感,并支持一门新课程,该课程培训未来的领导者,通过跨学科合作和直接制造将设计行为重新联系起来。
Text description provided by the architects. Responding to the College’s focus on the designer as an instrument for positive change in the world, the building design creates a sense of place for APDesign and supports a new curriculum that trains future leaders to reconnect the act of design to making through inter-disciplinary collaboration and a focus on direct fabrication.
Text description provided by the architects. Responding to the College’s focus on the designer as an instrument for positive change in the world, the building design creates a sense of place for APDesign and supports a new curriculum that trains future leaders to reconnect the act of design to making through inter-disciplinary collaboration and a focus on direct fabrication.
© Timothy Hursley
()TimothyHursley
该设计使设计部门与建筑、景观结构/区域和社区规划、内部架构和产品设计以及相关专业之间的沟通和相互交流的机会最大化。
The design maximizes opportunities for communication and cross-fertilization of ideas between APDesign Departments – Architecture, Landscape Architecture/Regional and Community Planning, Interior Architecture and Product Design – and related disciplines.
The design maximizes opportunities for communication and cross-fertilization of ideas between APDesign Departments – Architecture, Landscape Architecture/Regional and Community Planning, Interior Architecture and Product Design – and related disciplines.
© Timothy Hursley
()TimothyHursley
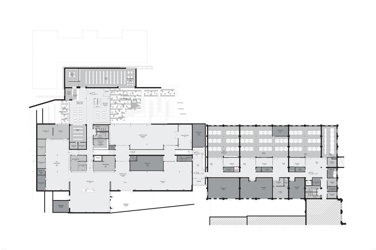
Ground Level Plan
地面平面图
© Timothy Hursley
()TimothyHursley
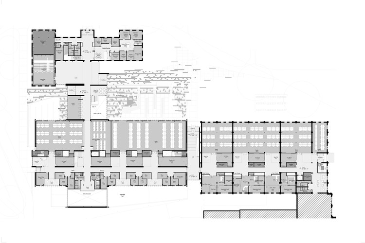
First Level Plan
一级计划
© Timothy Hursley
()TimothyHursley
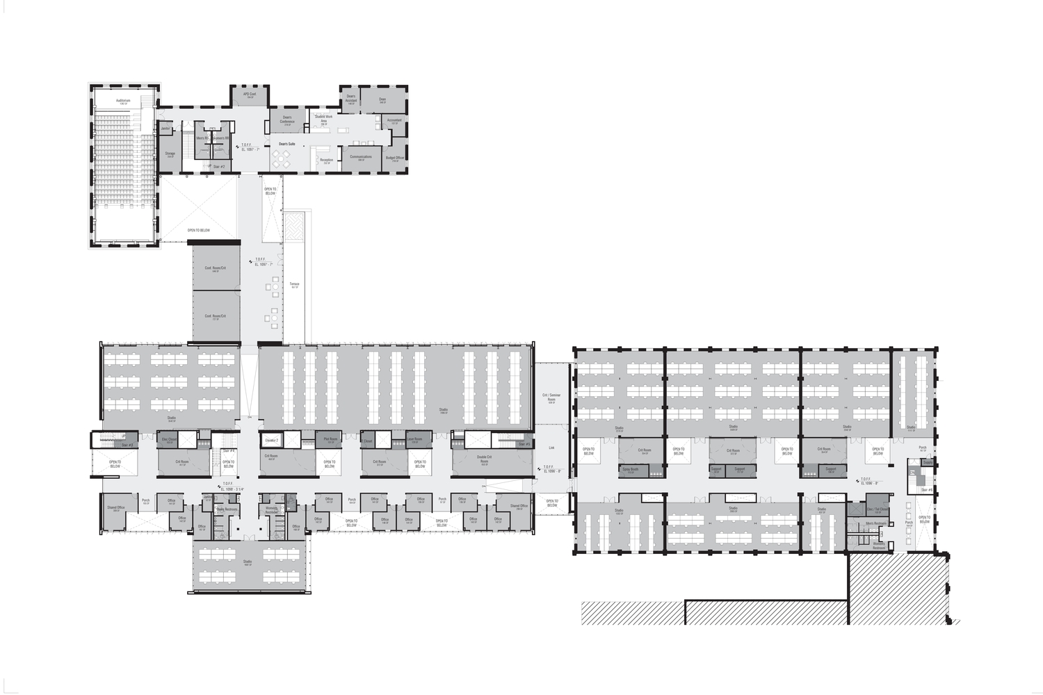
这座建筑是一种教学工具,用来展示学校设计社区的基于制造的研究。工作室、CRIT空间、展区、协作舱和教员办公室被布置在一个三层楼的轴心中庭,即“协作走廊”,以促进知识和技术知识的快速交流。
The building is a didactic tool to showcase the fabrication-based research of the school’s design community. Studios, crit spaces, exhibition areas, collaboration pods, and faculty offices are arranged around an axial three-story atrium, the “collaboration corridor,” to foster a rapid exchange of intellectual and technical knowledge.
The building is a didactic tool to showcase the fabrication-based research of the school’s design community. Studios, crit spaces, exhibition areas, collaboration pods, and faculty offices are arranged around an axial three-story atrium, the “collaboration corridor,” to foster a rapid exchange of intellectual and technical knowledge.
© Timothy Hursley
()TimothyHursley
该项目还引入了新的研究实验室和垂直整合的工作室,其中包括一个24小时的“设计信息共享”,这是重新配置的威格尔图书馆的一个新特性。
The project also introduces new research laboratories and vertically-integrated studios that comprise a 24-hour “Design Information Commons,” a new feature to a reconfigured Weigel Library.
The project also introduces new research laboratories and vertically-integrated studios that comprise a 24-hour “Design Information Commons,” a new feature to a reconfigured Weigel Library.
© Timothy Hursley
()TimothyHursley
Architects BNIM, Ennead Architects
Location Manhattan, KS, United States
Area 186111.0 ft2
Project Year 2017
Photographs Timothy Hursley
Category University
客服
消息
收藏
下载
最近



















