查看完整案例


收藏

下载
© Arménio Teixeira
(Arménio Teixeira)
建筑师提供的文字说明。该项目最初被设想为白色建筑,其内部具有巨大的透明度,最终演变为在此提出的工作,意图是更清醒的姿态和与它所插入的城市环境的更大的关系。
Text description provided by the architects. The project, at first conceived as a white building with great transparency for its interior, eventually evolved to the work presented here, with the intention of a more sober gesture and a greater relationship with the urban environment in which it is inserted.
Text description provided by the architects. The project, at first conceived as a white building with great transparency for its interior, eventually evolved to the work presented here, with the intention of a more sober gesture and a greater relationship with the urban environment in which it is inserted.
© Arménio Teixeira
(Arménio Teixeira)
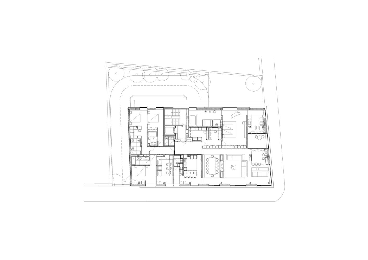
Ground floor plan
© Arménio Teixeira
(Arménio Teixeira)
该提案位于靠近海岸的住宅区,其中的单一家庭住房和低密度多家庭住房是混合在一起的,该提案的结果是希望将公寓建筑的生活与孤立住宅的质量结合起来。由于只有六套住宅分布在四层楼,这一街区被大量插入,面积约为700平方米。每个项目都有自己的设计和内部布局,项目的主要挑战之一是根据客户的不同意图对空间进行个性化。尽管如此,我们力求不仅在空间上而且在结构角度上提供灵活的反应。
Located in a residential area close to the coast, where the single-family housing and the low-density multi-family housing are mixed, the proposal resulted from a desire to combine the life in an apartment building with the qualities of an isolated house. With only six dwellings distributed on four floors, the block is inserted in a lot with around 700 m2. Each one has its own design and interior distribution, and one of the main challenges of the project was the personalization of the spaces according to the different intentions of the clients. Having that said, we seek to provide a flexible response not only in the spatial but also in the structural point of view.
Located in a residential area close to the coast, where the single-family housing and the low-density multi-family housing are mixed, the proposal resulted from a desire to combine the life in an apartment building with the qualities of an isolated house. With only six dwellings distributed on four floors, the block is inserted in a lot with around 700 m2. Each one has its own design and interior distribution, and one of the main challenges of the project was the personalization of the spaces according to the different intentions of the clients. Having that said, we seek to provide a flexible response not only in the spatial but also in the structural point of view.
© Arménio Teixeira
(Arménio Teixeira)
与外界的关系,通过相当大的开口,提供动力的高度,因为不同的配置公寓。暗色调有助于控制音量,镜面玻璃使建筑具有一个主要特征:能够反射周围的环境,并能在树木和天空之间伪装自己,从而消除了建筑物体从哪里开始和结束的概念。
The relation with the outside through openings of considerable dimensions gives dynamics to the elevations due to the different configuration of the apartments. The dark shades help to control the volume scale, and the mirrored glasses give the building one of its main characteristics: the ability to reflect its surroundings and to camouflage itself between the trees and the sky, which divest the notion of where the architectural object begins and ends.
The relation with the outside through openings of considerable dimensions gives dynamics to the elevations due to the different configuration of the apartments. The dark shades help to control the volume scale, and the mirrored glasses give the building one of its main characteristics: the ability to reflect its surroundings and to camouflage itself between the trees and the sky, which divest the notion of where the architectural object begins and ends.
© Arménio Teixeira
(Arménio Teixeira)
Architects Luís Peixoto
Location Rua Dr. Sousa Rosa, 292, Porto, Portugal
Architect in Charge Luís Peixoto
Team Susana Oliveira Marques, Pedro Pacheco, Rodrigo Gorjão Henriques, Susana Monteiro
Area 11840.3 ft2
Project Year 2017
Photographs Arménio Teixeira
Category Residential
Manufacturers Loading...
客服
消息
收藏
下载
最近
























