查看完整案例


收藏

下载
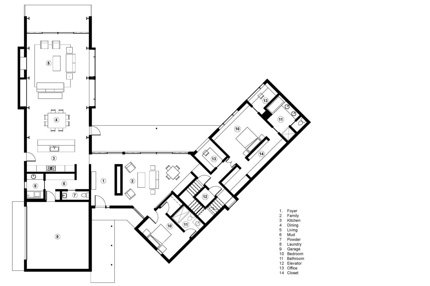
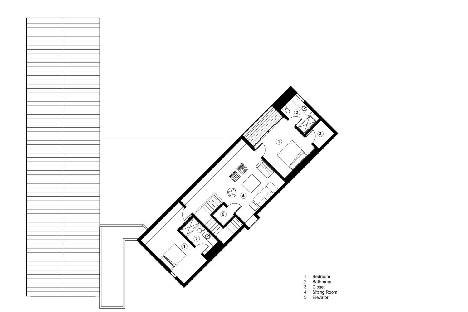
v计划的聚人空间反映了业主对隐私的渴望,以及在阿斯彭高尔夫球场楔形场地内的花园。
该项目向内聚焦于一个大的中央庭院,项目被推到房产的边缘,以屏蔽相邻的邻居,并将框架景观引入庭院和山景。张开的形状由两个铰接的山墙结构定义,它们将公共空间和睡眠空间分隔开来,通过一个私密的家庭房间连接起来,固定了平面。
从街道上看,一个适度的前立面创造了一个私人的方法,允许空间和视图通过连续的序列显示。在室内,体量是拱形的,以反映山墙屋顶,提供广阔的,不同的意见,因为你在家里流通。
富有质感的深色雪松外观和丰富温暖的室内装饰之间的对比创造了一种对话,反映了客户在一个既大胆又舒适的家中的精神。
客服
消息
收藏
下载
最近


































