查看完整案例


收藏

下载
自然感知与北京建筑的碰撞,独特的空间感知,皆可描述为建筑或气氛的呈现对周边环境的感官领悟,明明隐于其中却又无处不在。
继 inWE 因味茶上海梅龙镇旗舰店落成后,inWE 因味茶向 DPD 香港递加设计又提出了对北京官舍店进行标準店铺的设计委託,希望通过空间设计的标準统一化打造高辨识度的茶饮形象。运用当代的设计手法来中式茶道文化,创造出自然的、引人驻足的茶文化消费场所,源用旗舰店的设计主要方向及品牌元素的基础下,作出不同的调整变化。
这间起于 inWE 因味茶品牌,在北京这座城市该如何实现空间设计的标準店铺化?地处空间局促的现代商场,又该怎样将品牌元素以及设计概念于一个紧凑的室内空间作出巧妙的转换?DPD 对此进行了一次「渗入」实践,试图探讨标準店铺在当代环境与需求下的可能性,并在材质、功能和品牌意象之间找到彼此的连接点。
北京四合院建筑方正外观的啓发,微妙运用几何形为切入点
说到北京老建筑四合院风格最为雅致、数量最多、结构最为精巧。对于身处北京的 inWE 因味茶官舍店,在空间设计整体上运用融入了当地老北京四合院方形的概念,意在营造出特有的京味,以多方面的几何体为切入点渗入裡面却让人随处可见。
开敞的木格栅门减轻了空间的阻隔感,结合立面的几何方块窗口外观,得到多种视觉透视并保证空间的通透性。捨去商场惯用全开放式方式採用半隐蔽方式,表现而不张扬。茶味馥郁浓香渐渐飘出,路过人们对其产生兴趣并停留观赏,漫步进入开始品味茶香之旅。
△ 拱顶天花效果形成品牌的直接视觉冲击效果,表现了品牌冲击感,让人印象深刻
△ 抛开旧式乏味单一性的产品陈列,搭配艺术品使其画龙点睛,镜面的影射让空间得以延伸
△ 精心设计用鹅卵石和水泥喷漆划分互动区、休闲区和卡座区的空间变化
△ 衔开放式座位和敞开的中轴旋转窗,使得整个茶饮空间形成特有的通透感,店内顾客能一边品尝茶饮一边欣赏外面行人的来来往往
△ 精心培育的茶树是 inWE 因味茶的象徵之物,方形通透的玻璃结构营造出专属于天井的虚空间,给人一个安静惬意的环境也为整个空间带来了生命的跃动
△ 采用透明玻璃的隔断,营造出灵动空间的透视感
△ 衔接正门的设计概念,前后唿应,从而体现品牌形象
鉴于有 inWE 因味茶上海梅龙镇旗舰店作为前者引导,DPD 结合旗舰店的设计与其自身对餐饮设计丰富对经验,不断去发掘研究在设计空间佈局与视觉表现的同时,考虑如何让品牌在空间设计上成多样性的表现,满足当今现代消费者的消费观点以及需求,用设计来提高商业的转变。
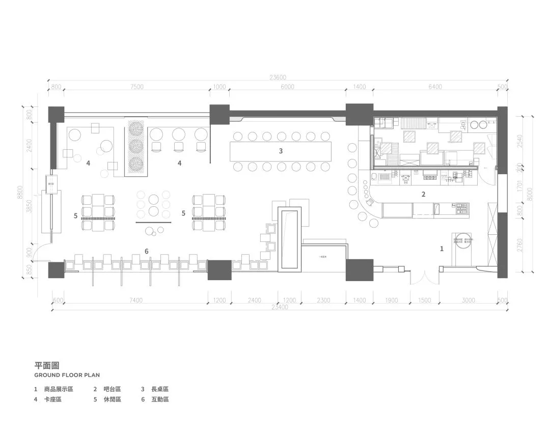
在本项目中,设计师保留了多功能分区的佈局方式,以面对不同顾客的需求与体验。如,可以欣赏店外风景的互动区;开放式展示的吧台和商品展示区,让进店的顾客能快速瞭解店铺商品内容以及品牌展现;方便人们在品尝茶饮时,能舒适地上网与交流的长桌区;卡座区为需要一个安静品茶环境的顾客;休閒区无论是独自一人还是约上两叁位好友相聚也是不错的选择;邻近着休閒区的互动区也是店铺最大亮点之一,品着茶饮看着外面的风景心情愉悦,让一天下来的疲惫得到卸下。空间设计的存在就是多方面的功能满足顾客不同所需,也是使用体验的最大作用表现,人来人往穿梭,美好的事情或许就在这一刻诞生。
△ 人们在穿梭廊道之际,感受茶文化同时能够对商品清晰瞭解
△ 进门往里面走,引导人们一步步向店内探索,而一切事物都在变化中
△ 长桌区无形中拉近了人与人之间的距离,让身边的人不再陌生遥远
△ 欢乐地交谈发出阵阵笑声,心灵的触动相知相许
设计空间与品牌视觉的融合
空间设计在当今趋势中,单纯性空间设计已经满足不了市场和人们的需求和发展,如何把品牌元素以及概念完美演绎在空间设计上才是更需要考虑和解决的事情。通过视觉系统效果优化空间,让空间和品牌融为一体,营造美感。
△ 通过材料与品牌元素结合,营造人工与自然的高强度碰撞以及一种直觉的、潜意识的的视觉感
室内设计:DPD 香港递加设计
设计范围:室内设计,零售陈设
设计时间:2018 年 2 月
竣工时间:2018 年 5 月
设计总监:林镇,Gaby‘ Teng
设计团队:龚勇,梁宸鸣
主要材料:木饰面,水磨石砖,乳胶漆、玻璃
摄影:张大齐 @MeeCa摄影
客服
消息
收藏
下载
最近

























