查看完整案例


收藏

下载
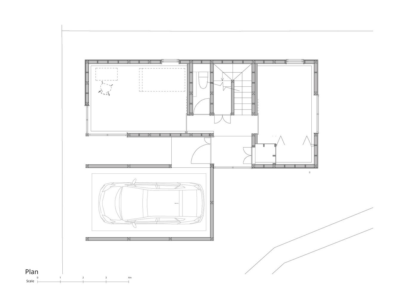
场地位于富山县的一个社区中,房屋和商店以相对宽松的方式蔓延着。在东南侧的邻近区域有一个游乐场,越过它可以看到立山山脉。我们在梯形的场地内放置了像 chumon-zukuri(一种传统的L型房屋)的L型体块,并布置了儿童房和车库。车库可以在日后用作面向西侧前方道路的商店。
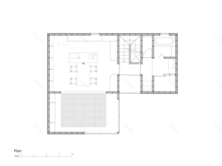
考虑到降雪,我们与北侧邻居保持距离,并将居住空间的核心设置在东南公园一侧的二楼,从而使房屋既能够保持隐私,又能向公园一侧开放。
项目地区有大量降雨降雪。我们制作了两个正交的山墙山脊,相互贯穿来划分屋顶,雨雪就可以分流。山墙成为了环境控制的元素,将光和风融入进去。为了在降雪区建造合理的木结构,我们通过建造茅草屋顶结构而非 wagoya(传统的柱和门楣屋顶框架)来减少部件的数量,有效构建大空间,同时减少了施加在梁上的弯曲应力。
两座建筑物相交的部分称为了一个三维桁架,在它的下方生成了生活区域的中心。在一楼,我们将外围基础上升到大约1米的腰部高度。这样一来就降低了接受上层荷载的柱子的应力,并在降雪期间像墙壁一样保护房屋。
由于在早期现代化之前,房屋已经适应了当地的气候,每个建筑元素都经过了参数化调整。我们重新构筑了房屋的特征构成与风俗,将其调整为当今世界的技术,而非象征性。
客服
消息
收藏
下载
最近





























