查看完整案例


收藏

下载
© Spaceshift Studio
c.Spaceshift Studio
架构师提供的文本描述。班邦萨雷度假屋位于崇布里省,距曼谷2小时车程。这所房子的计划是作为一名居民的家庭,以度过休息的工作,放松,在假期。家庭是一个由不同世代组成的大家庭;父母、子女和孙辈。房子里的这个空间被分配给每个人提供个人空间,同时也为每个人提供共同的空间,让他们同时互动。每个个人空间可以划分为亚个人空间,根据每个人的不同需求,空间面积在比例和大小上都是可调的。
Text description provided by the architects. Baan Bang Sa Ray is a vacation house located in Chonburi province, which is 2 hours away from Bangkok by car. This house is planned to be a resident for the family to spend the hiatus from the work relaxing during vacations. The family is an extended family that consists of different generations; the parents, children, and grandchildren. This space in the house is allocated to offer personal space for each person while offering common spaces for everyone to interact with each other at the same time. Each personal space can be divided into sub-personal space which the area adjustable in both proportion and size following the different needs of each person.
© Spaceshift Studio
c.Spaceshift Studio
房子的位置距离泰国湾约1公里,因此海风可以到达地点。因此,该项目的设计是在风向,以提供自然通风的房子。它的目的是将房屋设计为高架,公共区域从二楼开始,后面是上层的私人房间。房子的前部分为两面。在房子的南侧是入口流通,停车位和服务区所在的地方。另一方面,三部分高尔夫球场位于房屋北侧的私人空地。在房子的这一边,它对壮丽的风景,海风,高尔夫球场和山脉都很开放。
The location of the house is around 1 kilometer distance from the gulf of Thailand so the sea breeze can reach the site. As a result, the project is designed to be positioned in the wind direction to offer natural ventilation for the house. It is intended to design the house to be elevated and the common areas begin on the second floor following by private rooms at the upper level. The front of the house is divided into two sides. At the southern side of the house is where the entrance circulation, parking space, and service area are situated. On the other hand, a private open area where three pars golf course is situated at the northern side of the house. At this side of the house, it is wide open to splendid landscape, sea breeze, and the golf course that is underlaid with mountain ranges.
© Spaceshift Studio
c.Spaceshift Studio
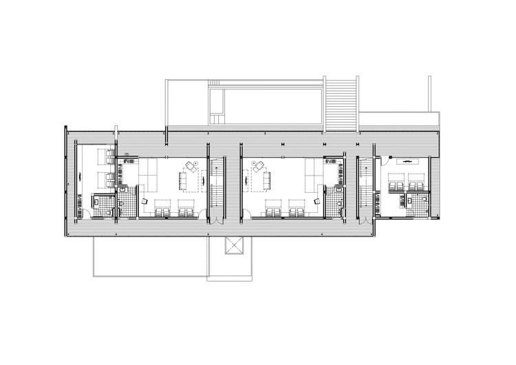
房子可以通过渐进的步道和台阶到达公共区域所在的二楼。这个区域由居住、就餐、学习和工作区域组成。游泳池也位于这一区域,它向外面的景观开放,并与露台相连。当到达三楼时,可以找到两个家庭的空间。这一空间被分成两个别墅,其中有一个可设计的客厅,毗邻客厅,作为装饰空间和锻炼区。房子的第一层被认为是房子的地下室,在那里没有固定的功能。然而,后备客厅与连接高尔夫球场的放松区一起放置在该区域,以创造室内空间与外部自然之间的流动。
The house is accessible by the gradual walking path and steps to the second floor where the common area is located. This area consists of living, dining, study, and working area. The swimming pool which is wide opened to the landscape outside and connected to the terrace is also situated in this area. When reaching the third floor, the space for two families is found. This space is split into two villas that have a devisable drawing room, adjacent to the living room, act as the decoration space and exercising area. The first floor of the house is considered as the basement of the house where no regular functions are defined. However, the backup drawing room is placed in the area along with the relaxing area that is connected to the golf course to create the flow between the interior space and the nature outside.
© Spaceshift Studio
c.Spaceshift Studio
这座巨大的屋顶几乎覆盖了房屋的80%。然而,它被设计成尽可能薄。房顶和覆盖房子所有大厅区域的大天花板为房子提供了温暖的气氛,尽管房子很大。选择自然材料作为房屋的主要材料,以逃避有意的整洁,让材料尽可能地展现其自然美。
The enormous roof covers almost 80 percent of the house. However, it is designed to be as thin as possible. The roof along with the large ceiling that covers all the hall areas of the house offers the warm atmosphere to the house despite the largeness of the house. Natural materials are selected as the main material of the house to escape from the intentional tidiness and to let the material display its natural beauty as much as possible.
© Spaceshift Studio
c.Spaceshift Studio
Architects Junsekino Architect And Design
Location Sattahip District, Thailand
Category Houses
Project Year 2015
Photographs Spaceshift Studio
客服
消息
收藏
下载
最近






















