查看完整案例


收藏

下载
建筑师提供的文字说明。这个翻新项目被用来废弃30岁的联排别墅,那里现有的元素都在运行。用来定义先前房屋功能的现有墙不再符合小型家庭单卧室单元的新要求。此外,倒塌的屋顶和楼梯导致决定拆除现有元件,同时保持现有的结构框架。
Text description provided by the architects. This renovation project is used to be an abandon 30 years-old townhouse where existing elements are run-down. Existing wall which were used to define previous house function are no longer match a new requirement of a small family’s single bedroom unit. Furthermore, collapsed roof and staircase led to a decision to remodel the existing element while keeping only existing structural framework.
Text description provided by the architects. This renovation project is used to be an abandon 30 years-old townhouse where existing elements are run-down. Existing wall which were used to define previous house function are no longer match a new requirement of a small family’s single bedroom unit. Furthermore, collapsed roof and staircase led to a decision to remodel the existing element while keeping only existing structural framework.
© Spaceshift Studio
c.Spaceshift Studio
项目的核心要求是“轻”。作为业主,喜欢现有的狭窄和深,两层,联排的房子要清新,宽敞和明亮.
Core requirement of the project is ‘light’. As owner preferred an existing narrow-and-deep, two- storey, townhouse to be refreshed, spacious and bright.
Core requirement of the project is ‘light’. As owner preferred an existing narrow-and-deep, two- storey, townhouse to be refreshed, spacious and bright.
© Spaceshift Studio
c.Spaceshift Studio
在现有结构网格的中间部分引入了一口轻型井,穿过一个新放置的金属板屋顶。这一卷已经形成和内部庭院,并成为房子的一个关键要素,用于定义,分离和连接所有功能的房子在一起。这个庭院还引入了自然光渗透到室内空间,贯穿整个建筑,彻底改变了现有昏暗的室内。
A light-well is introduced in a middle segment of an existing structural grid, cut through a newly placed metal sheet roof. This volume has formed and internal courtyard and become a key element of the house which uses to define, separate and connect all functions of the house together. This courtyard also brings in natural light to permeate into interior space, throughout the building, transform the existing dimmed interior entirely.
A light-well is introduced in a middle segment of an existing structural grid, cut through a newly placed metal sheet roof. This volume has formed and internal courtyard and become a key element of the house which uses to define, separate and connect all functions of the house together. This courtyard also brings in natural light to permeate into interior space, throughout the building, transform the existing dimmed interior entirely.
© Spaceshift Studio
c.Spaceshift Studio
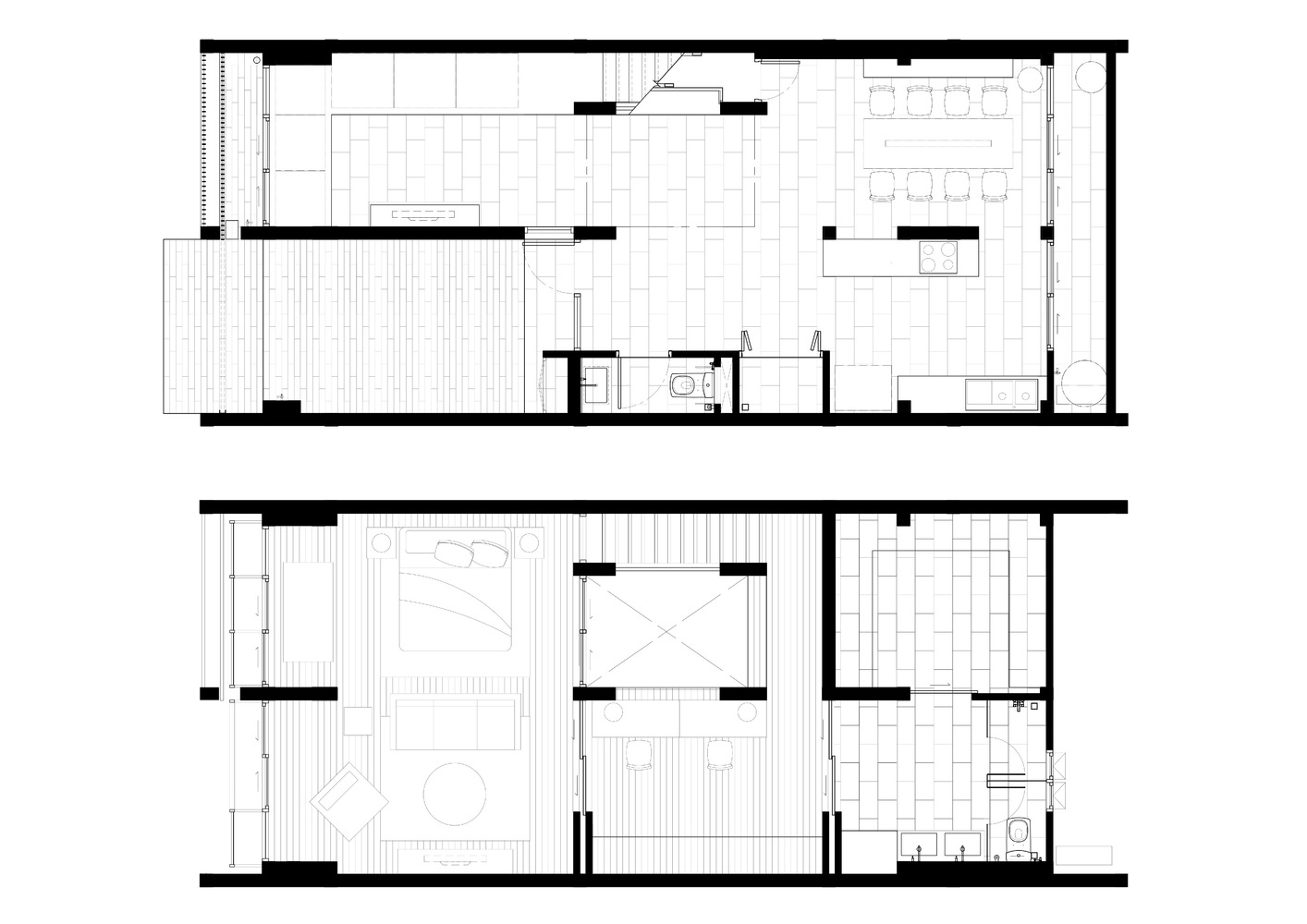
所有房间都通过光井连接起来.钢楼梯垂直连接内部空间,没有太多的负担现有的结构,也允许一个设计是轻量级的苗条线处理。封闭的房间,如储藏室,化妆室,被放置在周边的墙壁旁边。这促进了室内空间的连通性,从前到后,从下到上层的房子无缝。
All rooms are connected through the light-well. Steel staircase links interior space vertically without too much burden on existing structure, also allows a design to be light-weighted with slim-line treatment. Enclosed rooms, such as storage, powder room, are placed beside perimeter walls. This promotes a connectivity of interior space throughout from front to back, lower to upper floor of the house seamlessly.
All rooms are connected through the light-well. Steel staircase links interior space vertically without too much burden on existing structure, also allows a design to be light-weighted with slim-line treatment. Enclosed rooms, such as storage, powder room, are placed beside perimeter walls. This promotes a connectivity of interior space throughout from front to back, lower to upper floor of the house seamlessly.
© Spaceshift Studio
c.Spaceshift Studio
隐藏的口袋门和卷帘在需要时将隐私提供给每个房间,并且消失,以允许每个房间被连接为一个。内部空间用元素的层进行筛选。透过栅栏、多孔灌木和一系列框架进入房子会产生视觉连接,同时保持私密空间。
Hidden pocket doors and roller blind provides privacy to each room when needed and disappear to allows each rooms to be connected as one. Interior space is screened with layers of elements. Looking into the house through layers of fence, porous shrub and series of frames creates visual connection while maintain privacy to a private space.
Hidden pocket doors and roller blind provides privacy to each room when needed and disappear to allows each rooms to be connected as one. Interior space is screened with layers of elements. Looking into the house through layers of fence, porous shrub and series of frames creates visual connection while maintain privacy to a private space.
Exploded Axonometric
爆炸轴测
从现有的结构网格中细分,在所有接缝和框架元件对齐的情况下,将建筑对准用模块化材料构造,从地板、墙壁、天花板、所有网格、结构元件到精致家具模块连接。一个干净的白色内部,带有木质元素和整齐的放置的线条,把所有的东西都链接在一个统一的空间里,拥抱自然照亮的内部庭院。
Subdivided from the existing structural grid, drawing building alignment to be constructed with modular material as all joint and framing elements are aligned, connected from floor, wall, ceiling , all trellis, structural elements to refined furniture module. A clean white interior with touch of wood element and neatly placed lines linked everything in one united space hug around the naturally lit internal courtyard.
Subdivided from the existing structural grid, drawing building alignment to be constructed with modular material as all joint and framing elements are aligned, connected from floor, wall, ceiling , all trellis, structural elements to refined furniture module. A clean white interior with touch of wood element and neatly placed lines linked everything in one united space hug around the naturally lit internal courtyard.
© Spaceshift Studio
c.Spaceshift Studio
客服
消息
收藏
下载
最近


















































