查看完整案例


收藏

下载
架构师提供的文本描述。在泰国文化中,人们通常使用窗条来确保住所的安全。然而,从建筑美学的角度看,窗条的观感却有很大的不同,因为他们中的许多人认为使用这种元素会剥夺设计的美。与“三宫”不同的是,对窗杆的解释是不正常的。通过重新安排窗口条的使用,这些元素成为设计的一个主要的审美部分,同时也为设计创造了独特的感觉。
Text description provided by the architects. In Thai culture, people usually use window bars for the safety in their residence. However, the perception of window bars in terms of architectural aesthetic is quite difference as many of them believe the use of this element can deprive the beauty of the design. Unlike for Three House, the interpretation of window bars is deviant. By rearranging the use of window bars, this elements become a main aesthetic part as well as create the sense of uniqueness to the design.
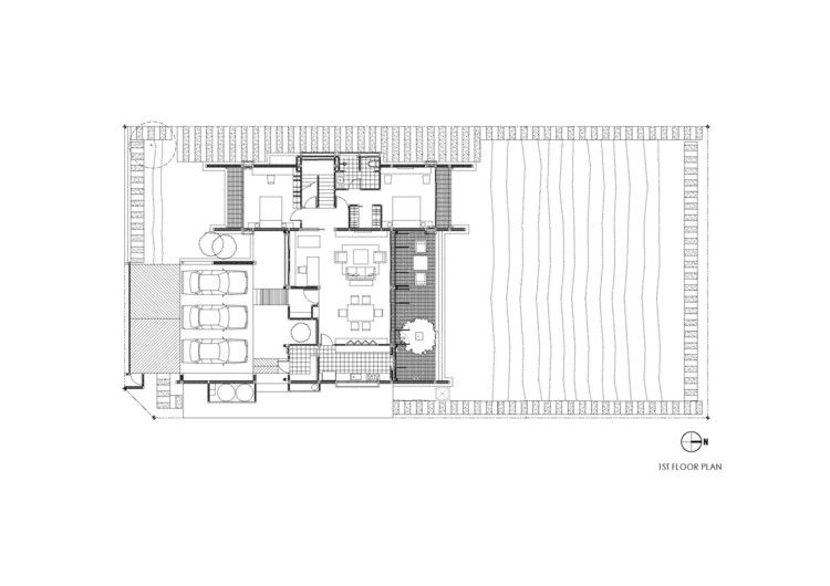
First floor plan
一楼平面图
位于曼谷拥挤居住区之一Ladphraow的一个单一家庭居住单元,名为“三栋住宅”,是以由3轴-3质量-3层-3用户组成的设计理念命名的。
A single family living unit locating on Ladphraow, one of the crowed living area in Bangkok, called three house is named after the design concept which compose of 3 axes – 3 masses – 3 layers – 3 users.
-3轴在平面之间创造2块自由空间-3块提供私人、半公共和公共区域-3层,以保护免受环境、连通性和安全性的影响。-3个用户:有足够的空间供3名家庭成员使用。
- 3 Axes create free space of 2 masses between planes - 3 Masses provide private, semipublic and public area - 3 Layers for protection from environments, connectivity and security propose. - 3 Users: Sufficient space for 3 members in the family.
© Spaceshift Studio
c.Spaceshift Studio
私人和公共区域是由与建设用地平行的三层空间构成的。布局规划在后面为个人区域创建庭院区,庭院花园提供私人和公共空间。
Private and public areas are created by the space among 3 layers parallel with the construction land. Layout plan creates courtyard area in the back for personal area and a courtyard garden provides both private and public space.
Cross Section
Section 04
Section 04
建筑墙被设计成一个安全、节能和防热的框架。通过使用窗口条作为外部层的框架,将其作为审美的一部分,同时也为内部的空间提供了一些安全感。双天花板是为了减少热量,并创造自然气流给房主。
Building wall is designed to be a frame for security, energy saving and heat prevention to the house. By using window bars as a frame for the outer layer, the bars is used as a part of aesthetic as well as providing some senses of security for the inner layer which is the space within. The double ceiling is to reduce the heat and create natural airflow to homeowner.
© Spaceshift Studio
c.Spaceshift Studio
客服
消息
收藏
下载
最近

























